Купить дом у метро Пыхтино в Московской области
Россия, Московская область, Одинцовский городской округ, деревня Лапино, 59Б
Пыхтино
17 мин.
149 м²
Площадь дома
8 сот
Площадь участка
Газобетонный блок
Материал постройки
2
Этажей
Описание
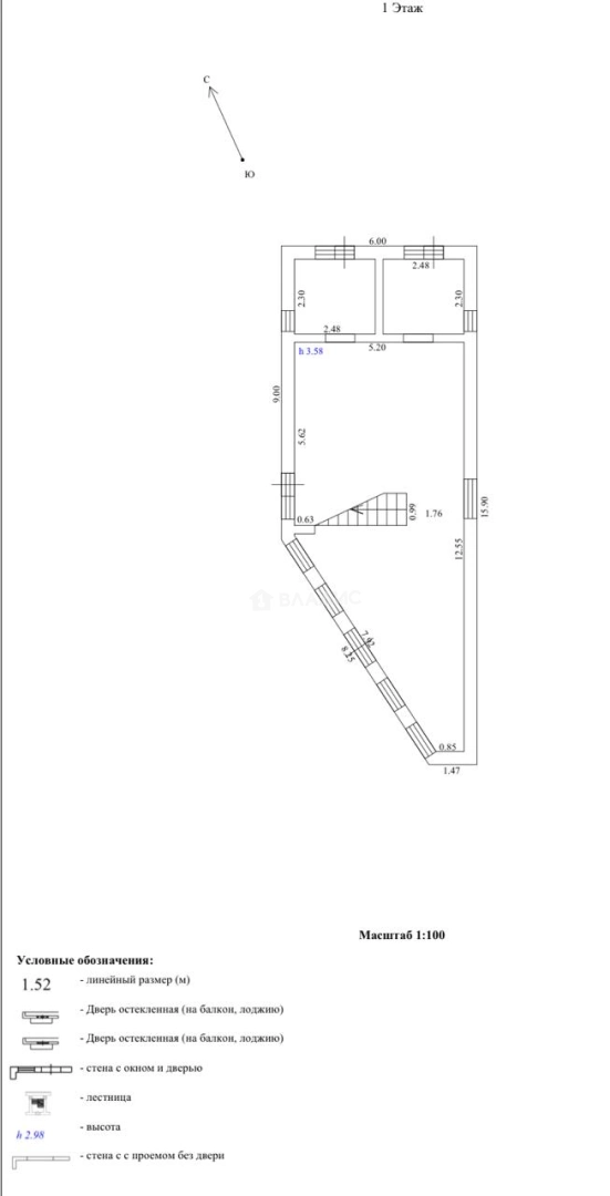
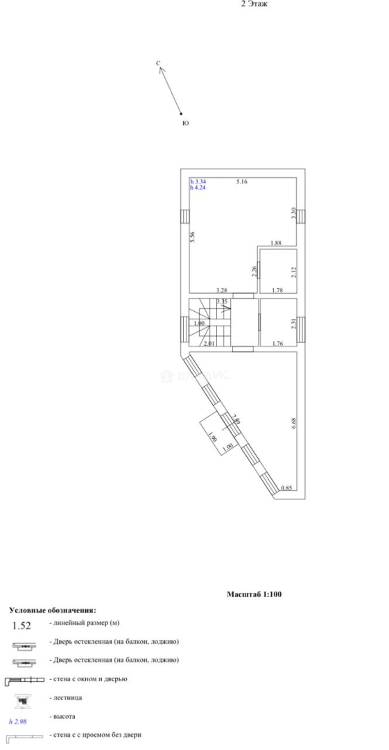
Дом построен в 2024 году. Фундамент - монолит 45см; стены - газобетонные блоки; кровля сделана из металлочерепицы. Высота потолков — 3,4 метра на первом этаже и до 4,4 метров на втором этаже.
Разводка коммуникаций осуществлена (электричество, отопление, вода).
Дом подходит для круглогодичного проживания и стоит на кадастровом учете.
Общая площадь дома составляет 149 кв. м. На первом этаже: входная группа, кухня-гостиная, бойлерная и санузел (с возможностью сделать отдельную комнату - кабинет или спальню). На втором этаже расположены 2 спальные комнаты с гардеробной и санузлом (с возможностью перепланировать пространство и добавить спальню и санузел). В доме ведутся фасадные работы и завершается внутренняя отделка.
Благодаря планировке и большому количеству окон пространство наполнено естественным светом! Установлены окна Rehau 72мм с тонировкой.
НА ДАННЫЙ МОМЕНТ ВОЗМОЖНЫ ВНЕСЕНИЯ ИЗМЕНЕНИЙ В ПЛАНИРОВКУ И ФИНИШНУЮ ОТДЕЛКУ.
Участок 8 соток (с возможностью увеличения), статус - ЛПХ, земли населенных пунктов. К участку можно подъехать с двух сторон, подъезд асфальтированный.
Расположение дома очень удобное: деревня Лапино находится в экологически чистом районе с развитой инфраструктурой, при этом имеет хорошую транспортную доступность - добраться можно по скоростной трассе М1 и по Рублево-Успенскому шоссе.
Полная стоимость в договоре. Обременения отсутствуют. Показы по договоренности. Звоните!
О доме
Год постройки
2024
Этажей в доме
2
Общая площадь
149 м²
Жилая площадь
80 м²
Площадь кухни
30 м²
Площадь комнат
30+30+20 м²
Материал постройки
Газобетонный блок
Материал перекрытий
Ж/б плиты
Материал кровли
Металлочерепица
Высота потолков
3.4 м
Об участке
Площадь участка
8 сот.
Статус участка
Личное подсобное хозяйство
Электричество
Есть
Водоснабжение
Есть
Без благоустройства участка
Есть
Подъезд к участку
Асфальт
Расположение
Россия, Московская область, Одинцовский городской округ, деревня Лапино, 59Б
Пыхтино
17 мин.
Ипотечный калькулятор
Заполните 1 анкету — получите предложения от десятков банков на специальных условиях
Программа ипотеки
Стоимость жилья, ₽
Первый взнос, ₽
Срок кредита
от 5.75%
Ставка
от 167 280 ₽
Платеж в месяц
Расчёт носит информационный характер и не является публичной офертой
Предложите свою цену
26 590 000 ₽
178 456 ₽/м²




















