Купить дом на улице Первомайская в Московской области
Россия, Московская область, Раменский муниципальный округ, посёлок городского типа Ильинский, Первомайская улица, 45
140 м²
Площадь дома
14.5 сот
Площадь участка
Бревно
Материал постройки
2
Этажей
Описание
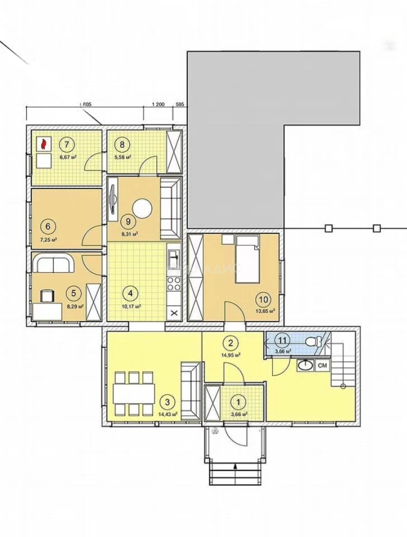
Дом построен в 2020 году из дерева, общая площадь — 140 кв. м, жилая — 62,05 кв. м. В доме 6 комнат, есть кухня площадью 14,43 кв. м. На участке в 14,5 соток — асфальт, водоснабжение от скважины, проведены газ, канализация и электричество. Отопление — своя котельная. В доме сделан евроремонт, можно заезжать и жить!
Расположение дома порадует тех, кто ценит близость к городской инфраструктуре, но хочет жить в более спокойном и тихом месте. Здесь вы сможете наслаждаться комфортом и уютом, при этом оставаясь недалеко от городской суеты.
Прекрасный угловой участок в тихой части старинного поселка. Огромная придомовая территория. В пешей доступности станция МЦД, магазины и пункты выдачи.
Не упустите шанс стать владельцем замечательного дома! Позвоните нам прямо сейчас, чтобы узнать больше и записаться на просмотр.
Мы гарантируем безопасную сделку и юридическую поддержку нашим Клиентам. Поможем одобрить ипотеку с сниженной ставкой.
О доме
Год постройки
2020
Этажей в доме
2
Общая площадь
140 м²
Жилая площадь
62.05 м²
Площадь кухни
14.43 м²
Площадь комнат
8,29+7,25+8,31+13,65+ 15,04+9,51 м²
Материал постройки
Бревно
Материал перекрытий
Деревянные
Материал кровли
Металлочерепица
Совмещенных санузлов
1
Об участке
Площадь участка
14.5 сот.
Статус участка
Индивидуальное жилищное строительство
Электричество
Есть
Газ
Есть
Водоснабжение
Есть
Канализация
Есть
Без благоустройства участка
Есть
Подъезд к участку
Асфальт
Расположение
Россия, Московская область, Раменский муниципальный округ, посёлок городского типа Ильинский, Первомайская улица, 45
Ипотечный калькулятор
Заполните 1 анкету — получите предложения от десятков банков на специальных условиях
Программа ипотеки
Стоимость жилья, ₽
Первый взнос, ₽
Срок кредита
от 5.75%
Ставка
от 100 028 ₽
Платеж в месяц
Расчёт носит информационный характер и не является публичной офертой
Шульцов Евгений
Специалист по недвижимости
Предложите свою цену
15 900 000 ₽
113 571 ₽/м²
















