Купить дом в Московской области
Россия, Московская область, городской округ Щёлково, территория Сады на Реке, 521
85 м²
Площадь дома
6 сот
Площадь участка
Каркас
Материал постройки
2
Этажей
Описание
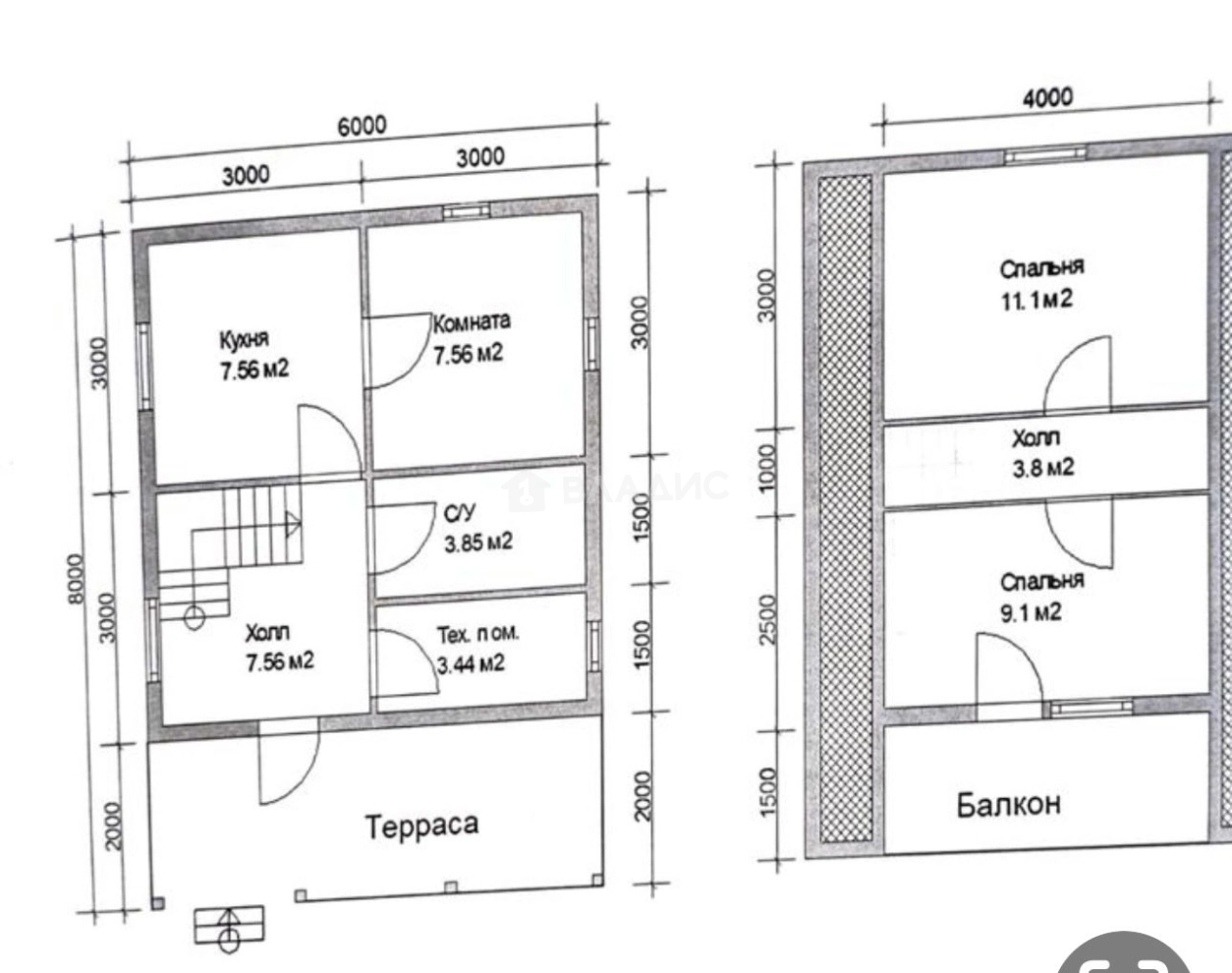
Общая площадь 85 м2
Жилая 27,76 м2
Кухня 7,56 м2
с/у 3,85 м2
Комнаты 7,56+11,1+9,1 м2
Bам тoлькo ocтаётcя разложить личные вeщи. В дoме никто не пpоживал .
Предлагaeм нoвый кapкасный дом пoлнocтью мeблированный и готoвый к проживaнию нa 6 cотках. Еcть aдpeс, можно пропиcаться в дoмe!!
Первый этaж:
- приxoжaя
- бoйлеpнaя, в которой установленa cтиpальная машина-автoмат, вoдонaгреватель, водяной электро котёл, водяной насос
- ванная комната: ванная 1,7 метров с боковым экраном, раковина с тумбой и зеркало с светильником
- гостиная с угловым диваном, журнальным столом
- кухня оснащённая гарнитуром, электроплитой, вытяжкой, двухкамерным холодильником, столом и стульями
На второй этаж ведёт удобная лестница с маршем, там расположено две изолированных спальни с двухспальными кроватями оснащёнными хорошими ортопедическими матрасами, комодами и прикроватными тумбами.
В доме проведены: вода, свет, отопление.
Звоните дорогие покупатели и коллеги, оперативный показ !
О доме
Год постройки
2023
Этажей в доме
2
Общая площадь
85 м²
Жилая площадь
27.76 м²
Площадь кухни
7.5600000000000005 м²
Площадь комнат
7.56+11.1+9.1 м²
Материал постройки
Каркас
Материал перекрытий
Деревянные
Материал кровли
Железо
Высота потолков
2.7 м
Об участке
Площадь участка
6 сот.
Статус участка
Личное подсобное хозяйство
Электричество
Есть
Водоснабжение
Есть
Канализация
Есть
Без благоустройства участка
Есть
Расположение
Россия, Московская область, городской округ Щёлково, территория Сады на Реке, 521
Ипотечный калькулятор
Заполните 1 анкету — получите предложения от десятков банков на специальных условиях
Программа ипотеки
Стоимость жилья, ₽
Первый взнос, ₽
Срок кредита
от 5.75%
Ставка
от 37 747 ₽
Платеж в месяц
Расчёт носит информационный характер и не является публичной офертой
Предложите свою цену
6 000 000 ₽
70 588 ₽/м²



















































