Купить дом в Московской области
Россия, Московская область, городской округ Воскресенск, деревня Белое Озеро
263 м²
Площадь дома
6.7 сот
Площадь участка
Газобетонный блок
Материал постройки
2
Этажей
Описание
• Дом состоит из двух строений: большой основной жилой дом и вспомогательный жилой дом , который включает в себя гараж на два автомобиля. В каждом доме уже подключено отопление магистральным газом.
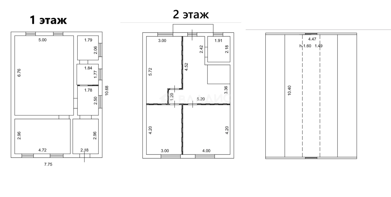
•Дом построен в 2024 году из теплых блоков на ленточном фундаменте, в нем выполнен евроремонт и идеально подходит для круглогодичного проживания большой семьи. Ощутите много пространства над головой ! Высота потолков 3,5 м создаёт ощущение простора, а просторные отделанные комнаты (17 + 16 + 18 + 31 + 18 кв. м) позволяют воплотить любые идеи. В доме выполнен качественный евроремонт и идеально подходит для круглогодичного проживания. Кухня имеет площадь 16 кв. м.
• Установлены кондиционеры во всех жилых помещениях и кухни!!!
• Жилой объект расположен вблизи железнодорожной станции в деревне Белое озеро Воскресенского района. Ж/Д станция Фаустово – 10 мин пешком.
•Участок ИЖС огорожен забором. на участке уже есть септик, вода из колодца. есть возможность расширить участок .
• Дом полностью готов к проживанию. Газовое отопление.Санузлы оборудованы всей сантехникой сделано всё освещение, розетки и выключатели, Дом подключён ко всем необходимым коммуникациям: электричество, водоснабжение , газ, канализация. Отопление обеспечивается индивидуальным газовым котлом. Чистовая полная отделка дома заехал и живи сразу .
•Вас порадует при общей площади 263 м², очень низкая стоимость!
•Подъезд к дому асфальтированный.
•Расположение дома выгодно отличает его от других предложений: всего 1 км до города, развитая транспортная доступность. Ж/Д станция Фаустово – 10 мин пешком. Удобно на электричке за 1 час доехать до Выхино. Рядом в 10 минутах ходьбы школа, детские сады, магазины, отделение банков. В 3 мин на машине город Белозерский с развитой инфраструктурой — магазины, школы, медицинские учреждения и многое другое. Очень удобное место для проживания До цента города Воскресенск на машине 22 минуты, г. Бронницы 20 мин., г. Раменское 25 мин До ближайших ТЦ (Пятерочка, В1, стройрынок, многое другое) – 10 минут пешком Рядом красивое и чистое озеро Островное и озеро Белое, где можно купаться, а также большой лесной массив.
Не упустите шанс стать владельцем этого прекрасного жилого дома.! Позвоните нам прямо сейчас, чтобы узнать больше и записаться на просмотр.Просмотр доступен в любое удобное время.
Мы гарантируем безопасную сделку и юридическую поддержку нашим Клиентам. Поможем одобрить ипотеку с сниженной ставкой.
О доме
Год постройки
2024
Этажей в доме
2
Общая площадь
263 м²
Жилая площадь
100 м²
Площадь кухни
16 м²
Площадь комнат
17+16+18+31+ 18 м²
Материал постройки
Газобетонный блок
Материал перекрытий
Деревянные
Материал кровли
Железо
Высота потолков
3.5 м
Об участке
Площадь участка
6.7 сот.
Статус участка
Индивидуальное жилищное строительство
Электричество
Есть
Газ
Есть
Водоснабжение
Есть
Канализация
Есть
Гараж
Есть
Подъезд к участку
Асфальт
Расположение
Россия, Московская область, городской округ Воскресенск, деревня Белое Озеро
Ипотечный калькулятор
Заполните 1 анкету — получите предложения от десятков банков на специальных условиях
Программа ипотеки
Стоимость жилья, ₽
Первый взнос, ₽
Срок кредита
от 5.75%
Ставка
от 72 341 ₽
Платеж в месяц
Расчёт носит информационный характер и не является публичной офертой
Предложите свою цену
11 499 000 ₽
43 722 ₽/м²


























































































