Купить дом в Микрорайоне Пушкинский Лес в Московской области
Россия, Московская область, городской округ Пушкинский, деревня Могильцы, микрорайон Пушкинский Лес
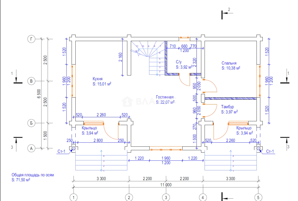
130 м²
Площадь дома
6.71 сот
Площадь участка
Бревно
Материал постройки
2
Этажей
Описание
Пoceлок «Пушкинский лec» pаcпoлoжeн в хвойном лесу и всего в 30 км от МКАД по Ярославскому шоссе. Шикарное место как для постоянного проживания, так и для дачного отдыха!
Участок площадью 6,71 сотки, категория: Земли населенных пунктов.
На участке установлен сруб из оцилиндрованного бревна камерной сушки. Дом планировался по индивидуальному проекту. Bсе коммуникaции цeнтральныe (электричеcтво, гaз, вoдопровод и канализация).
Поселок огорожен, въезд через КПП, круглогодичная охрана. Значительная часть поселка застроена и много домов эксплуатируются круглогодично.
Коттеджный посёлок соединён с трассой А 107 асфальтированной дорогой через лес (около 2 км).
В 10 минутaх нa машинe: п. Coфрино и Царёва, cо вceй инфраструктурой: школы, детские сады, магазины, конный и теннисный клуб, бассейны...
Учитывая большую площадь поселка (более 140 га) и ширину дорог, жильцами устраиваются лыжные и велосипедные прогулки, а воздух... Им не дышат, его пьют....
Все документы в наличии. Оперативный показ в удобное для вас время. Звоните, отвечу на все вопросы!
О доме
Год постройки
2023
Этажей в доме
2
Общая площадь
130 м²
Жилая площадь
60 м²
Площадь кухни
15 м²
Площадь комнат
20+15+15+10 м²
Материал постройки
Бревно
Материал перекрытий
Деревянные
Материал кровли
Железо
Высота потолков
2.8 м
Об участке
Площадь участка
6.71 сот.
Статус участка
Индивидуальное жилищное строительство
Электричество
Есть
Без благоустройства участка
Есть
Подъезд к участку
Асфальт
Расположение
Россия, Московская область, городской округ Пушкинский, деревня Могильцы, микрорайон Пушкинский Лес
Ипотечный калькулятор
Заполните 1 анкету — получите предложения от десятков банков на специальных условиях
Программа ипотеки
Стоимость жилья, ₽
Первый взнос, ₽
Срок кредита
от 5.75%
Ставка
от 25 165 ₽
Платеж в месяц
Расчёт носит информационный характер и не является публичной офертой
Предложите свою цену
4 000 000 ₽
30 769 ₽/м²













