Подберём квартиру под ваш запрос и бюджет

Учитываем район, метраж, этаж и цели покупки. Покажем только подходящие варианты

Подберём надёжную новостройку под ваш бюджет

Учитываем локацию, срок сдачи и цели покупки — от жизни до инвестиций

Найдём дом, дачу или участок под ваши задачи

Расскажем, где лучше купить, что построить и как не переплатить

    Поможем купить или продать коммерческую недвижимость

    Подберём площадку под ваш бизнес или найдём покупателя на объект

    Поможем сдать или найти жильё в аренду без хлопот

    Найдём надёжных арендаторов или подберём подходящий вариант под ваш запрос

    Всё для быстрой и безопасной сделки — в одном месте

    Подбор ипотеки, страхование, продажа под ключ — без лишних хлопот

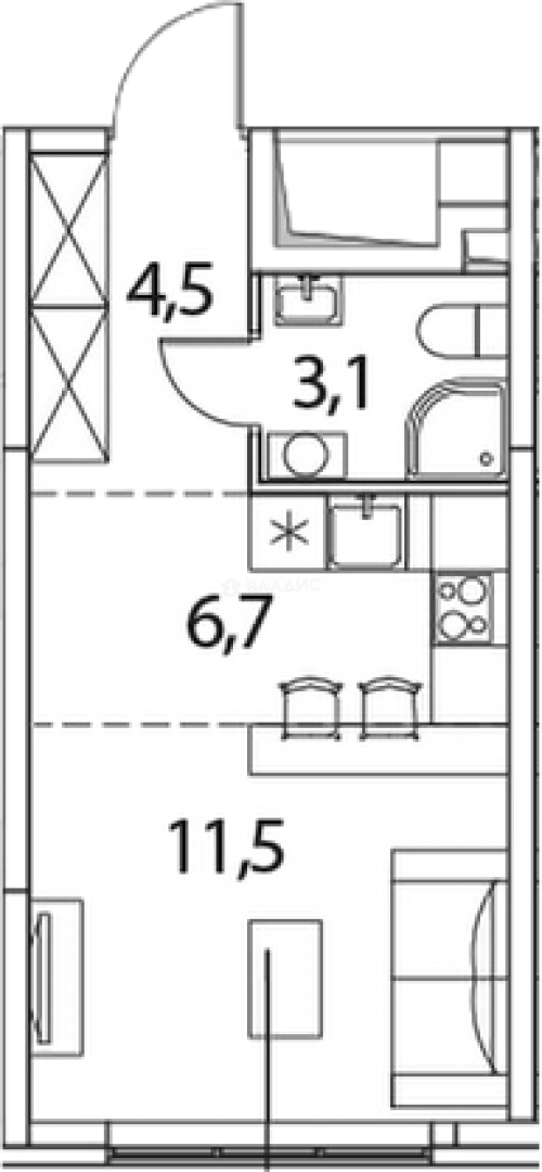
    Продается Студия, 25.8  м²

    Россия, Московская область, городской округ Химки, деревня Рузино, микрорайон Кутузовский, жилой комплекс Новый Зеленоград, 2А

    Нахабино

    19 мин.

    25.8 м²

    Общая площадь

    18.2 м²

    Жилая площадь

    15 из 17

    Этаж

    Описание

    В жилом комплексе «Новый Зеленоград» нет однотипных домов — все здания созданы по индивидуальным проектам с использованием новейших экологически чистых материалов и инновационных подходов. В оформлении стен используется современный навесной вентилируемый фасад с яркими цветовыми акцентами. В каждом корпусе предусмотрены дизайнерские входные группы, колясочные и кладовые.

    В ЖК «Новый Зеленоград» предложено множество планировочных решений: в наличии квартиры как классического типа, так и европланировки. Сдаются они без стен и высотой потолков от 2,8 метров, а из панорамных окон открывается прекрасный вид на лес.

    На территории жилого комплекса «Новый Зеленоград» предусмотрены детские сады и школы. Придомовая территория выполнена по концепции «двор без машин». Во дворах выполнен ландшафтный дизайн, установлены детские и спортивные площадки, организованы места для отдыха и воркаут зоны, также продуманы места для выгула собак. На первых этажах корпусов расположены коммерческие помещения. Для владельцев автомобилей предусмотрена стоянка. По всей территории проекта ведется круглосуточное видеонаблюдение.

    Жилой комплекс «Новый Зеленоград» расположен в одном из самых экологически чистых и красивых мест на территории Солнечногорского района, в 500 метрах от Зеленограда. Метро «Пятницкое шоссе» расположено в 25 минутах транспортом.

    ID объекта: 977361
    Обновлено 22 апреля 2024 г.

    О квартире

    Общая площадь

    25.8 м²

    Жилая площадь

    18.2 м²

    Площадь комнат

    18.2 м²

    Высота потолков

    2.7199999999999998 м

    Подъезд

    1

    Этаж

    15

    Окна выходят

    На улицу

    О доме

    Год постройки

    2023

    Этажность

    17

    Количество подъездов

    2

    Материал постройки

    Кирпично-монолитный

    Материал перекрытий

    Ж/б плиты

    Отопление

    Центральное

    Пассажирских лифтов

    1

    Грузовых лифтов

    1

    Парковка

    Наземная

    Расположение

    Россия, Московская область, городской округ Химки, деревня Рузино, микрорайон Кутузовский, жилой комплекс Новый Зеленоград, 2А

    Нахабино

    19 мин.

    Аникеевка

    21 мин.

    Опалиха

    23 мин.

    Пятницкое шоссе

    24 мин.

    Митино

    25 мин.

    Красногорская

    26 мин.

    Волоколамская

    28 мин.

    Павшино

    28 мин.

    Ипотечный калькулятор

    Заполните 1 анкету — получите предложения от десятков банков на специальных условиях

    Программа ипотеки

    Семейная ипотека (от 5,75%)

    Стоимость жилья, ₽

    Первый взнос, ₽

    Срок кредита

    от 5.75%

    Ставка

    от 31 338 ₽

    Платеж в месяц

    Расчёт носит информационный характер и не является публичной офертой

    Похожие объекты

    . Вариант № 74839, 0, площадь - 23.5 квм, цена 4753393 рублей
    . Вариант № 74839, 1, площадь - 23.5 квм, цена 4753393 рублей
    . Вариант № 74839, 2, площадь - 23.5 квм, цена 4753393 рублей
    . Вариант № 74839, 3, площадь - 23.5 квм, цена 4753393 рублей
    . Вариант № 74839, 4, площадь - 23.5 квм, цена 4753393 рублей
    . Вариант № 74839, 5, площадь - 23.5 квм, цена 4753393 рублей
    . Вариант № 74839, 6, площадь - 23.5 квм, цена 4753393 рублей
    . Вариант № 74839, 7, площадь - 23.5 квм, цена 4753393 рублей
    . Вариант № 74839, 8, площадь - 23.5 квм, цена 4753393 рублей
    . Вариант № 74839, 9, площадь - 23.5 квм, цена 4753393 рублей
    1 из 10
    4 753 393 ₽

    Студия, 23,5 м², 17/17 эт.

    Нахабино

    19 мин.

    Московская область, городской округ Солнечногорск, деревня Рузино, микрорайон Кутузовский, 1Б
    . Вариант № 74855, 0, площадь - 25.8 квм, цена 5027279 рублей
    . Вариант № 74855, 1, площадь - 25.8 квм, цена 5027279 рублей
    . Вариант № 74855, 2, площадь - 25.8 квм, цена 5027279 рублей
    . Вариант № 74855, 3, площадь - 25.8 квм, цена 5027279 рублей
    . Вариант № 74855, 4, площадь - 25.8 квм, цена 5027279 рублей
    . Вариант № 74855, 5, площадь - 25.8 квм, цена 5027279 рублей
    . Вариант № 74855, 6, площадь - 25.8 квм, цена 5027279 рублей
    . Вариант № 74855, 7, площадь - 25.8 квм, цена 5027279 рублей
    . Вариант № 74855, 8, площадь - 25.8 квм, цена 5027279 рублей
    . Вариант № 74855, 9, площадь - 25.8 квм, цена 5027279 рублей
    1 из 10
    5 027 279 ₽

    Студия, 25,8 м², 16/17 эт.

    Нахабино

    19 мин.

    Московская область, городской округ Солнечногорск, деревня Рузино, микрорайон Кутузовский, жилой комплекс Новый Зеленоград, 2Б
    . Вариант № 74838, 0, площадь - 23.5 квм, цена 4773620 рублей
    . Вариант № 74838, 1, площадь - 23.5 квм, цена 4773620 рублей
    . Вариант № 74838, 2, площадь - 23.5 квм, цена 4773620 рублей
    . Вариант № 74838, 3, площадь - 23.5 квм, цена 4773620 рублей
    . Вариант № 74838, 4, площадь - 23.5 квм, цена 4773620 рублей
    . Вариант № 74838, 5, площадь - 23.5 квм, цена 4773620 рублей
    . Вариант № 74838, 6, площадь - 23.5 квм, цена 4773620 рублей
    . Вариант № 74838, 7, площадь - 23.5 квм, цена 4773620 рублей
    . Вариант № 74838, 8, площадь - 23.5 квм, цена 4773620 рублей
    . Вариант № 74838, 9, площадь - 23.5 квм, цена 4773620 рублей
    1 из 10
    4 773 620 ₽

    Студия, 23,5 м², 17/17 эт.

    Нахабино

    19 мин.

    Московская область, городской округ Солнечногорск, деревня Рузино, микрорайон Кутузовский, 1Б
    . Вариант № 74844, 0, площадь - 25.8 квм, цена 4957866 рублей
    . Вариант № 74844, 1, площадь - 25.8 квм, цена 4957866 рублей
    . Вариант № 74844, 2, площадь - 25.8 квм, цена 4957866 рублей
    . Вариант № 74844, 3, площадь - 25.8 квм, цена 4957866 рублей
    . Вариант № 74844, 4, площадь - 25.8 квм, цена 4957866 рублей
    . Вариант № 74844, 5, площадь - 25.8 квм, цена 4957866 рублей
    . Вариант № 74844, 6, площадь - 25.8 квм, цена 4957866 рублей
    . Вариант № 74844, 7, площадь - 25.8 квм, цена 4957866 рублей
    . Вариант № 74844, 8, площадь - 25.8 квм, цена 4957866 рублей
    . Вариант № 74844, 9, площадь - 25.8 квм, цена 4957866 рублей
    1 из 10
    4 957 866 ₽

    Студия, 25,8 м², 13/17 эт.

    Нахабино

    19 мин.

    Московская область, городской округ Солнечногорск, деревня Рузино, микрорайон Кутузовский, жилой комплекс Новый Зеленоград, 2Б
    . Вариант № 82278, 0, площадь - 23.5 квм, цена 4657487 рублей
    . Вариант № 82278, 1, площадь - 23.5 квм, цена 4657487 рублей
    . Вариант № 82278, 2, площадь - 23.5 квм, цена 4657487 рублей
    . Вариант № 82278, 3, площадь - 23.5 квм, цена 4657487 рублей
    . Вариант № 82278, 4, площадь - 23.5 квм, цена 4657487 рублей
    . Вариант № 82278, 5, площадь - 23.5 квм, цена 4657487 рублей
    . Вариант № 82278, 6, площадь - 23.5 квм, цена 4657487 рублей
    . Вариант № 82278, 7, площадь - 23.5 квм, цена 4657487 рублей
    . Вариант № 82278, 8, площадь - 23.5 квм, цена 4657487 рублей
    1 из 9
    4 657 487 ₽

    Студия, 23,5 м², 14/17 эт.

    Нахабино

    19 мин.

    Московская область, городской округ Солнечногорск, деревня Рузино, микрорайон Кутузовский, жилой комплекс Новый Зеленоград, 2Б
    . Вариант № 74851, 0, площадь - 25.8 квм, цена 4957890 рублей
    . Вариант № 74851, 1, площадь - 25.8 квм, цена 4957890 рублей
    . Вариант № 74851, 2, площадь - 25.8 квм, цена 4957890 рублей
    . Вариант № 74851, 3, площадь - 25.8 квм, цена 4957890 рублей
    . Вариант № 74851, 4, площадь - 25.8 квм, цена 4957890 рублей
    . Вариант № 74851, 5, площадь - 25.8 квм, цена 4957890 рублей
    . Вариант № 74851, 6, площадь - 25.8 квм, цена 4957890 рублей
    . Вариант № 74851, 7, площадь - 25.8 квм, цена 4957890 рублей
    . Вариант № 74851, 8, площадь - 25.8 квм, цена 4957890 рублей
    . Вариант № 74851, 9, площадь - 25.8 квм, цена 4957890 рублей
    1 из 10
    4 957 890 ₽

    Студия, 25,8 м², 13/17 эт.

    Нахабино

    19 мин.

    Московская область, городской округ Солнечногорск, деревня Рузино, микрорайон Кутузовский, жилой комплекс Новый Зеленоград, 2Б
    4 981 290 ₽
    Консультант по новостройкам

    Консультант по новостройкам

    4 981 290 ₽

    193 074 ₽/м²