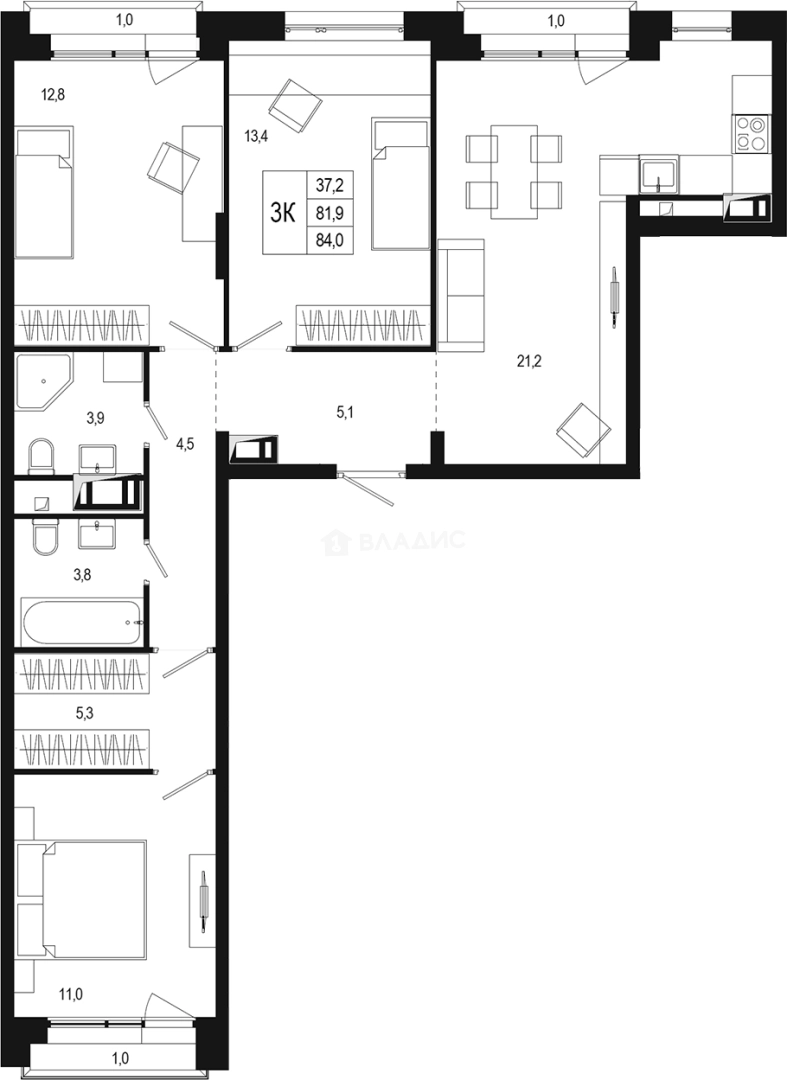
Продается 3-комн. квартира, 81.9 м²
Россия, Московская область, городской округ Подольск, деревня Борисовка, ЖК Новая Щербинка
Бульвар Адмирала Ушакова
12 мин.
81.9 м²
Общая площадь
37.2 м²
Жилая площадь
21.2 м²
Площадь кухни
4 из 8
Этаж
Описание
В комплексе предложено множество планировочных решений: от студий до трехкомнатных квартир. В квартирах предусмотрено панорамное остекление балконов. Они сдаются с подчистовой, чистовой отделкой, а также без отделки и высотой потолков 2,8 м.
В состав комплекса входит 2 детских сада на 140 и 180 мест, а также школа на 500 мест. На первых этажах расположены коммерческие помещения. Двор закрыт от автомобилей и случайных прохожих. Для автовладельцев предусмотрено два наземных паркинга на 300 и 600 мест. Территория благоустроена: велодорожки и прогулочные дорожки, детские игровые площадки и места для отдыха, торгово - офисный центр.
ЖК расположен в деревне Борисовка на территории городского округа Подольск. Комплекс окружен лесным массивом — с одной стороны протекает Висенковый ручей. Рядом с комплексом, помимо окружающих его леса и водоемов, расположено несколько дворянских усадеб: «Плещеево», «Дубровицы», «Остафьево» и музей-заповедник «Подолье».
О квартире
Общая площадь
81.9 м²
Жилая площадь
37.2 м²
Площадь кухни
21.2 м²
Площадь комнат
13.4+12.8+11 м²
Высота потолков
2.74 м
Подъезд
1
Этаж
4
Окна выходят
На улицу
О доме
Год постройки
2025
Этажность
8
Количество подъездов
3
Материал постройки
Кирпично-монолитный
Материал перекрытий
Монолитные
Отопление
Центральное
Грузовых лифтов
1
Парковка
Многоуровневая
Расположение
Россия, Московская область, городской округ Подольск, деревня Борисовка, ЖК Новая Щербинка
Бульвар Адмирала Ушакова
12 мин.
Улица Горчакова
12 мин.
Улица Скобелевская
12 мин.
Ипотечный калькулятор
Заполните 1 анкету — получите предложения от десятков банков на специальных условиях
Программа ипотеки
Стоимость жилья, ₽
Первый взнос, ₽
Срок кредита
от 5.75%
Ставка
от 110 220 ₽
Платеж в месяц
Расчёт носит информационный характер и не является публичной офертой
Похожие объекты










3-комн. квартира, 74,6 м², 4/8 эт.
Бульвар Адмирала Ушакова
12 мин.










3-комн. квартира, 82 м², 3/8 эт.
Бульвар Адмирала Ушакова
12 мин.










3-комн. квартира, 83 м², 1/8 эт.
Бульвар Адмирала Ушакова
12 мин.










3-комн. квартира, 81,9 м², 3/8 эт.
Бульвар Адмирала Ушакова
12 мин.
Консультант по новостройкам
17 519 997 ₽
213 920 ₽/м²











