Продается 2-комн. квартира, 59 м²
Россия, Московская область, городской округ Подольск, деревня Борисовка, ЖК Новая Щербинка
Бульвар Адмирала Ушакова
12 мин.
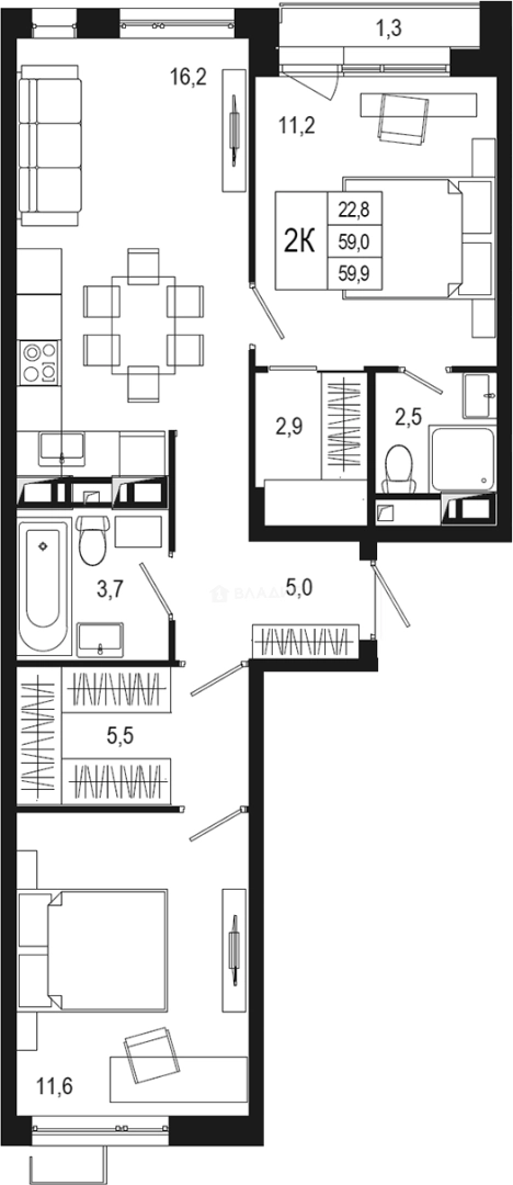
59 м²
Общая площадь
22.8 м²
Жилая площадь
16.2 м²
Площадь кухни
2 из 8
Этаж
Описание
В комплексе предложено множество планировочных решений: от студий до трехкомнатных квартир. В квартирах предусмотрено панорамное остекление балконов. Они сдаются с подчистовой, чистовой отделкой, а также без отделки и высотой потолков 2,8 м.
В состав комплекса входит 2 детских сада на 140 и 180 мест, а также школа на 500 мест. На первых этажах расположены коммерческие помещения. Двор закрыт от автомобилей и случайных прохожих. Для автовладельцев предусмотрено два наземных паркинга на 300 и 600 мест. Территория благоустроена: велодорожки и прогулочные дорожки, детские игровые площадки и места для отдыха, торгово - офисный центр.
ЖК расположен в деревне Борисовка на территории городского округа Подольск. Комплекс окружен лесным массивом — с одной стороны протекает Висенковый ручей. Рядом с комплексом, помимо окружающих его леса и водоемов, расположено несколько дворянских усадеб: «Плещеево», «Дубровицы», «Остафьево» и музей-заповедник «Подолье».
О квартире
Общая площадь
59 м²
Жилая площадь
22.8 м²
Площадь кухни
16.2 м²
Площадь комнат
11.2+11.6 м²
Высота потолков
2.74 м
Подъезд
3
Этаж
2
Окна выходят
На улицу
О доме
Год постройки
2025
Этажность
8
Количество подъездов
5
Материал постройки
Кирпично-монолитный
Материал перекрытий
Монолитные
Отопление
Центральное
Грузовых лифтов
1
Парковка
Многоуровневая
Расположение
Россия, Московская область, городской округ Подольск, деревня Борисовка, ЖК Новая Щербинка
Бульвар Адмирала Ушакова
12 мин.
Улица Горчакова
12 мин.
Улица Скобелевская
12 мин.
Ипотечный калькулятор
Заполните 1 анкету — получите предложения от десятков банков на специальных условиях
Программа ипотеки
Стоимость жилья, ₽
Первый взнос, ₽
Срок кредита
от 5.75%
Ставка
от 68 990 ₽
Платеж в месяц
Расчёт носит информационный характер и не является публичной офертой
Консультант по новостройкам
10 966 196 ₽
185 868 ₽/м²




















