Продается 2-комн. квартира, 123 м²
Россия, Московская область, Ленинский городской округ, деревня Сапроново, ЖК Первый Квартал, 6
Домодедовская
13 мин.
123 м²
Общая площадь
22.2 м²
Жилая площадь
20.8 м²
Площадь кухни
9 из 14
Этаж
Описание
В проекте предложено множество планировочных решений: в наличии квартиры как классического типа, так и европланировки. Доступны также эксклюзивные лоты: двухуровневые квартиры со вторым светом, квартиры с террасами, квартиры с личным входом с улицы. Во всех вариантах планировки предусмотрены лоджии или балконы. Квартиры сдаются с подчистовой отделкой, увеличенными окнами и высотой потолков от 2,7 до 6 метров.
Собственная инфраструктура комплекса включает в себя общеобразовательную школу и детский сад, магазины, соседский центр, предприятия услуг и офисные помещения, распложенные на первых этажах зданий. Каждый из домов квартала имеет закрытый благоустроенный двор, в котором размещены современные детские и спортивные площадки и зоны отдыха. На территории обустроен большой спортивный корт для игры в баскетбол с мягким покрытием. Через весь комплекс проходит небольшой парк, на территории высажено 40 видов растений. В комплексе реализована концепция «двор без машин». Для владельцев автомобилей предусмотрен отдельный многоуровневый паркинг.
Жилой комплекс находится в Ленинском районе Московской области в 6 микрорайоне города Видное. В районе уже сформированная инфраструктура: торговые центры, продуктовые магазины, аптеки, кафе, поликлиники, детские центры и другие повседневные сервисы в шаговой доступности. За десять минут от комплекса можно доехать до железнодорожной платформы «Расторгуево». До МКАД 6 километров, до ближайшего метро «Домодедовская» 25 минут транспортом.
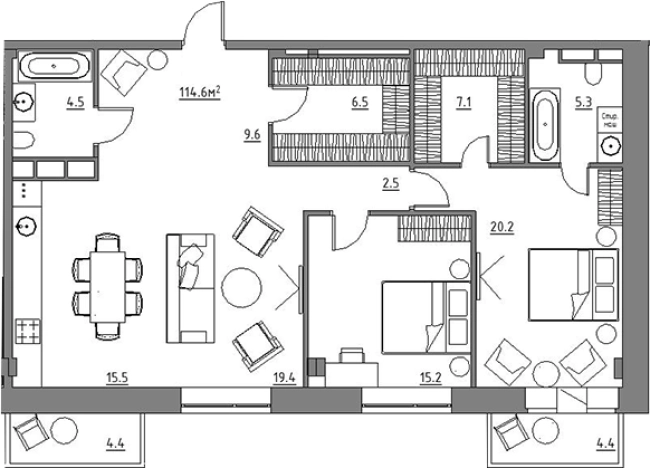
О квартире
Общая площадь
123 м²
Жилая площадь
22.2 м²
Площадь кухни
20.8 м²
Площадь комнат
10.7+11.5 м²
Высота потолков
6 м
Подъезд
4
Этаж
9
Окна выходят
На улицу
О доме
Год постройки
2026
Этажность
14
Количество подъездов
6
Материал постройки
Кирпично-монолитный
Материал перекрытий
Монолитные
Отопление
Центральное
Грузовых лифтов
1
Парковка
Наземная
Расположение
Россия, Московская область, Ленинский городской округ, деревня Сапроново, ЖК Первый Квартал, 6
Домодедовская
13 мин.
Орехово
14 мин.
Зябликово
14 мин.
Аннино
14 мин.
Красногвардейская
14 мин.
Ипотечный калькулятор
Заполните 1 анкету — получите предложения от десятков банков на специальных условиях
Программа ипотеки
Стоимость жилья, ₽
Первый взнос, ₽
Срок кредита
от 5.75%
Ставка
от 130 163 ₽
Платеж в месяц
Расчёт носит информационный характер и не является публичной офертой
Похожие объекты








3-комн. квартира, 105,8 м², 3/6 эт.
Битца
15 мин.








3-комн. квартира, 105,8 м², 2/6 эт.
Битца
15 мин.













3-комн. квартира, 115,6 м², 2/14 эт.
Домодедовская
13 мин.













2-комн. квартира, 129,5 м², 7/14 эт.
Домодедовская
13 мин.
Консультант по новостройкам
20 690 000 ₽
168 212 ₽/м²


























