Продается 2-комн. квартира, 51 м²
Россия, Московская область, Раменский муниципальный округ, посёлок городского типа Ильинский, Октябрьская улица, 57к3
51 м²
Общая площадь
30 м²
Жилая площадь
9 м²
Площадь кухни
2 из 5
Этаж
Описание
Окна на юго-восток.
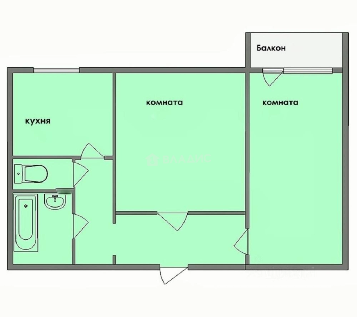
Комнаты изолированные, лоджия с выносом выход из гостиной, санузел раздельный.
Газ (плита 4 конфорки), Централизованное отопление, холодная и горячая вода оплата по счетчикам. Батареи заменены на чугунные.
Развитая инфраструктура: школа 26, стадион Авангард, Поликлиника, Сбербанк, Ильинский пруд.
В шаговой доступности детский сад, музыкальная школа, пятерочка, магнит, аптеки, рынок.
Станция МЦД3 Ильинская.
До метро Выхино 30 минут на электричке. Рядом инфраструктура города Жуковский и Раменское.
Один собственник. Никто не прописан. Полная сумма в договоре.
Кирпичная кладка стен и железобетонные перекрытия обеспечивают отличную шумо- и теплоизоляцию. Квартира с изолированными комнатами, окна выходят на улицу. Жилая площадь составляет 30 кв. м, кухня — 9 кв. м. Один раздельный санузел.
Старый ремонт создаёт возможности для реализации ваших дизайнерских идей. Наземная парковка обеспечит удобство для автовладельцев.
Не упустите шанс стать владельцем этой замечательной квартиры! Позвоните нам прямо сейчас, чтобы узнать больше и записаться на просмотр.
Мы гарантируем безопасную сделку и юридическую поддержку нашим Клиентам. Поможем одобрить ипотеку с сниженной ставкой.
О квартире
Общая площадь
51 м²
Жилая площадь
30 м²
Площадь кухни
9 м²
Этаж
2
Расположение квартиры
не угловая
Окна выходят
На улицу
Раздельных санузлов
1
Ремонт
Старый ремонт
Комнаты изолированныe
Да
О доме
Год постройки
1994
Этажность
5
Материал постройки
Кирпичный
Материал перекрытий
Ж/б плиты
Отопление
Центральное
Парковка
Наземная
Расположение
Россия, Московская область, Раменский муниципальный округ, посёлок городского типа Ильинский, Октябрьская улица, 57к3
Ипотечный калькулятор
Заполните 1 анкету — получите предложения от десятков банков на специальных условиях
Программа ипотеки
Стоимость жилья, ₽
Первый взнос, ₽
Срок кредита
от 5.75%
Ставка
от 42 780 ₽
Платеж в месяц
Расчёт носит информационный характер и не является публичной офертой
Предложите свою цену
6 800 000 ₽
133 333 ₽/м²


























































