Продается 2-комн. квартира, 98.12 м²
Россия, Московская область, городской округ Красногорск, жилой комплекс Рига Хиллс
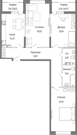
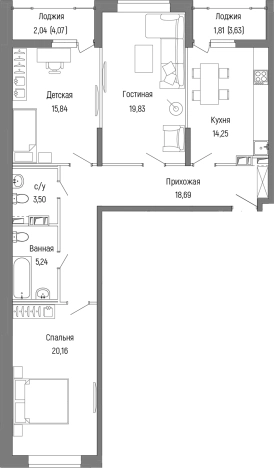
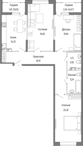
98.12 м²
Общая площадь
52.27 м²
Жилая площадь
17.39 м²
Площадь кухни
9 из 9
Этаж
Описание
В комплексе представлен широкий выбор разнообразных планировок: от компактных студий до пятикомнатных квартир европейского формата. Есть планировки с гардеробными и несколькими санузлами. Все квартиры имеют застекленные балконы или лоджии. Квартиры сдаются в различных вариантах: с базовой подчистовой отделкой white box и без отделки с трассировкой стен.
Комплекс имеет приватный живописный двор-сад с зелеными скверами и прогулочными аллеями. Во дворе размещены игровые площадки для детей и подростков и многофункциональные спортивные площадки, беговые и велодорожки, площадки для футбола и волейбола, мини-стадионы, зона воркаута и столы для пинг-понга, площадки для выгула собак, зоны для медитации и занятий йогой, лаунж-зоны с беседками, качелями и лежаками. В комплексе предусмотрен подземный паркинг, а также гостевой уличный паркинг. На подземном этаже располагаются кладовые, рассчитанные по принципу: одна кладовая на каждую квартиру.
Жилой комплекс расположен в ГО Красногорск, у деревни Бузланово. В 10–15 минутах от комплекса расположены несколько частных и общеобразовательных школ и гимназий. До госпиталя им. А. А. Вишневского — 3 минуты, до Ильинской больницы — 7 минут. Крупный торговый центр «Ригамолл» — всего в 9 минутах езды, а до гипермаркета «Глобус», ТЦ «Ильинский» и продуктового рынка — 7 минут. В 4 минутах находится офисный центр Riga Land. В 35 минутах транспортом метро «Строгино», «Волоколамская» и «Тушинская», МЦД-2 «Павшино». Комплекс имеет собственный выезд на дублер Новорижского шоссе. В 2025 году в 10 минутах от комплекса будет открыта станция метро «Ильинская».
О квартире
Общая площадь
98.12 м²
Жилая площадь
52.27 м²
Площадь кухни
17.39 м²
Площадь комнат
28.9+23.37 м²
Высота потолков
2.8 м
Этаж
9
Окна выходят
На улицу
О доме
Год постройки
2025
Этажность
9
Количество подъездов
7
Материал постройки
Кирпично-монолитный
Материал перекрытий
Монолитные
Отопление
Центральное
Пассажирских лифтов
1
Грузовых лифтов
1
Парковка
Подземная
Расположение
Россия, Московская область, городской округ Красногорск, жилой комплекс Рига Хиллс
Ипотечный калькулятор
Заполните 1 анкету — получите предложения от десятков банков на специальных условиях
Программа ипотеки
Стоимость жилья, ₽
Первый взнос, ₽
Срок кредита
от 5.75%
Ставка
от 111 830 ₽
Платеж в месяц
Расчёт носит информационный характер и не является публичной офертой
Похожие объекты











3-комн. квартира, 97,9 м², 6/9 эт.











3-комн. квартира, 97,5 м², 3/9 эт.











3-комн. квартира, 97,9 м², 9/9 эт.
Консультант по новостройкам
17 776 000 ₽
181 166 ₽/м²






















