Продается 1-комн. квартира, 36.5 м²
Россия, Московская область, Одинцовский городской округ, село Перхушково, микрорайон Равновесие, 2
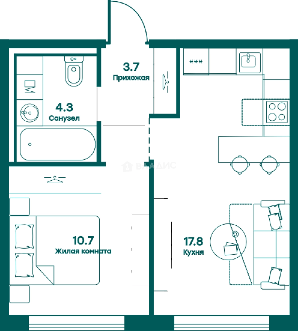
36.5 м²
Общая площадь
10.7 м²
Жилая площадь
6 из 6
Этаж
Описание
В ЖК предложено множество планировочных решений: в наличии квартиры, как классического типа, так и европланировки. Они сдаются без стен и высотой потолков 2,7 метра. В планировках спроектировано патио и террасы на верхних этажах.
В проекте предусмотрена концепция «двор без машин». На придомовой территории расположились зеленые зоны, благоустроенные прогулочные бульвары, детские и спортивные площадки. На территории комплекса находится детский сад и школа. Для владельцев автомобилей предусмотрена стоянка.
ЖК находится в Одинцовском районе. Инфраструктура развита, рядом с комплексом находятся: школы,детские сады, медицинские учреждения, магазины, кафе, банкоматы, ТЦ. До метро «Кунцевская» — 35 минут транспортом.
О квартире
Общая площадь
36.5 м²
Жилая площадь
10.7 м²
Подъезд
3
Этаж
6
Окна выходят
На улицу
О доме
Год постройки
2026
Этажность
6
Количество подъездов
4
Материал постройки
Кирпично-монолитный
Материал перекрытий
Монолитные
Отопление
Центральное
Грузовых лифтов
1
Парковка
Подземная
Расположение
Россия, Московская область, Одинцовский городской округ, село Перхушково, микрорайон Равновесие, 2
Ипотечный калькулятор
Заполните 1 анкету — получите предложения от десятков банков на специальных условиях
Программа ипотеки
Стоимость жилья, ₽
Первый взнос, ₽
Срок кредита
от 5.75%
Ставка
от 49 403 ₽
Платеж в месяц
Расчёт носит информационный характер и не является публичной офертой
Похожие объекты
















1-комн. квартира, 38,4 м², 2/6 эт.









1-комн. квартира, 38,3 м², 1/5 эт.
Одинцово
16 мин.
















1-комн. квартира, 38,1 м², 4/6 эт.
















1-комн. квартира, 38,1 м², 6/6 эт.
Консультант по новостройкам
7 852 766 ₽
215 145 ₽/м²

















