Продается 2-комн. квартира, 52.65 м²
Россия, Московская область, Ленинский городской округ, жилой комплекс Богдановский Лес, 10.2
Зябликово
19 мин.
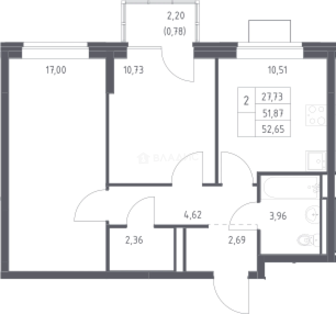
52.65 м²
Общая площадь
27.73 м²
Жилая площадь
10.51 м²
Площадь кухни
10 из 12
Этаж
Описание
В проекте представлено множество планировочных решений — от студий до просторных 4х-комнатных квартир. Лоты сдаются с чистовой отделкой, увеличенными окнами с угловым остеклением, высотой потолков 3 метра.
Территория комплекса благоустроена и закрыта от автомобилей. Имеются площадки для воркаута, игр в баскетбол и пинг-понг, велодорожки, бульвар для неспешных прогулок, поликлиника, физкультурно-оздоровительный комплекс и торгово-развлекательный центр. Для автовладельцев предусмотрены многоуровневые паркинги.
Жилой комплекс расположен в окружении зеленых зон, в районе с хорошо развитой инфраструктурой. В пешей доступности от комплекса находятся продовольственные магазины, аптеки, кафе и рестораны. До метро «Домодедовская» дорога на автомобиле занимает 30 минут
О квартире
Общая площадь
52.65 м²
Жилая площадь
27.73 м²
Площадь кухни
10.51 м²
Площадь комнат
17+10.73 м²
Подъезд
1
Этаж
10
Окна выходят
На улицу
О доме
Год постройки
2025
Этажность
12
Количество подъездов
3
Материал постройки
Кирпично-монолитный
Материал перекрытий
Ж/б плиты
Отопление
Центральное
Парковка
Многоуровневая
Расположение
Россия, Московская область, Ленинский городской округ, жилой комплекс Богдановский Лес, 10.2
Зябликово
19 мин.
Красногвардейская
19 мин.
Шипиловская
20 мин.
Алма-Атинская
20 мин.
Домодедовская
20 мин.
Борисово
21 мин.
Орехово
22 мин.
Ипотечный калькулятор
Заполните 1 анкету — получите предложения от десятков банков на специальных условиях
Программа ипотеки
Стоимость жилья, ₽
Первый взнос, ₽
Срок кредита
от 5.75%
Ставка
от 50 441 ₽
Платеж в месяц
Расчёт носит информационный характер и не является публичной офертой
Похожие объекты







2-комн. квартира, 52,0 м², 9/12 эт.
Зябликово
19 мин.







2-комн. квартира, 52,7 м², 10/12 эт.
Зябликово
19 мин.





2-комн. квартира, 51,8 м², 12/12 эт.
Зябликово
19 мин.





2-комн. квартира, 48,5 м², 10/12 эт.
Зябликово
19 мин.
Консультант по новостройкам
8 017 753 ₽
152 285 ₽/м²














