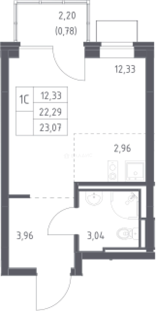
Продается Студия, 23.07 м²
Россия, Московская область, Ленинский городской округ, жилой комплекс Богдановский Лес, 10.2
Зябликово
19 мин.
23.07 м²
Общая площадь
12.29 м²
Жилая площадь
3 м²
Площадь кухни
12 из 12
Этаж
Описание
В проекте представлено множество планировочных решений — от студий до просторных 4х-комнатных квартир. Лоты сдаются с чистовой отделкой, увеличенными окнами с угловым остеклением, высотой потолков 3 метра.
Территория комплекса благоустроена и закрыта от автомобилей. Имеются площадки для воркаута, игр в баскетбол и пинг-понг, велодорожки, бульвар для неспешных прогулок, поликлиника, физкультурно-оздоровительный комплекс и торгово-развлекательный центр. Для автовладельцев предусмотрены многоуровневые паркинги.
Жилой комплекс расположен в окружении зеленых зон, в районе с хорошо развитой инфраструктурой. В пешей доступности от комплекса находятся продовольственные магазины, аптеки, кафе и рестораны. До метро «Домодедовская» дорога на автомобиле занимает 30 минут
О квартире
Общая площадь
23.07 м²
Жилая площадь
12.29 м²
Площадь кухни
3 м²
Площадь комнат
15.29 м²
Высота потолков
2.95 м
Подъезд
2
Этаж
12
Окна выходят
На улицу
О доме
Год постройки
2025
Этажность
12
Количество подъездов
3
Материал постройки
Кирпично-монолитный
Материал перекрытий
Ж/б плиты
Отопление
Центральное
Парковка
Многоуровневая
Расположение
Россия, Московская область, Ленинский городской округ, жилой комплекс Богдановский Лес, 10.2
Зябликово
19 мин.
Красногвардейская
19 мин.
Шипиловская
20 мин.
Алма-Атинская
20 мин.
Домодедовская
20 мин.
Борисово
21 мин.
Орехово
22 мин.
Ипотечный калькулятор
Заполните 1 анкету — получите предложения от десятков банков на специальных условиях
Программа ипотеки
Стоимость жилья, ₽
Первый взнос, ₽
Срок кредита
от 5.75%
Ставка
от 35 891 ₽
Платеж в месяц
Расчёт носит информационный характер и не является публичной офертой
Похожие объекты







Студия, 23,1 м², 10/12 эт.
Зябликово
19 мин.






Студия, 22,9 м², 8/12 эт.
Зябликово
19 мин.







Студия, 25,9 м², 9/12 эт.
Зябликово
19 мин.







Студия, 23,0 м², 12/12 эт.
Зябликово
19 мин.
Консультант по новостройкам
5 704 999 ₽
247 291 ₽/м²














