Продается Студия, 21.3 м²
Россия, Московская область, Ленинский городской округ, деревня Коробово, жилой комплекс Горки Парк, к7.2
Зябликово
17 мин.
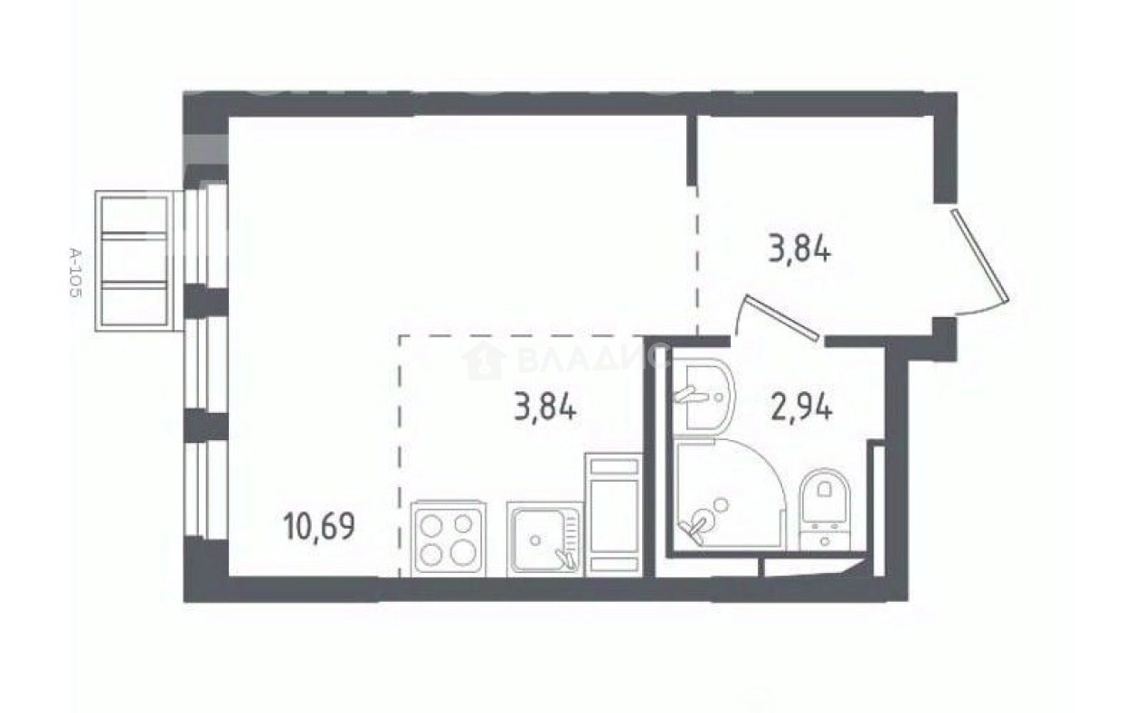
21.3 м²
Общая площадь
10.8 м²
Жилая площадь
3.84 м²
Площадь кухни
15 из 17
Этаж
Описание
На границе проекта расположены большой лес и Коробовские пруды.
У жителей комплекса будет свой выезд на трассу А-105, продолжение Каширского шоссе, по которой можно за 10 минут доехать до МКАД. Путь до центра Москвы займет 40 минут. " От станций метро Домодедовская (авт.404б, 404к, с810, маршрутка 1247к, 871д, 871м) 14 минут, вся инфраструктура рядом
На территории проекта строятся три школы, шесть детских садов и физкультурно-оздоровительный комплекс. В "Горки Парке" откроется своя поликлиника с современным оборудованием. На первых этажах домов будут продуктовые магазины, аптеки, кафе, бытовые услуги ,
Огороженная территория, въезд во двор через шлагбаум, детская и спортивная площадка, парковочные места, чистый подъезд, рядом магазины, парк для прогулок и занятий спортом, ТЦ Горки.
1 собственник. свободная продажа.
-полная стоимость, материнский капитал не использовался,
- можно в ипотеку
- подходит под сертификат, материнский капитал.
Звоните
О квартире
Общая площадь
21.3 м²
Жилая площадь
10.8 м²
Площадь кухни
3.84 м²
Площадь комнат
10,69 м²
Подъезд
3
Этаж
15
Расположение квартиры
не угловая
Окна выходят
Во двор
Совмещенных санузлов
1
Ремонт
Евро
О доме
Год постройки
2024
Этажность
17
Количество подъездов
6
Материал постройки
Кирпично-монолитный
Материал перекрытий
Ж/б плиты
Отопление
Центральное
Пассажирских лифтов
1
Грузовых лифтов
1
Парковка
Наземная
Огороженная территория
Да
Расположение
Россия, Московская область, Ленинский городской округ, деревня Коробово, жилой комплекс Горки Парк, к7.2
Зябликово
17 мин.
Красногвардейская
17 мин.
Домодедовская
18 мин.
Шипиловская
18 мин.
Ипотечный калькулятор
Заполните 1 анкету — получите предложения от десятков банков на специальных условиях
Программа ипотеки
Стоимость жилья, ₽
Первый взнос, ₽
Срок кредита
от 5.75%
Ставка
от 31 456 ₽
Платеж в месяц
Расчёт носит информационный характер и не является публичной офертой
Дубина Римма
Эксперт по недвижимости
Предложите свою цену
5 000 000 ₽
234 742 ₽/м²












