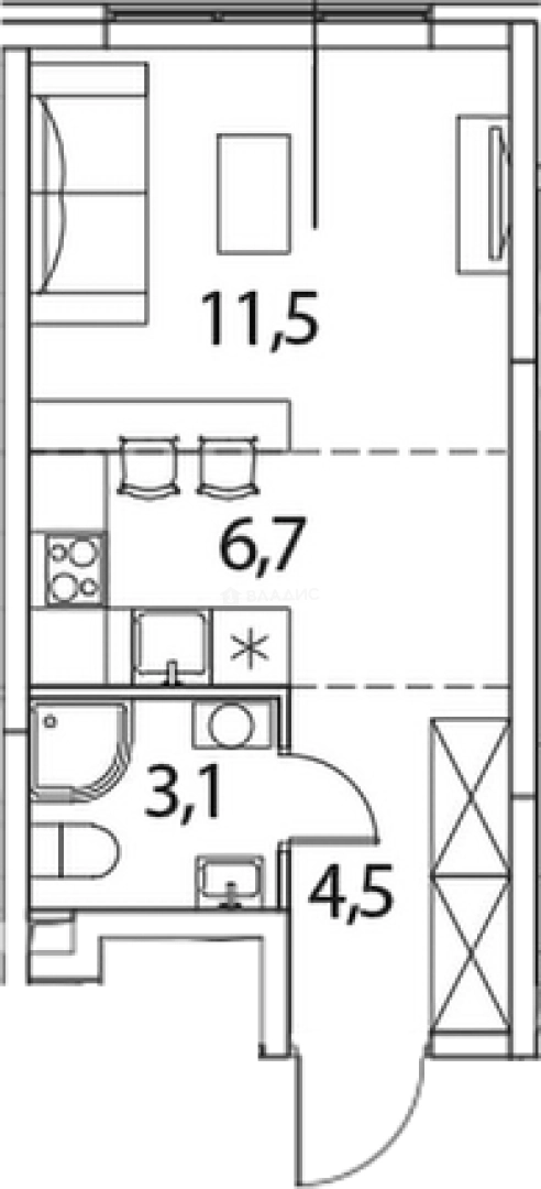
Продается Студия, 25.8 м²
Россия, Московская область, городской округ Солнечногорск, деревня Рузино, микрорайон Кутузовский, жилой комплекс Новый Зеленоград, 2Б
Нахабино
19 мин.
25.8 м²
Общая площадь
18.2 м²
Жилая площадь
14 из 17
Этаж
Описание
В ЖК «Новый Зеленоград» предложено множество планировочных решений: в наличии квартиры как классического типа, так и европланировки. Сдаются они без стен и высотой потолков от 2,8 метров, а из панорамных окон открывается прекрасный вид на лес.
На территории жилого комплекса «Новый Зеленоград» предусмотрены детские сады и школы. Придомовая территория выполнена по концепции «двор без машин». Во дворах выполнен ландшафтный дизайн, установлены детские и спортивные площадки, организованы места для отдыха и воркаут зоны, также продуманы места для выгула собак. На первых этажах корпусов расположены коммерческие помещения. Для владельцев автомобилей предусмотрена стоянка. По всей территории проекта ведется круглосуточное видеонаблюдение.
Жилой комплекс «Новый Зеленоград» расположен в одном из самых экологически чистых и красивых мест на территории Солнечногорского района, в 500 метрах от Зеленограда. Метро «Пятницкое шоссе» расположено в 25 минутах транспортом.
О квартире
Общая площадь
25.8 м²
Жилая площадь
18.2 м²
Площадь комнат
18.2 м²
Высота потолков
2.7199999999999998 м
Подъезд
1
Этаж
14
Окна выходят
На улицу
О доме
Год постройки
2023
Этажность
17
Количество подъездов
2
Материал постройки
Кирпично-монолитный
Материал перекрытий
Ж/б плиты
Отопление
Центральное
Пассажирских лифтов
1
Грузовых лифтов
1
Парковка
Наземная
Расположение
Россия, Московская область, городской округ Солнечногорск, деревня Рузино, микрорайон Кутузовский, жилой комплекс Новый Зеленоград, 2Б
Нахабино
19 мин.
Аникеевка
21 мин.
Опалиха
23 мин.
Пятницкое шоссе
23 мин.
Митино
25 мин.
Красногорская
26 мин.
Волоколамская
28 мин.
Павшино
28 мин.
Ипотечный калькулятор
Заполните 1 анкету — получите предложения от десятков банков на специальных условиях
Программа ипотеки
Стоимость жилья, ₽
Первый взнос, ₽
Срок кредита
от 5.75%
Ставка
от 31 458 ₽
Платеж в месяц
Расчёт носит информационный характер и не является публичной офертой
Похожие объекты










Студия, 23,5 м², 17/17 эт.
Нахабино
19 мин.










Студия, 25,8 м², 16/17 эт.
Нахабино
19 мин.










Студия, 23,5 м², 17/17 эт.
Нахабино
19 мин.










Студия, 25,8 м², 13/17 эт.
Нахабино
19 мин.
Консультант по новостройкам
5 000 326 ₽
193 812 ₽/м²










