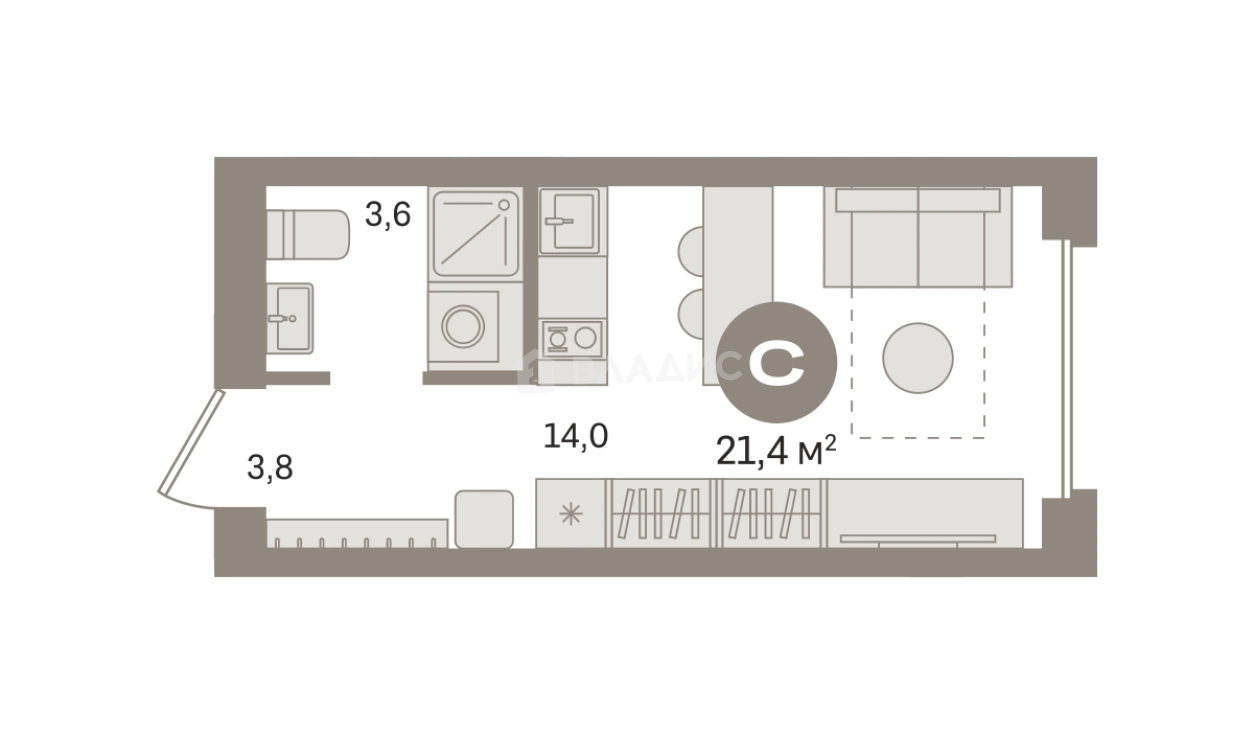
Продается Студия, 21.41 м²
Россия, Московская область, Ленинский городской округ, деревня Сапроново, ЖК Первый Квартал
Домодедовская
14 мин.
21.41 м²
Общая площадь
13.05 м²
Жилая площадь
4.77 м²
Площадь кухни
14 из 15
Этаж
Описание
В проекте предложено множество планировочных решений: в наличии квартиры как классического типа, так и европланировки. Доступны также эксклюзивные лоты: двухуровневые квартиры со вторым светом, квартиры с отдельным входом с улицы, квартиры с террасами на кровле. Во всех вариантах планировок предусмотрены увеличенные окна, теплые лоджии и балконы. Квартиры сдаются с подчистовой отделкой. Высота потолков составляет от 2,7 до 4 метров.
Инфраструктура комплекса включает в себя общеобразовательную школу, рассчитанную на 1675 учащихся, детский сад на 210 мест, торговый центр, а также предприятия услуг и офисные помещения, расположенные на первых этажах зданий. Каждый дом в квартале имеет закрытый благоустроенный двор, где созданы современные детские и спортивные площадки с игровыми модулями. Здесь есть лазалки, скалодром, качели, лабиринты, пружинки, батут и песочница. Для спокойного отдыха предусмотрены беседки-перголы. Также имеется большой спортивный корт для игры в баскетбол с мягким покрытием. Безопасность обеспечивают камеры видеонаблюдения и охрана, а доступ на территорию осуществляется с помощью магнитных ключей. В центре квартала находится парк с сетью небольших прудов, островами и аккуратными тропинками. Для детей здесь предусмотрена игровая площадка с природной тематикой, а для любителей спорта — воркаут. В мобильном павильоне расположены кофейня и коворкинг. По периметру парка работают кафе с летними верандами. Для владельцев автомобилей предусмотрены подземный паркинг и открытые стоянки.
Жилой комплекс находится в Ленинском районе Московской области в 6 микрорайоне города Видное. В районе уже сформированная инфраструктура: торговые центры, продуктовые магазины, аптеки, кафе, поликлиники, детские центры и другие повседневные сервисы в шаговой доступности. Рядом находится конечная остановка общественного транспорта, с которой можно доехать до метро — «Домодедовская», «Аннино», «Царицыно», и железнодорожной станции «Расторгуево» за 20 минут, откуда за 25 минут можно добраться до Павелецкого вокзала в центре Москвы.
О квартире
Общая площадь
21.41 м²
Жилая площадь
13.05 м²
Площадь кухни
4.77 м²
Подъезд
4
Этаж
14
Окна выходят
На улицу
О доме
Год постройки
2027
Этажность
15
Материал постройки
Кирпично-монолитный
Расположение
Россия, Московская область, Ленинский городской округ, деревня Сапроново, ЖК Первый Квартал
Домодедовская
14 мин.
Зябликово
14 мин.
Орехово
14 мин.
Красногвардейская
14 мин.
Аннино
15 мин.
Ипотечный калькулятор
Заполните 1 анкету — получите предложения от десятков банков на специальных условиях
Программа ипотеки
Стоимость жилья, ₽
Первый взнос, ₽
Срок кредита
от 5.75%
Ставка
от 31 456 ₽
Платеж в месяц
Расчёт носит информационный характер и не является публичной офертой
Похожие объекты







Студия, 22,4 м², 6/15 эт.
Домодедовская
14 мин.







Студия, 18,7 м², 3/15 эт.
Домодедовская
14 мин.







Студия, 21,4 м², 11/15 эт.
Домодедовская
14 мин.







Студия, 22,4 м², 11/15 эт.
Домодедовская
14 мин.
Консультант по новостройкам
5 000 000 ₽
233 536 ₽/м²














