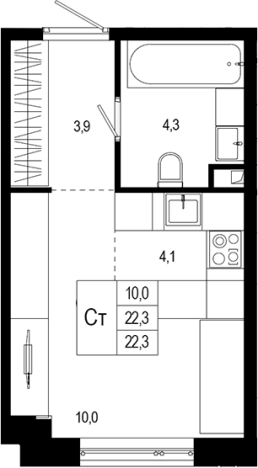
Продается Студия, 21.8 м²
Россия, Московская область, городской округ Подольск, деревня Борисовка, ЖК Новая Щербинка, 20
Бульвар Адмирала Ушакова
12 мин.
21.8 м²
Общая площадь
15.4 м²
Жилая площадь
5 из 8
Этаж
Описание
В комплексе предложено множество планировочных решений: от студий до трехкомнатных квартир. В квартирах предусмотрено панорамное остекление балконов. Они сдаются с подчистовой, чистовой отделкой, а также без отделки и высотой потолков 2,8 м.
В состав комплекса входит 2 детских сада на 140 и 180 мест, а также школа на 500 мест. На первых этажах расположены коммерческие помещения. Двор закрыт от автомобилей и случайных прохожих. Для автовладельцев предусмотрено два наземных паркинга на 300 и 600 мест. Территория благоустроена: велодорожки и прогулочные дорожки, детские игровые площадки и места для отдыха, торгово - офисный центр.
ЖК «Новая Щербинка» расположен в деревне Борисовка на территории городского округа Подольск. Комплекс окружен лесным массивом — с одной стороны протекает Висенковый ручей. Рядом с комплексом, помимо окружающих его леса и водоемов, расположено несколько дворянских усадеб: «Плещеево», «Дубровицы», «Остафьево» и музей-заповедник «Подолье».
О квартире
Общая площадь
21.8 м²
Жилая площадь
15.4 м²
Площадь комнат
15.4 м²
Высота потолков
2.74 м
Подъезд
1
Этаж
5
Окна выходят
На улицу
О доме
Год постройки
2025
Этажность
8
Количество подъездов
5
Материал постройки
Кирпично-монолитный
Материал перекрытий
Монолитные
Отопление
Центральное
Грузовых лифтов
1
Парковка
Наземная
Расположение
Россия, Московская область, городской округ Подольск, деревня Борисовка, ЖК Новая Щербинка, 20
Бульвар Адмирала Ушакова
12 мин.
Улица Горчакова
12 мин.
Улица Скобелевская
12 мин.
Ипотечный калькулятор
Заполните 1 анкету — получите предложения от десятков банков на специальных условиях
Программа ипотеки
Стоимость жилья, ₽
Первый взнос, ₽
Срок кредита
от 5.75%
Ставка
от 35 689 ₽
Платеж в месяц
Расчёт носит информационный характер и не является публичной офертой
Похожие объекты










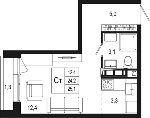
Студия, 24,2 м², 4/8 эт.
Бульвар Адмирала Ушакова
12 мин.










Студия, 24,2 м², 3/8 эт.
Бульвар Адмирала Ушакова
12 мин.










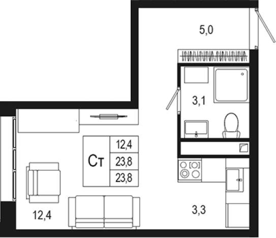
Студия, 23,8 м², 1/8 эт.
Бульвар Адмирала Ушакова
12 мин.









Студия, 21,8 м², 7/8 эт.
Бульвар Адмирала Ушакова
12 мин.
Консультант по новостройкам
5 672 914 ₽
260 226 ₽/м²





















