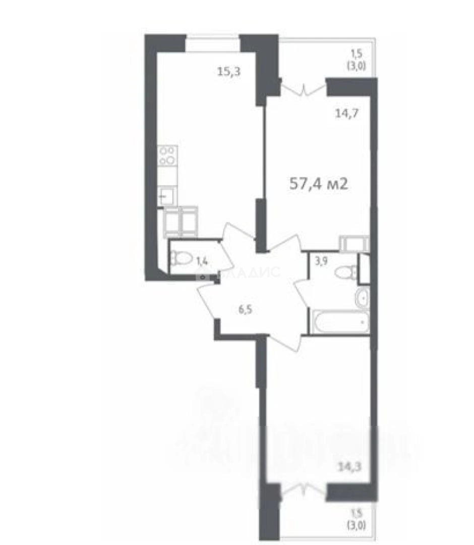
Продается 2-комн. квартира, 57.4 м²
Россия, Московская область, городской округ Красногорск, посёлок городского типа Путилково, Просторная улица, 9
57.4 м²
Общая площадь
29 м²
Жилая площадь
15.3 м²
Площадь кухни
20 из 25
Этаж
Описание
Общая площадь 57, 4 ( кухня 15, 3+ 14, 7+14, 3).;
2 равноценные спальни с большими лоджиями и французскими окнами в пол (лоджии остеклены до пола) выходят окнами во двор;
Хороший продуманный ремонт был сделан для себя. Качественные окна, двери и пол.;
В кухне и в одной из спален есть кондиционеры. В квартире запланировано 2 санузла, в 1 из них сделали кладовую с вешалкой для верхней одежды;
Дом стоит на холме , поэтому ощущение простора присутствует, когда смотришь из окон и когда выходишь на улицу;
Район хорошо спланирован, много свободного места, есть где погулять -рядом есть лесной массив и речка . Там можно рыбачить, делать шашлыки и просто бегать по траве. У реки есть конный комплекс. Радом также есть горнолыжный склон с подъемником на Ландышевой улице.;Разные магазины и кафешки рядом- (Пятерочка, Магнит, Дикси, Вкусвилл).;Во дворе школа ( их несколько в районе) и детский сад ( их тоже 3 шт. ) ;11 минут пешком до Вэйпарка с кинотеатром, магазинами и огромным Термолендом (это реальная ЦЕННОСТЬ - огромный банный комплекс по доступный цене).;
В районе есть несколько фитнесов, разные студии для детей и взрослых - спорт, йога, пилатес, растяжка, танцы и тд.;Транспортная доступность многовариантная - 15 минут на транспорте до метро Митино, Планерной, Сходненской, Ховрино, до МЦД Волоколамская до Красногорска и Химок. ;В начале 2026 г откроют быструю дорогу до м. Пятницкое ш. с велодорожками и пешеходной зоной.; В целом транспорт ходит вполне нормально. Много маршруток и рейсовых автобусов.;
Один взрослый собственник. Дети не прописаны. Быстрый выход на сделку. Без обременения.;
О квартире
Общая площадь
57.4 м²
Жилая площадь
29 м²
Площадь кухни
15.3 м²
Высота потолков
2.8 м
Этаж
20
Расположение квартиры
не угловая
Окна выходят
На улицу
Раздельных санузлов
2
Совмещенных санузлов
1
Ремонт
Евро
О доме
Год постройки
2021
Этажность
25
Количество подъездов
5
Материал постройки
Монолитный
Материал перекрытий
Ж/б плиты
Отопление
Центральное
Пассажирских лифтов
1
Грузовых лифтов
2
Парковка
Наземная
Расположение
Россия, Московская область, городской округ Красногорск, посёлок городского типа Путилково, Просторная улица, 9
Ипотечный калькулятор
Заполните 1 анкету — получите предложения от десятков банков на специальных условиях
Программа ипотеки
Стоимость жилья, ₽
Первый взнос, ₽
Срок кредита
от 5.75%
Ставка
от 87 761 ₽
Платеж в месяц
Расчёт носит информационный характер и не является публичной офертой
Похожие объекты





















1-комн. квартира, 60,7 м², 4/10 эт.
Волоколамская
4 мин.










3-комн. квартира, 64,1 м², 12/16 эт.
Сходненская
23 мин.













2-комн. квартира, 58 м², 6/12 эт.
Пятницкое шоссе
4 мин.






















2-комн. квартира, 51 м², 5/25 эт.
Пятницкое шоссе
20 мин.
Предложите свою цену
13 950 000 ₽
243 031 ₽/м²






















































