Продается 3-комн. квартира, 67.8 м²
Россия, Московская область, Мытищи, жилой комплекс Белый Grad
Медведково
4 мин.
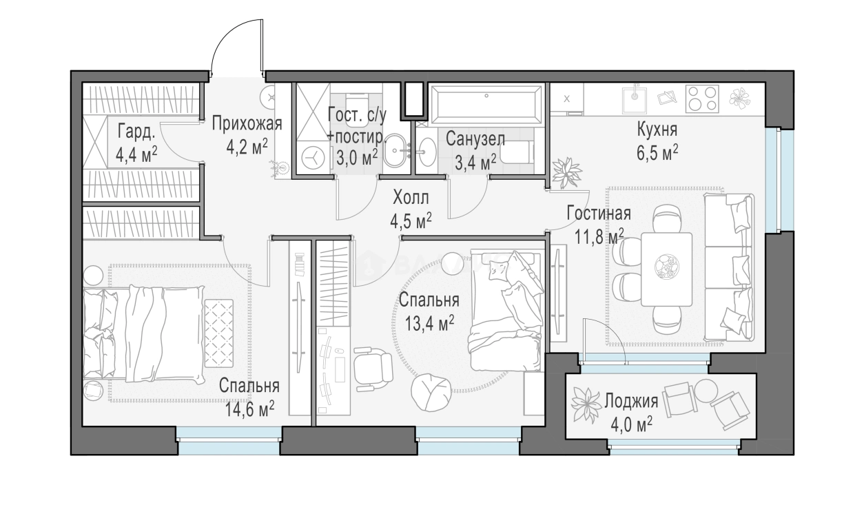
67.8 м²
Общая площадь
39.8 м²
Жилая площадь
6.5 м²
Площадь кухни
18 из 20
Этаж
Описание
В проекте представлено множество планировочных решений — от студий до просторных 4х-комнатных квартир. Все лоты сдаются с базовой отделкой, высотой потолков до 3,16 метров и стандартными окнами. Предусмотрены квартиры с мастер-спальнями и гардеробными.
Территория комплекса благоустроена — имеются детские сады и школы, детские площадки, тихие зоны для отдыха и занятий спортом, велодорожки, собственный большой физкультурно-оздоровительный комплекс с бассейном. Ландшафтный дизайн выполнен международным бюро «Gillespies». Для автовладельцев предусмотрены открытые многоуровневые паркинги.
Жилой комплекс «Белый Grad» расположен по северо-восточному направлению Московской области и имеет удобные подъездные дороги со стороны Ярославского шоссе. В пешей доступности от комплекса есть все необходимое — продовольственные магазины, торговые центры, образовательные учреждения, салоны красоты, фитнес-клубы, музеи, кинотеатры и аквапарк.
О квартире
Общая площадь
67.8 м²
Жилая площадь
39.8 м²
Площадь кухни
6.5 м²
Подъезд
3
Этаж
18
Окна выходят
На улицу
О доме
Год постройки
2026
Этажность
20
Количество подъездов
3
Материал постройки
Кирпично-монолитный
Материал перекрытий
Монолитные
Отопление
Центральное
Парковка
Многоуровневая
Расположение
Россия, Московская область, Мытищи, жилой комплекс Белый Grad
Медведково
4 мин.
Бабушкинская
7 мин.
Бибирево
9 мин.
Свиблово
10 мин.
Ипотечный калькулятор
Заполните 1 анкету — получите предложения от десятков банков на специальных условиях
Программа ипотеки
Стоимость жилья, ₽
Первый взнос, ₽
Срок кредита
от 5.75%
Ставка
от 95 688 ₽
Платеж в месяц
Расчёт носит информационный характер и не является публичной офертой
Похожие объекты







3-комн. квартира, 65,8 м², 16/20 эт.
Медведково
4 мин.







3-комн. квартира, 70,6 м², 12/20 эт.
Медведково
4 мин.







3-комн. квартира, 70,6 м², 16/20 эт.
Медведково
4 мин.







3-комн. квартира, 65,8 м², 13/20 эт.
Медведково
4 мин.
Консультант по новостройкам
15 210 000 ₽
224 337 ₽/м²
















