Продается 2-комн. квартира, 39.8 м²
Россия, Московская область, Мытищи, жилой комплекс Белый Grad, к11.3
Медведково
4 мин.
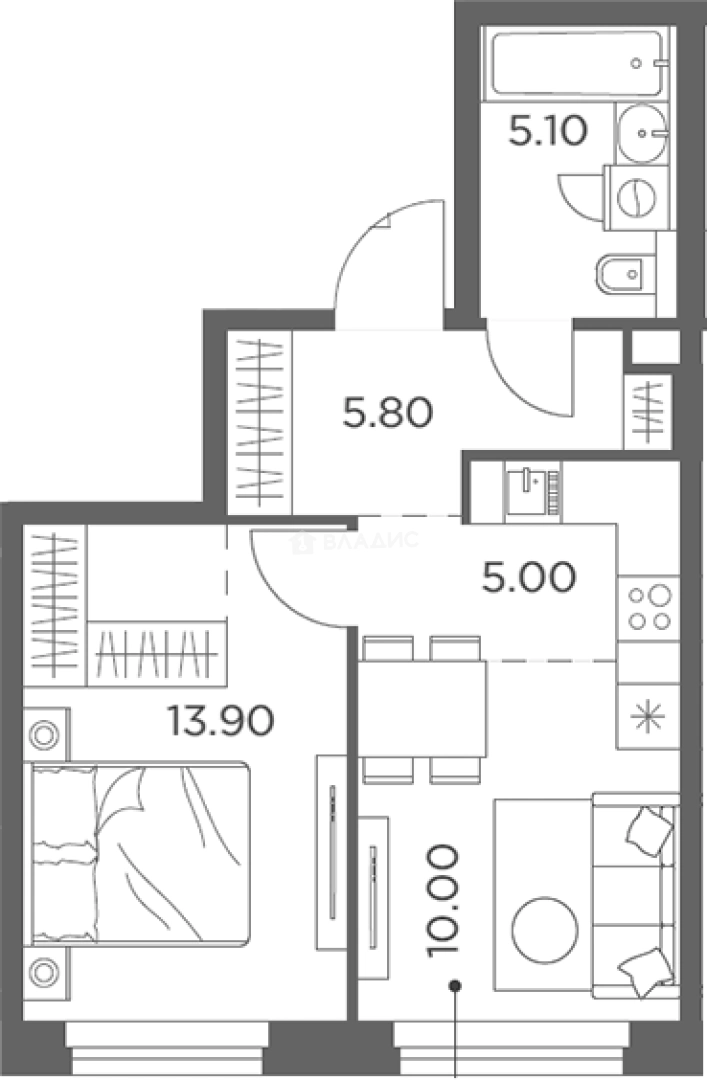
39.8 м²
Общая площадь
13.9 м²
Жилая площадь
15 м²
Площадь кухни
13 из 23
Этаж
Описание
В проекте доступно более 70 видов планировок — от студий до просторных 3-комнатных квартир. Квартиры идут с базовой отделкой, высотой потолков до 3,16 метра и стандартными окнами. Доступны варианты с мастер-спальнями, гардеробными и гостевыми санузлами.
Жилые кварталы спроектированы как современный город в городе — самодостаточный, комфортный, насыщенный инфраструктурой. Здесь есть все необходимое для жизни: 2 школы, 4 детских сада, парковки, ТРЦ, зоны отдыха и прогулочные бульвары, а также 23 гектара благоустроенной территории. Прогулочные зоны с ландшафтным оформлением от бюро Gillespies плавно переходят в собственную набережную с природным рельефом вдоль каскада прудов. В проекте предлагается обширный выбор спортивных и оздоровительных услуг, включая физкультурно-оздоровительный комплекс с бассейном и медицинский центр.
Проект расположен в окружении зеленой поймы по северо-восточному направлению Московской области и граничит с историческим селом Тайнинским, где сохранилась белокаменная церковь Благовещения. В 350 метрах от комплекса начинается маршрут Дорога в Лавру. Территория связана с ВДНХ и парком Яуза единым пешеходно-велосипедным маршрутом. Парк Яуза, протяженностью 20 км, является самым длинным в Европе. Транспортное сообщение обеспечивается удобными выездами на МКАД — через Волковское или Ярославское шоссе.
О квартире
Общая площадь
39.8 м²
Жилая площадь
13.9 м²
Площадь кухни
15 м²
Площадь комнат
13.9 м²
Высота потолков
2.82 м
Этаж
13
Окна выходят
На улицу
О доме
Год постройки
2026
Этажность
23
Количество подъездов
1
Материал постройки
Кирпично-монолитный
Материал перекрытий
Ж/б плиты
Отопление
Центральное
Пассажирских лифтов
1
Грузовых лифтов
1
Парковка
Многоуровневая
Расположение
Россия, Московская область, Мытищи, жилой комплекс Белый Grad, к11.3
Медведково
4 мин.
Бабушкинская
7 мин.
Бибирево
9 мин.
Свиблово
9 мин.
Алтуфьево
10 мин.
Отрадное
11 мин.
Ботанический сад
12 мин.
Ботанический сад
12 мин.
Ипотечный калькулятор
Заполните 1 анкету — получите предложения от десятков банков на специальных условиях
Программа ипотеки
Стоимость жилья, ₽
Первый взнос, ₽
Срок кредита
от 5.75%
Ставка
от 52 860 ₽
Платеж в месяц
Расчёт носит информационный характер и не является публичной офертой
Похожие объекты








2-комн. квартира, 42 м², 18/23 эт.
Медведково
4 мин.








2-комн. квартира, 42 м², 18/23 эт.
Медведково
4 мин.








2-комн. квартира, 39,8 м², 18/23 эт.
Медведково
4 мин.








1-комн. квартира, 38,1 м², 15/23 эт.
Медведково
4 мин.
Консультант по новостройкам
8 402 337 ₽
211 114 ₽/м²









