Продается 3-комн. квартира, 52.4 м²
Россия, Московская область, Мытищи, жилой комплекс Белый Grad, 12.2
Медведково
4 мин.
52.4 м²
Общая площадь
25.5 м²
Жилая площадь
17.2 м²
Площадь кухни
20 из 23
Этаж
Описание
В проекте доступно более 70 видов планировок — от студий до просторных 3-комнатных квартир. Квартиры идут с базовой отделкой, высотой потолков до 3,16 метра и стандартными окнами. Доступны варианты с мастер-спальнями, гардеробными и гостевыми санузлами.
Жилые кварталы спроектированы как современный город в городе — самодостаточный, комфортный, насыщенный инфраструктурой. Здесь есть все необходимое для жизни: 2 школы, 4 детских сада, парковки, ТРЦ, зоны отдыха и прогулочные бульвары, а также 23 гектара благоустроенной территории. Прогулочные зоны с ландшафтным оформлением от бюро Gillespies плавно переходят в собственную набережную с природным рельефом вдоль каскада прудов. В проекте предлагается обширный выбор спортивных и оздоровительных услуг, включая физкультурно-оздоровительный комплекс с бассейном и медицинский центр.
Проект расположен в окружении зеленой поймы по северо-восточному направлению Московской области и граничит с историческим селом Тайнинским, где сохранилась белокаменная церковь Благовещения. В 350 метрах от комплекса начинается маршрут Дорога в Лавру. Территория связана с ВДНХ и парком Яуза единым пешеходно-велосипедным маршрутом. Парк Яуза, протяженностью 20 км, является самым длинным в Европе. Транспортное сообщение обеспечивается удобными выездами на МКАД — через Волковское или Ярославское шоссе.
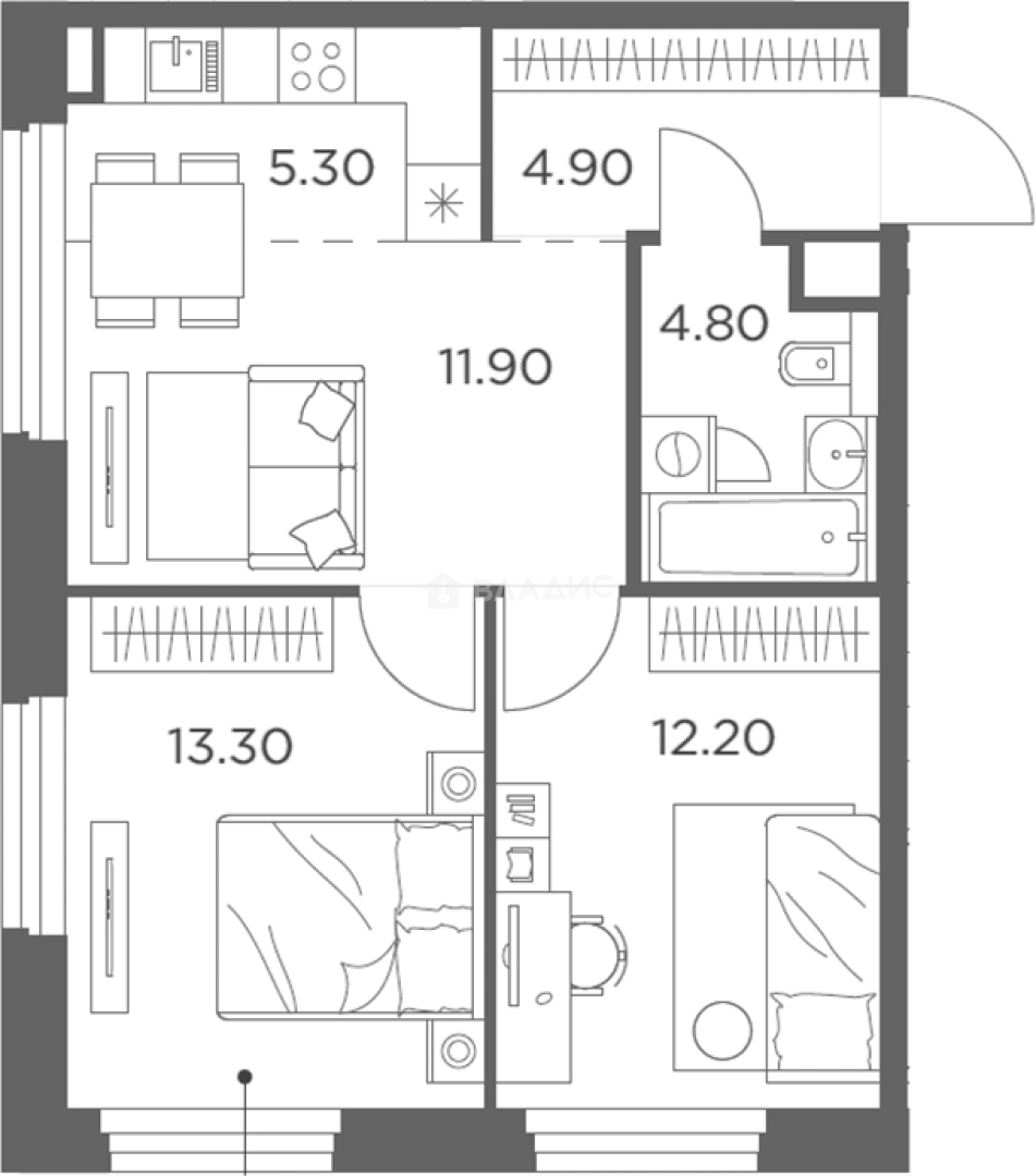
О квартире
Общая площадь
52.4 м²
Жилая площадь
25.5 м²
Площадь кухни
17.2 м²
Площадь комнат
13.3+12.2 м²
Высота потолков
3.1 м
Подъезд
1
Этаж
20
Окна выходят
На улицу
О доме
Год постройки
2026
Этажность
23
Количество подъездов
4
Материал постройки
Кирпично-монолитный
Материал перекрытий
Ж/б плиты
Отопление
Центральное
Пассажирских лифтов
1
Грузовых лифтов
1
Парковка
Многоуровневая
Расположение
Россия, Московская область, Мытищи, жилой комплекс Белый Grad, 12.2
Медведково
4 мин.
Бабушкинская
7 мин.
Бибирево
10 мин.
Свиблово
10 мин.
Алтуфьево
10 мин.
Отрадное
11 мин.
Ботанический сад
12 мин.
Ростокино
12 мин.
Ипотечный калькулятор
Заполните 1 анкету — получите предложения от десятков банков на специальных условиях
Программа ипотеки
Стоимость жилья, ₽
Первый взнос, ₽
Срок кредита
от 5.75%
Ставка
от 78 472 ₽
Платеж в месяц
Расчёт носит информационный характер и не является публичной офертой
Похожие объекты






2-комн. квартира, 54,2 м², 21/23 эт.
Медведково
4 мин.







3-комн. квартира, 57,7 м², 21/23 эт.
Медведково
4 мин.







3-комн. квартира, 57,3 м², 10/20 эт.
Медведково
4 мин.







3-комн. квартира, 59,6 м², 8/23 эт.
Медведково
4 мин.
Консультант по новостройкам
12 473 558 ₽
238 045 ₽/м²














