Продается 2-комн. квартира, 73.8 м²
Россия, Республика Татарстан (Татарстан), Набережные Челны, проспект Чулман, 14
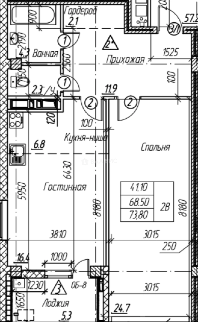
73.8 м²
Общая площадь
41.1 м²
Жилая площадь
6.8 м²
Площадь кухни
6 из 21
Этаж
Описание
медицинские и сервисные центры. Независимый сервис «наш.дом.рф», основываясь на расстоянии до учреждений здравоохранения, образования, спорта, развлечений и торговых центров, оценивает расположение
«Лазурного» в девять баллов из десяти, что является одним из самых высоких показателей в городе.
Особенно удачным надо признать эту локацию для семей с детьми. В 5-7 минутах неспешного хода - десяток детских садов и несколько школ. Да и в самом жилом комплексе будет работать развивающий детский центр.
О квартире
Общая площадь
73.8 м²
Жилая площадь
41.1 м²
Площадь кухни
6.8 м²
Площадь комнат
41,10 м²
Подъезд
1
Этаж
6
Расположение квартиры
угловая
Окна выходят
На улицу
Раздельных санузлов
1
Ремонт
White box
О доме
Год постройки
2026
Этажность
21
Количество подъездов
1
Материал постройки
Кирпично-монолитный
Материал перекрытий
Ж/б плиты
Отопление
Индивидуальный котел
Пассажирских лифтов
1
Грузовых лифтов
1
Парковка
Наземная
Расположение
Россия, Республика Татарстан (Татарстан), Набережные Челны, проспект Чулман, 14
Ипотечный калькулятор
Заполните 1 анкету — получите предложения от десятков банков на специальных условиях
Программа ипотеки
Стоимость жилья, ₽
Первый взнос, ₽
Срок кредита
от 5.75%
Ставка
от 62 072 ₽
Платеж в месяц
Расчёт носит информационный характер и не является публичной офертой
Похожие объекты



























2-комн. квартира, 73,8 м², 9/21 эт.



























2-комн. квартира, 73,8 м², 12/21 эт.



























2-комн. квартира, 73,8 м², 10/21 эт.




3-комн. квартира, 68,2 м², 11/27 эт.
Консультант по новостройкам
9 866 618 ₽
133 695 ₽/м²




























