Купить дом в Нижегородской области
Россия, Нижегородская область, Городецкий муниципальный округ, деревня Дроздово (Зиняковский сельсовет)
100 м²
Площадь дома
10 сот
Площадь участка
Каркас
Материал постройки
2
Этажей
Описание
Вашему вниманию предлагается уникальный объект для тех, кто мечтает о собственном доме в тихом и спокойном месте! Продаётся уютный каркасный дом общей площадью 100 кв. м, расположенный в Нижегородской области на участке в 10 соток. Дом построен в 2025 году и готов к круглогодичному проживанию. Достаточно места для комфортного проживания. Дом оборудован всем необходимым: электричеством, водоснабжением из скважины и канализацией. Участок имеет статус индивидуального жилищного строительства. Дом построен из качественных материалов. Электрическое отопление обеспечивает комфортное тепло в любое время года. Звоните нам прямо сейчас, чтобы узнать больше и записаться на просмотр. Мы гарантируем безопасную сделку и юридическую поддержку нашим Клиентам. Поможем одобрить ипотеку с сниженной ставкой.
О доме
Год постройки
2025
Этажей в доме
2
Общая площадь
100 м²
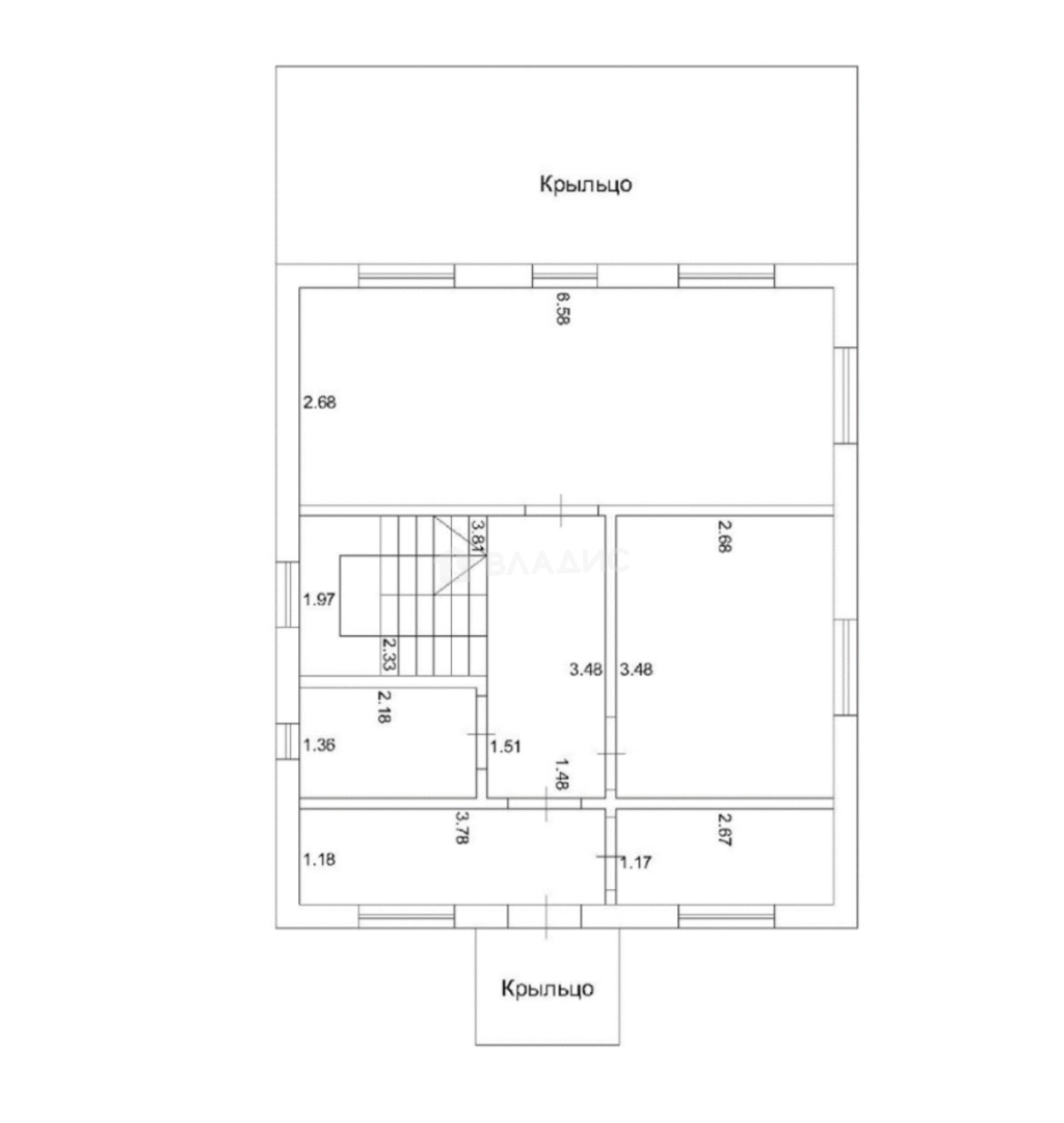
Жилая площадь
47.8 м²
Площадь кухни
17.6 м²
Площадь комнат
17,6+15.1+15,1 м²
Материал постройки
Каркас
Материал перекрытий
Деревянные
Материал кровли
Мягкая черепица
Совмещенных санузлов
1
Об участке
Площадь участка
10 сот.
Статус участка
Индивидуальное жилищное строительство
Электричество
Есть
Водоснабжение
Есть
Канализация
Есть
Без благоустройства участка
Есть
Подъезд к участку
Грунтовка
Расположение
Россия, Нижегородская область, Городецкий муниципальный округ, деревня Дроздово (Зиняковский сельсовет)
Ипотечный калькулятор
Заполните 1 анкету — получите предложения от десятков банков на специальных условиях
Программа ипотеки
Стоимость жилья, ₽
Первый взнос, ₽
Срок кредита
от 5.75%
Ставка
от 56 620 ₽
Платеж в месяц
Расчёт носит информационный характер и не является публичной офертой
Предложите свою цену
9 000 000 ₽
90 000 ₽/м²


























