Купить дом на улице Ясная в Нижегородской области
Россия, Нижегородская область, Богородский муниципальный округ, коттеджный посёлок Каменки, Ясная улица, 6/2
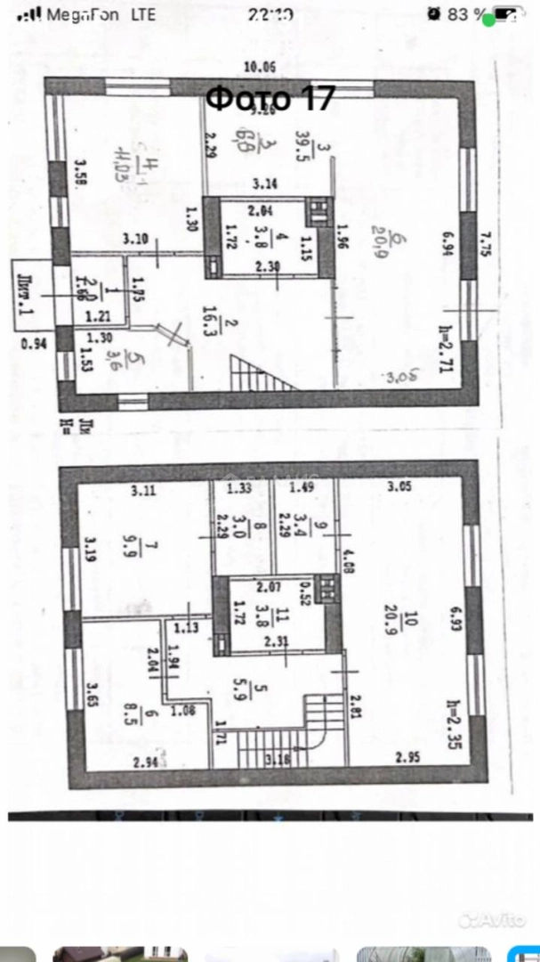
117 м²
Площадь дома
5.8100000000000005 сот
Площадь участка
Блочный
Материал постройки
2
Этажей
Описание
При вьезде - Охрана , магазин Пяторочка и рядом еще Магнит и еще одна Пяторочка и аптека . Так же в 5 минутах строительный двор Хуторок и магазин декоративных расстений и плодовых саженцев .
В поселке - центральная канализация , газ , электричество .
Фундамент дома ростверк со сваями , стены газосиликат ( немецкий YTONG ) 45 на 60 .
Первый этаж - теплый пол и керамгранитнитная плитка , пол второго этажа ламинат , все стены проработаны армирующий сеткой и шпатлевкой WRIT BOX - готовы под оклейку обоями или декаративную штукатурку , санузла два .
В двух спальных комнатах обустроенные гардеробные .
На участке теплица , обустроенные грядки и цветочные клумбы , посажены плодовые деревья. Достаточно места под банный комплекс , веранду и зону барбекю .
Муниципальный Д/С через дорогу , так же в селе Каменки находятся : православная церковь , Отличная общеобразовательная школа - доставка детей на школьном автобусе , еще один Д/С и ДК с различными кружками и спортзалом , филиал музыкальгой школы ( вокал и фортепиано ) .
Звоните - все покажу и расскажу - разумный торг !
О доме
Год постройки
2016
Этажей в доме
2
Общая площадь
117 м²
Жилая площадь
54 м²
Площадь кухни
10 м²
Площадь комнат
18+12+12+12 м²
Материал постройки
Блочный
Материал перекрытий
Деревянные
Материал кровли
Металлочерепица
Раздельных санузлов
1
Об участке
Площадь участка
5.8100000000000005 сот.
Статус участка
Индивидуальное жилищное строительство
Электричество
Есть
Газ
Есть
Водоснабжение
Есть
Канализация
Есть
Охрана
Есть
Подъезд к участку
Асфальт
Расположение
Россия, Нижегородская область, Богородский муниципальный округ, коттеджный посёлок Каменки, Ясная улица, 6/2
Ипотечный калькулятор
Заполните 1 анкету — получите предложения от десятков банков на специальных условиях
Программа ипотеки
Стоимость жилья, ₽
Первый взнос, ₽
Срок кредита
от 5.75%
Ставка
от 62 911 ₽
Платеж в месяц
Расчёт носит информационный характер и не является публичной офертой
Предложите свою цену
10 000 000 ₽
85 470 ₽/м²



























