Купить дом в Нижегородской области
Россия, городской округ Нижний Новгород, СНТ Рассвет, коттеджный посёлок Долина Грин
158.6 м²
Площадь дома
5 сот
Площадь участка
Кирпичный
Материал постройки
2
Этажей
Описание
Продается новый квадрохаус в престижном коттеджном посёлке в Зеленом Городе. Цена — 7,5 млн рублей за весь комплекс! Идеальное сочетание загородного уюта и городской доступности.
Ключевые параметры:
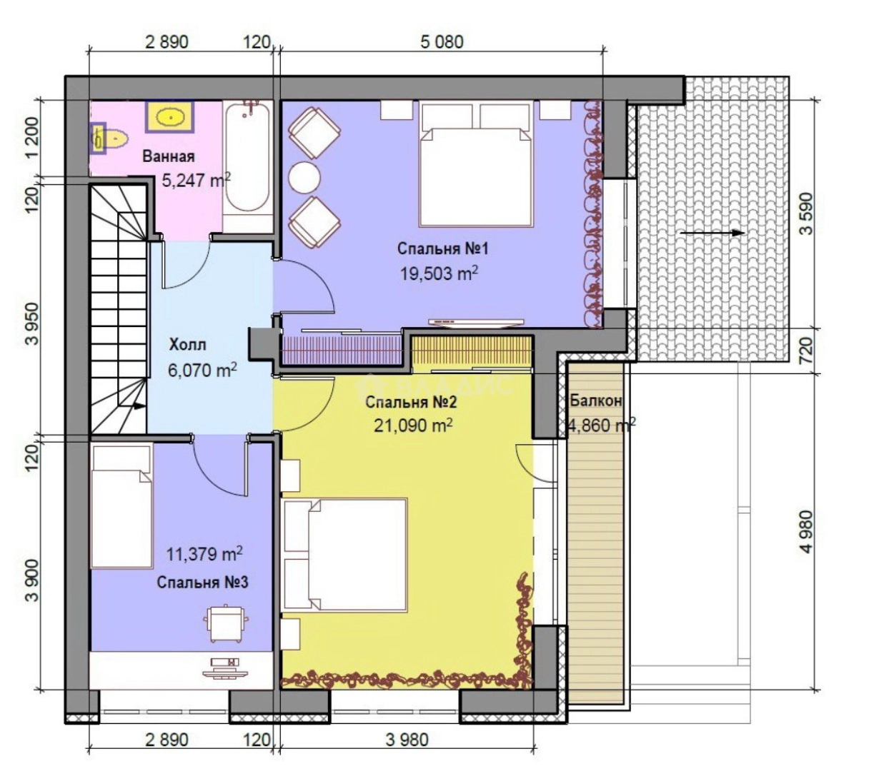
· Площадь дома: 158,6 м²
· Конфигурация: 2 этажа + полноценная мансарда (в подарок!)
· Участок: 4,9 соток с ухоженным газоном.
· Парковка: Личное парковочное место (входит в стоимость).
Расположение и транспортная доступность:
· Всего 30 минут до центра Нижнего Новгорода.
· 15 минут до г. Кстово.
· Самое перспективное и элитное направление с лучшей трассой.
Безопасность и инфраструктура поселка:
· Закрытая охраняемая территория по периметру.
· Видеонаблюдение и круглогодичная уборка.
· Свой въезд, асфальтированные дороги.
· Детская площадка, ухоженный песчаный пляж на реке Кудьма.
· Красивый лес прямо рядом с посёлком.
Качество строительства и материалы:
· Фундамент: монолитный (УШП)
· Стены: силикатный кирпич
· Фасад: облицовочный камень Whitehills, штукатурка Ceresit, натуральное дерево
· Окна: двухкамерные стеклопакеты Rehau и Schuco
· Кровля: мягкая черепица Shinglas
Коммуникации:
ЦЕНТРАЛЬНЫЕ: электричество, газ, водоснабжение, канализация.
Дополнительные преимущества:
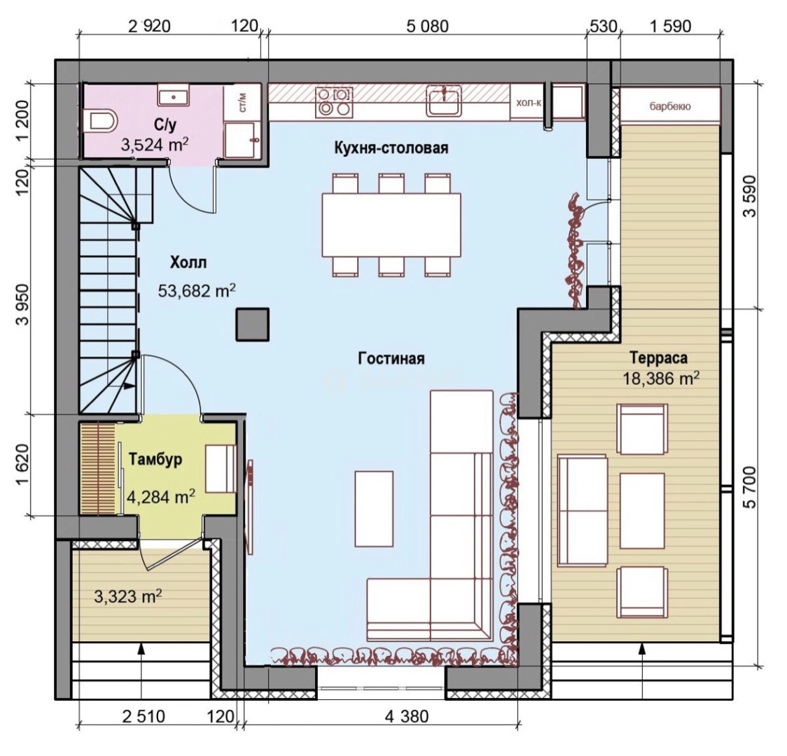
· Терраса с подготовленным дымоходом под барбекю или русскую печь.
· Дом полностью сдан, все документы готовы к сделке.
· Идеальная экология и тишина в 15 минутах от города.
Инфраструктура рядом:
· Школы и детские сады — 15 минут езды.
· Торговые центры «Мега», «Атолл», «Пирамида» в шаговой доступности.
Не упустите шанс купить дом вашей мечты. На выбор несколько домов, успей забрать дом с лучшим видом! Звоните для просмотра!
Мы проведем безопасную сделку и окажем юридическую поддержку нашим клиентам. Поможем одобрить ипотеку с сниженной ставкой.
О доме
Год постройки
2022
Этажей в доме
2
Общая площадь
158.6 м²
Жилая площадь
100 м²
Площадь кухни
20 м²
Материал постройки
Кирпичный
Материал перекрытий
Монолитные
Материал кровли
Мягкая черепица
Высота потолков
3.1 м
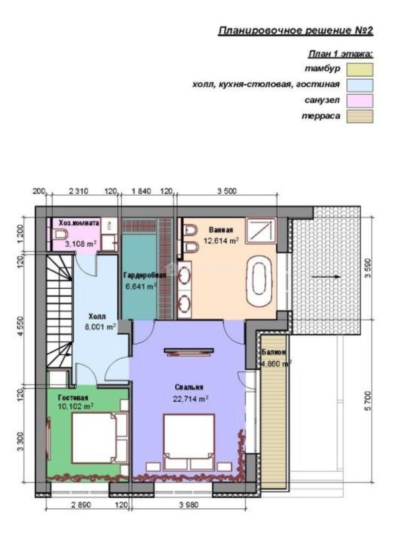
Раздельных санузлов
2
Об участке
Площадь участка
5 сот.
Статус участка
Садоводство
Электричество
Есть
Газ
Есть
Водоснабжение
Есть
Канализация
Есть
Охрана
Есть
Подъезд к участку
Асфальт
Расположение
Россия, городской округ Нижний Новгород, СНТ Рассвет, коттеджный посёлок Долина Грин
Ипотечный калькулятор
Заполните 1 анкету — получите предложения от десятков банков на специальных условиях
Программа ипотеки
Стоимость жилья, ₽
Первый взнос, ₽
Срок кредита
от 5.75%
Ставка
от 47 183 ₽
Платеж в месяц
Расчёт носит информационный характер и не является публичной офертой
Предложите свою цену
7 500 000 ₽
47 289 ₽/м²






























































