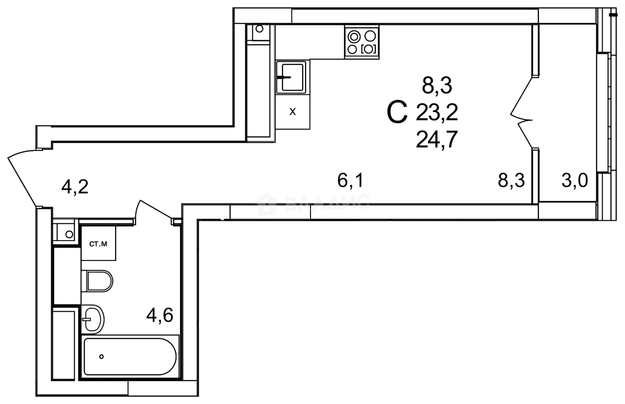
Продается Студия, 24.7 м²
Россия, Нижегородская область, Кстовский муниципальный округ, деревня Анкудиновка, жилой комплекс КМ Анкудиновский Парк, 51
24.7 м²
Общая площадь
15 из 25
Этаж
Описание
В безопасных дворах-парках, свободных от автомобилей, обустроены детские и спортивные площадки, а также места для отдыха. На первых этажах некоторых домов размещаются магазины и различные сервисы.
Уже открыт один детский сад на 150 воспитанников, функционирует школа на 675 учащихся, введен в эксплуатацию второй детский сад, рассчитанный на 280 малышей.
КМ Анкудиновский парк — это особый формат качественного и доступного жилья для семейного проживания, где все продумано до мелочей, начиная с архитектурной концепции и заканчивая развитой инфраструктурой.
Квартиры с отделкой "под ключ".
Заселение до 31 декабря 2026 года.
О квартире
Общая площадь
24.7 м²
Подъезд
1
Этаж
15
Окна выходят
На улицу
О доме
Год постройки
2026
Этажность
25
Количество подъездов
1
Материал постройки
Панельный
Материал перекрытий
Монолитные
Отопление
Центральное
Пассажирских лифтов
1
Грузовых лифтов
1
Парковка
Наземная
Расположение
Россия, Нижегородская область, Кстовский муниципальный округ, деревня Анкудиновка, жилой комплекс КМ Анкудиновский Парк, 51
Ипотечный калькулятор
Заполните 1 анкету — получите предложения от десятков банков на специальных условиях
Программа ипотеки
Стоимость жилья, ₽
Первый взнос, ₽
Срок кредита
от 5.75%
Ставка
от 31 700 ₽
Платеж в месяц
Расчёт носит информационный характер и не является публичной офертой
Похожие объекты





Студия, 22,9 м², 20/25 эт.





Студия, 22,9 м², 16/25 эт.





Студия, 23 м², 25/25 эт.





Студия, 22,8 м², 24/25 эт.
Консультант по новостройкам
5 038 800 ₽
204 000 ₽/м²






