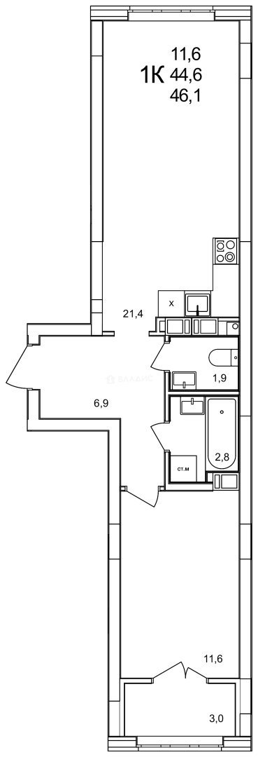
Продается 1-комн. квартира, 46.1 м²
Россия, городской округ Нижний Новгород, деревня Анкудиновка, жилой комплекс КМ Анкудиновский Парк
46.1 м²
Общая площадь
19 из 19
Этаж
Описание
В безопасных дворах-парках, свободных от автомобилей, обустроены детские и спортивные площадки, а также места для отдыха. На первых этажах некоторых домов размещаются магазины и различные сервисы.
Уже открыт один детский сад на 150 воспитанников, функционирует школа на 675 учащихся, введен в эксплуатацию второй детский сад, рассчитанный на 280 малышей.
КМ Анкудиновский парк — это особый формат качественного и доступного жилья для семейного проживания, где все продумано до мелочей, начиная с архитектурной концепции и заканчивая развитой инфраструктурой.
Сдача дома 2 квартал 2026 года.
О квартире
Общая площадь
46.1 м²
Подъезд
2
Этаж
19
Окна выходят
На улицу
О доме
Год постройки
2026
Этажность
19
Количество подъездов
3
Материал постройки
Панельный
Материал перекрытий
Ж/б плиты
Отопление
Центральное
Пассажирских лифтов
1
Грузовых лифтов
1
Парковка
Наземная
Расположение
Россия, городской округ Нижний Новгород, деревня Анкудиновка, жилой комплекс КМ Анкудиновский Парк
Ипотечный калькулятор
Заполните 1 анкету — получите предложения от десятков банков на специальных условиях
Программа ипотеки
Стоимость жилья, ₽
Первый взнос, ₽
Срок кредита
от 5.75%
Ставка
от 49 667 ₽
Платеж в месяц
Расчёт носит информационный характер и не является публичной офертой
Похожие объекты










2-комн. квартира, 46,3 м², 2/15 эт.





2-комн. квартира, 49,8 м², 20/26 эт.





1-комн. квартира, 41,3 м², 12/25 эт.





2-комн. квартира, 49,8 м², 10/26 эт.
Консультант по новостройкам
7 894 800 ₽
171 254 ₽/м²




