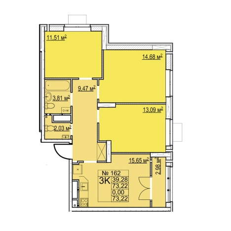
Продается 3-комн. квартира, 73.65 м²
Россия, Нижний Новгород, жилой комплекс Мёд, 7
Ленинская
10 мин.
73.65 м²
Общая площадь
13 из 28
Этаж
Описание
Первая очередь строительства состоит из трёх 27-этажных домов, в каждом по одному подъезду. Обширная территория двора совместит в себе тематическую детскую площадку, спортивную зону и пространство для спокойного отдыха.
Студии, одно-, двух-, трехкомнатные квартиры – выбирайте планировку по душе. Пространства хватит всем домочадцам, включая домашних питомцев и коллекцию растений! Для семей с детьми мы спроектировали просторный двор, разделенный на несколько функциональных зон. Своё место рядом с «Мёдом» займут тематические детская и спортивные площадки, места для прогулок и отдыха. Вам будет, где погулять с ребенком любого возраста! Для мечтателей подойдут квартиры на самых верхних этажах, окна которых окажутся на одной высоте со знаменитыми нижегородскими закатами.
Рядом с жилым комплексом находятся остановки общественного транспорта, продуктовые магазины, школа, детский сад и больница!
О квартире
Общая площадь
73.65 м²
Подъезд
1
Этаж
13
Окна выходят
На улицу
Ремонт
White box
О доме
Год постройки
2026
Этажность
28
Количество подъездов
1
Материал постройки
Кирпично-монолитный
Материал перекрытий
Ж/б плиты
Отопление
Центральное
Пассажирских лифтов
1
Грузовых лифтов
1
Парковка
Наземная
Расположение
Россия, Нижний Новгород, жилой комплекс Мёд, 7
Ленинская
10 мин.
Чкаловская
14 мин.
Заречная
23 мин.
Московская
30 мин.
Двигатель Революции
4 мин.
Ипотечный калькулятор
Заполните 1 анкету — получите предложения от десятков банков на специальных условиях
Программа ипотеки
Стоимость жилья, ₽
Первый взнос, ₽
Срок кредита
от 5.75%
Ставка
от 60 835 ₽
Платеж в месяц
Расчёт носит информационный характер и не является публичной офертой
Похожие объекты




3-комн. квартира, 73,7 м², 12/28 эт.
Ленинская
10 мин.







3-комн. квартира, 73,6 м², 12/27 эт.
Ленинская
10 мин.




3-комн. квартира, 73,3 м², 16/28 эт.
Ленинская
10 мин.







3-комн. квартира, 73,6 м², 11/27 эт.
Ленинская
10 мин.
Консультант по новостройкам
9 670 000 ₽
131 297 ₽/м²





