Продается мн. комн. квартира, 295 м²
Россия, Нижний Новгород, Сенная площадь, 6/49
Горьковская
4 мин.
295 м²
Общая площадь
250 м²
Жилая площадь
30 м²
Площадь кухни
6 из 7
Этаж
Описание
Эта квартира — идеальный выбор для тех, кто ценит комфорт и удобство. Дизайнерский ремонт, высокие потолки (3 метра), продуманная индивидуальная планировка (подтверждённая документально) — всё это создаёт атмосферу уюта и роскоши.
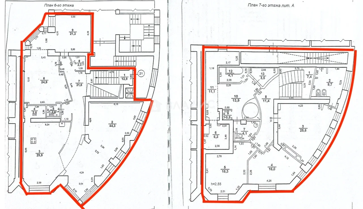
Немецкая техника на кухне, отдельно выделена обеденная зона, гостиная с дизайнерским дровяным камином, три спальни, три санузла, комната отдыха, игровая, кабинет, бильярдная(стол за доплату),в сауне электропечь с парогенератором, для релакса большая круглая ванна-джакузи, также подсобные помещения- гардеробная, кладовая, прачечная, бойлерная.
Расположение квартиры обеспечивает хорошую освещённость и открывает прекрасный вид на Волгу, со второго этажа отдельный выход на персональную крышу с лаунж - зоной, из подъезда можно спуститься в подземный паркинг (можно приобрести за отдельную стоимость).
В квартире уложен дубовый и буковый паркет, в ванных итальянская плитка и сантехника, в кухонной зоне, в коридоре и санузлах полы с подогревом. Первый и второй этажи соединяет авторская лестница. На первом установлена система кондиционирования, на втором в спальнях отдельные кондиционеры. Квартира оборудована сигнализацией.
Квартира многоуровневая. Общая площадь квартиры составляет 295 квадратных метров, из которых 250 квадратных метров — жилая площадь, а 30 квадратных метров занимает кухня.
Расположение квартиры идеально как для семей с детьми, так и для деловых людей. В шаговой доступности находятся все необходимые объекты инфраструктуры: школы, детские сады, магазины, спортивные клубы и многое другое. Транспортная доступность также не вызывает нареканий: рядом с домом расположены остановки общественного транспорта, что позволяет быстро добраться до любой точки города.
Мы гарантируем безопасную сделку и юридическую поддержку нашим клиентам. Поможем одобрить ипотеку с сниженной ставкой. Не упустите свой шанс стать обладателем этой прекрасной квартиры! Позвоните нам прямо сейчас, чтобы узнать больше.
О квартире
Общая площадь
295 м²
Жилая площадь
250 м²
Площадь кухни
30 м²
Высота потолков
3 м
Этаж
6
Расположение квартиры
не угловая
Окна выходят
На улицу
Раздельных санузлов
3
Ремонт
Дизайнерский
Балкон
Есть
О доме
Год постройки
2001
Этажность
7
Количество подъездов
4
Материал постройки
Кирпичный
Материал перекрытий
Ж/б плиты
Отопление
Своя котельная
Парковка
Наземная
Расположение
Россия, Нижний Новгород, Сенная площадь, 6/49
Горьковская
4 мин.
Московская
8 мин.
Чкаловская
9 мин.
Ленинская
10 мин.
Ипотечный калькулятор
Заполните 1 анкету — получите предложения от десятков банков на специальных условиях
Программа ипотеки
Стоимость жилья, ₽
Первый взнос, ₽
Срок кредита
от 5.75%
Ставка
от 375 734 ₽
Платеж в месяц
Расчёт носит информационный характер и не является публичной офертой
Предложите свою цену
59 725 000 ₽
202 458 ₽/м²

























