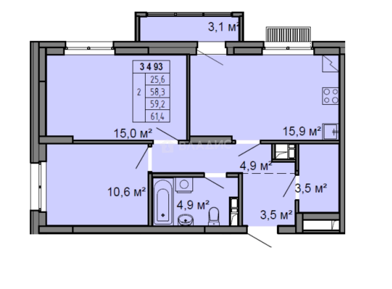
Продается 2-комн. квартира, 58.3 м²
Россия, Нижний Новгород, жилой комплекс Резиденция
Горьковская
7 мин.
58.3 м²
Общая площадь
25.6 м²
Жилая площадь
15.9 м²
Площадь кухни
4 из 13
Этаж
Описание
Закрытый двор с зонами игр для детей разных возрастов и отдыха. Подземный паркинг с доступом из лифта.
Лобби для гостей на первом этаже. Интерьерные картины на этажах.
Система «Умный дом» позволит автоматизировать вашу квартиру и дом.
Здесь всё продумано для роскошной жизни.
Красота и надежность, качество и комфорт Вашего жилья бизнес класса в центре Нижнего Новгорода.
В пешей доступности находятся станция метро. Рядом — школы, детские сады, торгово-развлекательные центры, парки. Большим преимуществом является то, что в шаговой доступности находятся 2 парка: Парк им. «Кулибина» и парк им. «Пушкина».
Квартира будет сдаваться в предчистовой отделке.
Срок ввода дома в эксплуатацию - 2 кв. 2026 года
О квартире
Общая площадь
58.3 м²
Жилая площадь
25.6 м²
Площадь кухни
15.9 м²
Площадь комнат
15+10,6 м²
Высота потолков
2.7 м
Подъезд
2
Этаж
4
Расположение квартиры
угловая
Окна выходят
На улицу, Во двор
Совмещенных санузлов
1
О доме
Год постройки
2026
Этажность
13
Количество подъездов
4
Материал постройки
Кирпично-монолитный
Материал перекрытий
Монолитные
Отопление
Центральное
Пассажирских лифтов
1
Грузовых лифтов
1
Парковка
Подземная
Огороженная территория
Да
Расположение
Россия, Нижний Новгород, жилой комплекс Резиденция
Горьковская
7 мин.
Ипотечный калькулятор
Заполните 1 анкету — получите предложения от десятков банков на специальных условиях
Программа ипотеки
Стоимость жилья, ₽
Первый взнос, ₽
Срок кредита
от 5.75%
Ставка
от 107 892 ₽
Платеж в месяц
Расчёт носит информационный характер и не является публичной офертой
Похожие объекты






2-комн. квартира, 58,7 м², 5/5 эт.
Горьковская
15 мин.






2-комн. квартира, 67 м², 2/10 эт.
Горьковская
6 мин.






2-комн. квартира, 54 м², 5/10 эт.
Горьковская
6 мин.






1-комн. квартира, 59 м², 9/10 эт.
Горьковская
6 мин.
17 150 000 ₽
294 168 ₽/м²




