Продается 3-комн. квартира, 115.2 м²
Россия, Нижний Новгород, Ошарская улица, 16
Горьковская
14 мин.
115.2 м²
Общая площадь
56.98 м²
Жилая площадь
18 м²
Площадь кухни
6 из 7
Этаж
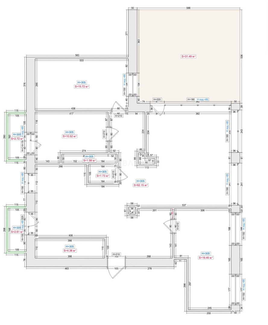
Описание
Квартира в малоквартирном доме, на этаже всего одна квартира!
Кирпичные стены и отсутствие соседей позволит Вам наслаждаться домашним уютом.
У квартиры уникальная, очень удобная планировка, которая включает в себя: кухню-гостиную с выходом на балкон, большой, очень светлый зал с выходом на террасу!, спальню, детскую комнату, большой санузел с выходом на балкон, гостевой санузел и кладовую.
В каждой комнате установлен кондиционер, также есть система очистки и рекуперации воздуха.
Подключена система "Умный дом". На батареях установлены автоматические терморегуляторы с функцией поддержания заданной температуры.
Своя терраса позволит Вам наслаждаться ужином на свежем воздухе не выезжая на природу.
Есть место в охраняемом подземном паркинге.
Двор закрыт от посторонних.
В доме ТСЖ.
Рядом с домом есть всё необходимое для комфортной жизни: детские сады, школы (Лицей № 40 в непосредственной близости), магазины, аптеки и спортивные клубы.
Близость к основным транспортным магистралям обеспечивает лёгкий доступ ко всем ключевым точкам Нижнего Новгорода.
Позвоните нам прямо сейчас, чтобы узнать больше и записаться на просмотр!
Мы гарантируем безопасную сделку и юридическую поддержку нашим Клиентам.
О квартире
Общая площадь
115.2 м²
Жилая площадь
56.98 м²
Площадь кухни
18 м²
Площадь комнат
30+16,46+10,52 м²
Высота потолков
3 м
Подъезд
2
Этаж
6
Расположение квартиры
не угловая
Окна выходят
На улицу, Во двор
Раздельных санузлов
1
О доме
Год постройки
2004
Этажность
7
Количество подъездов
3
Материал постройки
Кирпичный
Материал перекрытий
Ж/б плиты
Отопление
Центральное
Пассажирских лифтов
1
Парковка
Подземная
Огороженная территория
Да
Расположение
Россия, Нижний Новгород, Ошарская улица, 16
Горьковская
14 мин.
Московская
6 мин.
Чкаловская
7 мин.
Ленинская
8 мин.
Ипотечный калькулятор
Заполните 1 анкету — получите предложения от десятков банков на специальных условиях
Программа ипотеки
Стоимость жилья, ₽
Первый взнос, ₽
Срок кредита
от 5.75%
Ставка
от 220 188 ₽
Платеж в месяц
Расчёт носит информационный характер и не является публичной офертой
Предложите свою цену
35 000 000 ₽
303 819 ₽/м²





















