Сдается Недвижимость Свободного Назначения, 160 м²
Россия, Нижний Новгород, Обозный переулок, 2
Горьковская
7 мин.
160 м²
Общая площадь
Отдельный
Вход в помещение
Свободный
Доступ в помещение
-1 из 6
Этаж
Описание
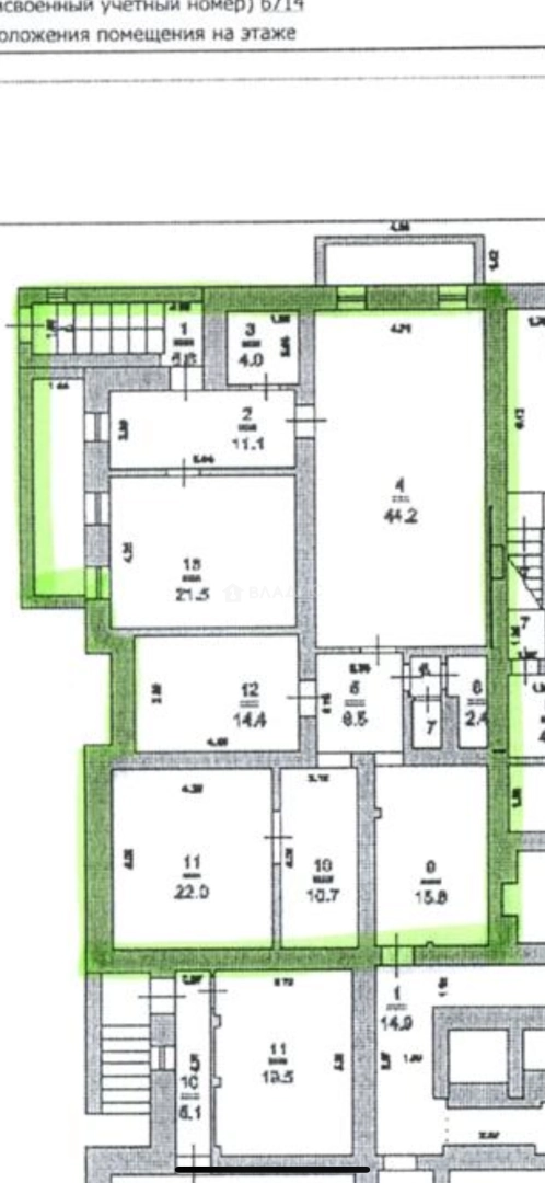
Отдельный вход и один запасной, цокольный этаж. Удобная планировка.
Коммуникации: отопление (центр), электричество (15кВт), вода (центр), канализация (центр), вентиляция.
До метро 10 минут пешком. Улица Ильинская будет туристической зоной, ремонт до конца года закончат, соответственно высокий трафик обеспечен.
Подходит под любой вид деятельности, перепланировка и ремонт возможны.
Об объекте
Общая площадь
160 м²
Этаж
-1
Высота потолков
2.6 м
Электрическая мощность
15 кВт
Совмещенных санузлов
1
Ремонт
Косметический
Вход в помещение
Отдельный
Доступ в помещение
Свободный
Удобства
Интернет
Кондиционер
Вентиляция
Пожарная сигнализация
Условия аренды
Коммунальные платежи
8 000 ₽, отдельно
Минимальный срок аренды
11 мес.
Счётчики
Отдельно
О здании
Тип коммерции
Многоквартирный дом
Год постройки
2007
Материал постройки
Кирпичный
Отопление
Центральное
Этажей в доме
6
Пассажирских лифтов
1
Парковка
Наземная
Расположение
Россия, Нижний Новгород, Обозный переулок, 2
Горьковская
7 мин.
Московская
4 мин.
Чкаловская
4 мин.
Ленинская
5 мин.
7 500 ₽/м² в год
Комиссия
Без комиссии
Залог
130 000 ₽
Налог
НДС не облагается
100 000 ₽/мес.












