Купить дом на улице имени Панны Козловой в районе Приморский в Новороссийске
Россия, Краснодарский край, Новороссийск, СНТ Золотая рыбка, улица имени Панны Козловой, 27
420 м²
Площадь дома
6 сот
Площадь участка
Блочный
Материал постройки
2
Этажей
Описание
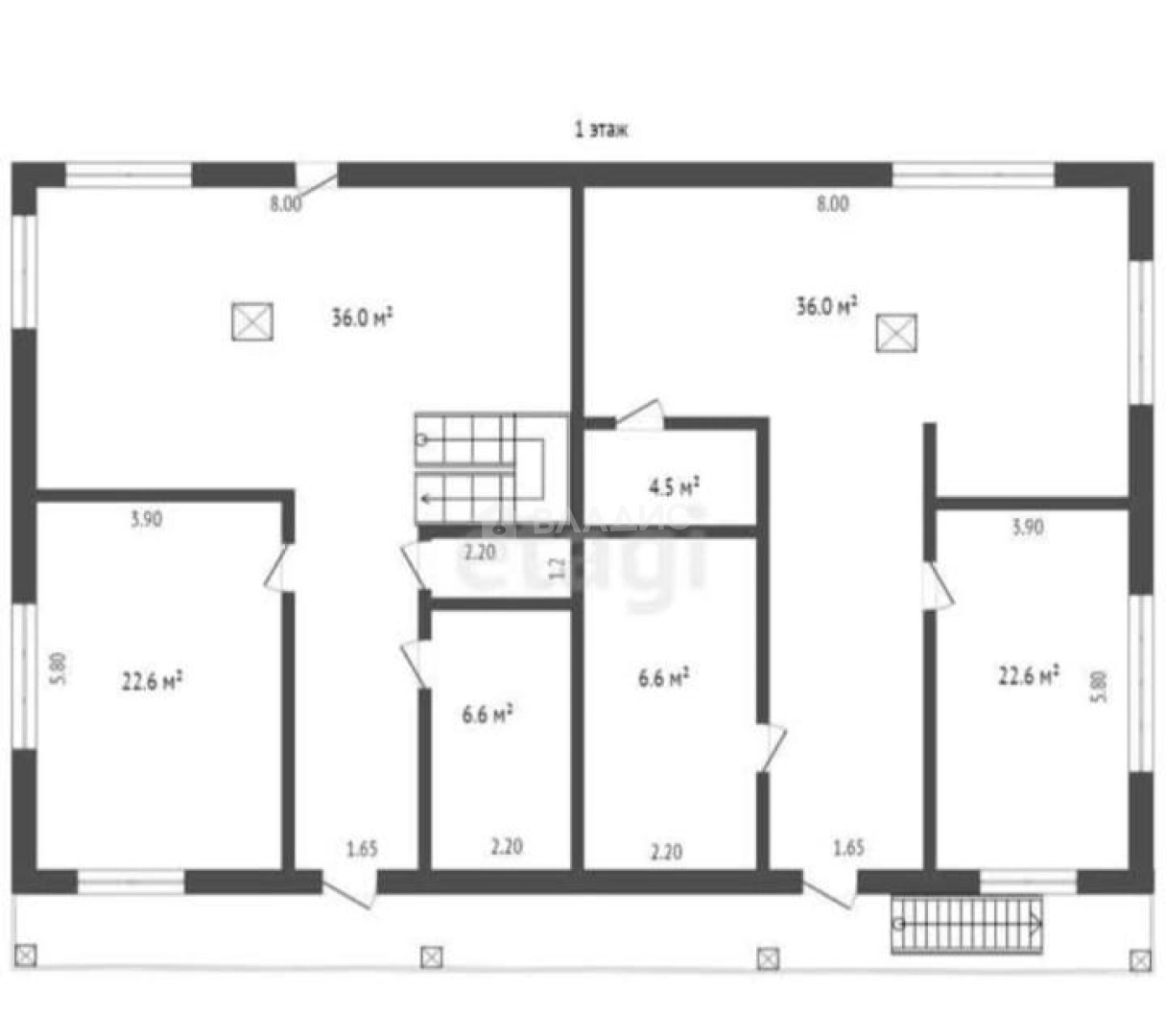
Дом идеально подходит для круглогодичного проживания. В доме 9 комнат, просторная жилая площадь составляет 380 кв. м. Есть три санузла (один раздельный и два совмещённых). Участок площадью 6 соток обеспечен водоснабжением из скважины и электричеством, подъезд к участку засыпан щебенкой. В доме большое подвальное помещение.
Это прекрасное место для большой семьи или тех, кто планирует организовать комфортное пространство для отдыха и работы. Дом расположен всего в 10 километрах от города, что обеспечивает удобный доступ ко всем необходимым инфраструктурным объектам, сохраняя при этом тишину и спокойствие загородной жизни.
Звоните нам прямо сейчас, чтобы узнать больше и договориться о просмотре! Мы гарантируем безопасную сделку и юридическую поддержку нашим Клиентам. Поможем одобрить ипотеку с сниженной ставкой.
О доме
Год постройки
2023
Этажей в доме
2
Общая площадь
420 м²
Жилая площадь
380 м²
Площадь кухни
30 м²
Материал постройки
Блочный
Материал перекрытий
Смешанные
Материал кровли
Отсутствует
Раздельных санузлов
1
Совмещенных санузлов
2
Об участке
Площадь участка
6 сот.
Статус участка
Индивидуальное жилищное строительство
Электричество
Есть
Водоснабжение
Есть
Без благоустройства участка
Есть
Подъезд к участку
Щебенка
Расположение
Россия, Краснодарский край, Новороссийск, СНТ Золотая рыбка, улица имени Панны Козловой, 27
Ипотечный калькулятор
Заполните 1 анкету — получите предложения от десятков банков на специальных условиях
Программа ипотеки
Стоимость жилья, ₽
Первый взнос, ₽
Срок кредита
от 5.75%
Ставка
от 33 343 ₽
Платеж в месяц
Расчёт носит информационный характер и не является публичной офертой
Предложите свою цену
5 300 000 ₽
12 619 ₽/м²



























