Продается 1-комн. квартира, 50.2 м²
Россия, Краснодарский край, Новороссийск, Кутузовская улица, 117
50.2 м²
Общая площадь
30 м²
Жилая площадь
10 м²
Площадь кухни
3 из 10
Этаж
Описание
⋆ Адрес - Новороссийск, ул. Кутузовская 117
⋆ Этаж - 3/10
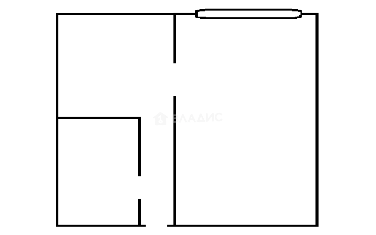
● Общая площадь - 50.2 м²
● Жилая площадь - 30 м²
● Кухня - 10 м²
● Сан.узел – совместный
▸ Коммуникации - центральные
➡ Описание:
Продается евро двухкомнатная квартира с ремонтом заезжай живи. В квартире всё остаётся. Встроенная кухня, мебель для хранения, стол и кровать. По всей квартире уложен влагостойкий ламинат, в санузле плитка. Дом 2020 года постройки, монолит, проблем с коммуникациями не имеет, вода всегда есть. Благодаря расположению дома добраться до Южного, Восточного или Приморского района можно одинаково быстро и без пробок. Квартиру при желании можно переделать в полноценную двухкомнатную, площадь больше чем позволяет. Так же можно обсуждать торг при быстром выходе на сделку.
⇒ Местоположение:
Дом расположен в зеленом районе города на границы Приморского и Центрального района. Развитая инфраструктура, в самом доме расположены магазины "Пятёрочка", К&Б, Аптека, в шаговой доступности остановка, детский сад №17, школа №21. До набережной 7 минут на машине.
Для вас:
✦ Онлайн сделка.
✦ Юридическая проверка документов.
✦ Поможем с одобрением ипотеки на выгодных условиях от ведущих банков.
✦ Сделка - застрахована.
Проводим сделки:
✧ С использованием материнского капитала.
✧ Военного сертификата.
✧ С применением аккредитива и банковской ячейки.
✧ С вами работает персональный менеджер.
☎ ЗВОНИТЕ - показ в удобное для Вас время!
О квартире
Общая площадь
50.2 м²
Жилая площадь
30 м²
Площадь кухни
10 м²
Площадь комнат
30 м²
Высота потолков
2.7 м
Подъезд
5
Этаж
3
Расположение квартиры
не угловая
Окна выходят
Во двор
Совмещенных санузлов
1
О доме
Год постройки
2020
Этажность
10
Количество подъездов
6
Материал постройки
Монолитный
Материал перекрытий
Монолитные
Отопление
Центральное
Пассажирских лифтов
1
Грузовых лифтов
1
Парковка
Наземная
Огороженная территория
Да
Расположение
Россия, Краснодарский край, Новороссийск, Кутузовская улица, 117
Ипотечный калькулятор
Заполните 1 анкету — получите предложения от десятков банков на специальных условиях
Программа ипотеки
Стоимость жилья, ₽
Первый взнос, ₽
Срок кредита
от 5.75%
Ставка
от 50 329 ₽
Платеж в месяц
Расчёт носит информационный характер и не является публичной офертой
Похожие объекты















1-комн. квартира, 43,2 м², 2/18 эт.











3-комн. квартира, 56 м², 1/2 эт.









1-комн. квартира, 49,5 м², 18/22 эт.

















2-комн. квартира, 56,1 м², 7/16 эт.
Предложите свою цену
8 000 000 ₽
159 363 ₽/м²



































































