Продается Торговое Помещение, 91.4 м²
Россия, Новосибирск, улица Авиастроителей, 13
Березовая роща
20 мин.
91.4 м²
Общая площадь
Отдельный
Вход в помещение
Свободный
Доступ в помещение
1 из 5
Этаж
Описание
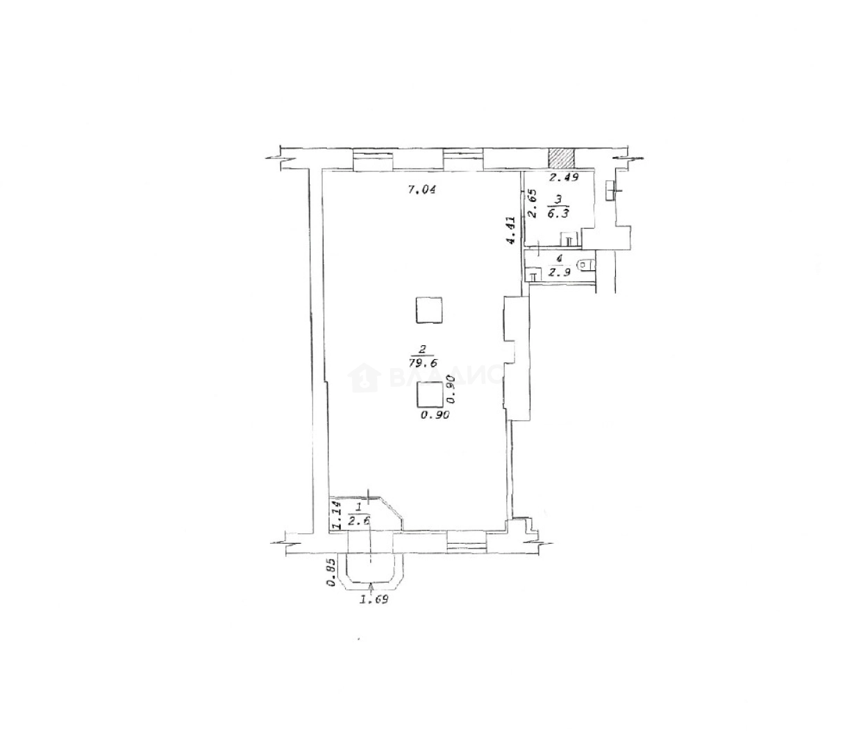
Помещение расположено на первом этаже пятиэтажного полногабаритного дома. Вход отдельный, доступ свободный. В помещении сделан евроремонт, есть пожарная сигнализация, охрана, интернет и кондиционер.
Большая витрина удобна для презентации ваших продуктов.
Высота потолков 4 метра
В здании разместился федеральный продуктовый оператор, пункты ПВЗ. Планировка позволяет легко организовать дополнительный загрузочный вход с улицы. Помещение подойдёт для торговли или оказания услуг.
Мы гарантируем безопасную сделку и юридическую поддержку нашим клиентам.
Возможна рассрочка
покупатель оплачивает комиссию агента 2%
Об объекте
Общая площадь
91.4 м²
Этаж
1
Электрическая мощность
3 кВт
Ремонт
Евро
Вход в помещение
Отдельный
Доступ в помещение
Свободный
Удобства
Интернет
Кондиционер
Охрана
Пожарная сигнализация
О здании
Тип коммерции
Street retail
Год постройки
1960
Материал постройки
Панельный
Отопление
Центральное
Этажей в доме
5
Парковка
Наземная
Расположение
Россия, Новосибирск, улица Авиастроителей, 13
Березовая роща
20 мин.
Золотая нива
6 мин.
Маршала Покрышкина
6 мин.
Заельцовская
6 мин.
Гагаринская
7 мин.
Сибирская
7 мин.
Красный проспект
8 мин.
Площадь Ленина
9 мин.
Ипотечный калькулятор
Заполните 1 анкету — получите предложения от десятков банков на специальных условиях
Программа ипотеки
Стоимость жилья, ₽
Первый взнос, ₽
Срок кредита
от 5.75%
Ставка
от 55 991 ₽
Платеж в месяц
Расчёт носит информационный характер и не является публичной офертой
Предложите свою цену
8 900 000 ₽
97 374 ₽/м²










