Продается Недвижимость Свободного Назначения, 683 м²
Россия, Новосибирск, Геодезическая улица, 4/1
Студенческая
2 мин.
683 м²
Общая площадь
Отдельный
Вход в помещение
Свободный
Доступ в помещение
2 из 4
Этаж
Описание
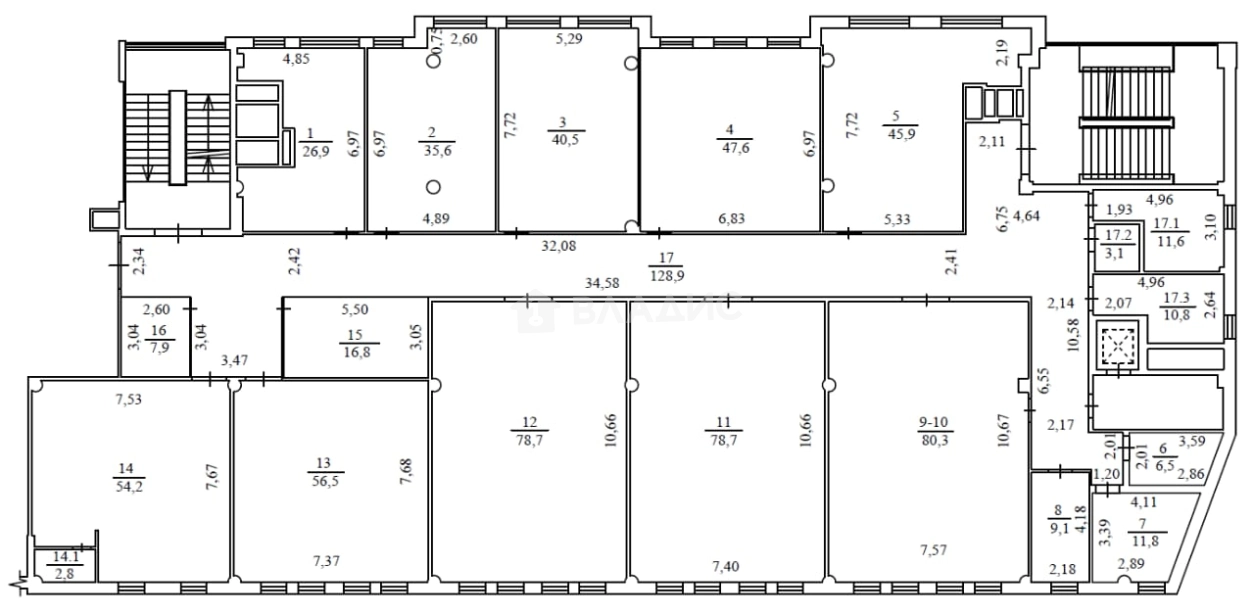
Помещение можно использовать как "готовый арендный бизнес" (все помещения сданы арендаторам), как салон красоты, магазин, офис, отделение банка, коворкинг, торговый зал, медицинский центр, кафе или ресторан. Подходит под все виды услуг.
* Пpедлaгаeмoe помeщение нaходитcя на 2 этaже у выхода с эскалатора, рядом с пассажирскими лифтами. Так же имеются две дополнительные лестницы с выходом на улицу Геодезическая.
* В здании возможен круглосуточный доступ ( в помещения и подземную парковку).
* В торгово-офисном центре, во всех помещениях выполнен дизайнерский ремонт из качественных материалов. * Все помещения снабжены "центральной системой кондиционирования" и водоснабжения.
* Электрическая мощность более ~60 кВт, имеется дополнительная линия ~75 кВт, есть возможность увеличить мощность до 190 кВт, также в здании есть линия на 380 Вольт.
* Здание оборудовано современной системой охраны и видеонаблюдения. Для арендаторов и собственников помещений предусмотрена электронная карточная система доступа на этаж. Имеются 3 выхода из этажа.
* Приборы учёта воды и электроэнергии с электронной передачей показаний. Яркое освещение. Пластиковые окна. Жалюзи вертикальные "Блэк-аут".
* Интернет 2 отдельные линии. Высота потолков 3,3м. Приточно-вытяжная система. Автоматическая система пожаротушения. Пожарно-охранная сигнализация.
О здании:
* Четыре скоростных лифтов обеспечат вам мгновенный доступ к любой точке здания, создавая максимальный комфорт и удобство. 11 современных эскалаторов обеспечат быстрое перемещение между этажами. Круглосуточная охрана. Клининг. Удобная подземная автопарковка.
* В коридорах 6 шкафов пожаротушения с гидрантами и огнетушителями.
* Предусмотрен доступ к грузовому лифту для транспортировки товара с улицы на этаж.
* Подземный паркинг торгового центра рассчитан на 260 автомобилей (возможна почасовая и долгосрочная аренда).
* Ежедневно здесь проезжает 30 тыс. автомобилей, а пассажиропоток на станции «Студенческая» составляет примерно 26 тыс. человек в сутки.
ГОТОВЫ ОБСУДИТЬ ЛЮБЫЕ ВАШИ ПРЕДЛОЖЕНИЯ.
Звоните, договоримся о просмотре в удобное для вас время.
Об объекте
Общая площадь
683 м²
Этаж
2
Высота потолков
3.3 м
Электрическая мощность
135 кВт
Раздельных санузлов
2
Ремонт
Евро
Вход в помещение
Отдельный
Доступ в помещение
Свободный
Удобства
Интернет
Кондиционер
Вентиляция
Мебель
Охрана
Пожарная сигнализация
О здании
Тип коммерции
Торговый центр
Год постройки
2016
Материал постройки
Кирпичный
Отопление
Центральное
Этажей в доме
4
Пассажирских лифтов
2
Грузовых лифтов
2
Парковка
Подземная
Расположение
Россия, Новосибирск, Геодезическая улица, 4/1
Студенческая
2 мин.
Площадь Маркса
12 мин.
Речной вокзал
4 мин.
Октябрьская
6 мин.
Площадь Ленина
7 мин.
Площадь Гарина-Михайловского
8 мин.
Красный проспект
9 мин.
Ипотечный калькулятор
Заполните 1 анкету — получите предложения от десятков банков на специальных условиях
Программа ипотеки
Стоимость жилья, ₽
Первый взнос, ₽
Срок кредита
от 5.75%
Ставка
от 794 908 ₽
Платеж в месяц
Расчёт носит информационный характер и не является публичной офертой
Предложите свою цену
126 355 000 ₽
185 000 ₽/м²




























