Продается Здание, 778 м²
Россия, Новосибирск, Народная улица, 38А
778 м²
Общая площадь
Отдельный
Вход в помещение
Свободный
Доступ в помещение
1 из 3
Этаж
Описание
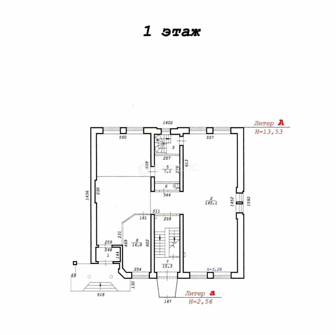
Здание кирпичное 3- этажное с цокольным этажом.
Общая площадь здания 778,3 кв. м.
- Цокольный этаж общей площадью 198,7 кв. м с одной стороны имеет уровень 1 этажа. В цокольном этаже располагается теплый гараж 82,4 кв. м, сауна с бассейном, электрощитовая, узел ввода коммуникаций. Высота этажа 2,75 м.
- 1 этаж общей площадью 194.6 кв. м. Высота этажа 3,3 кв. м. Ранее на первом этаже располагался торговый зал 145 кв. м, кабинет, с/у. Сейчас торговый зал разделен на холл с зоной для ресепшен, несколько кабинетов и с/у.
- 2 этаж общей площадью 194,8 кв. м. высота этажа 3,2 м. Офисная зона. На этаже располагается 7 кабинетов ( в том числе кабинет руководителя) и с/у.
- 3 этаж ( мансардный) общей площадью 190,2 кв. м. Высота помещения 3.1 м. На 3 этаже располагается зона отдыха: банкетный зал с выделенной зоной кухни, три комнаты отдыха, 2 с/у.
Здание строилось для себя. Состояние отличное. Здание огорожено, закрытая территория. Охрана, видеонаблюдение. Есть стоянка на 5 машиномест. На территории высажены деревья, разбиты клумбы, есть прогулочная зона.
Земельный участок 332 кв. м в аренде до 2066 года с правом выкупа.
Коммуникации центральные. Выделенная электрическая мощность 30 кВт.
Об объекте
Общая площадь
778 м²
Этаж
1
Электрическая мощность
25 кВт
Ремонт
Евро
Вход в помещение
Отдельный
Доступ в помещение
Свободный
Удобства
Интернет
Кондиционер
Мебель
Охрана
Пожарная сигнализация
О здании
Тип коммерции
Отдельное здание
Год постройки
2003
Материал постройки
Кирпичный
Отопление
Центральное
Этажей в доме
3
Парковка
Подземная
Расположение
Россия, Новосибирск, Народная улица, 38А
Ипотечный калькулятор
Заполните 1 анкету — получите предложения от десятков банков на специальных условиях
Программа ипотеки
Стоимость жилья, ₽
Первый взнос, ₽
Срок кредита
от 5.75%
Ставка
от 415 211 ₽
Платеж в месяц
Расчёт носит информационный характер и не является публичной офертой
Предложите свою цену
66 000 000 ₽
84 833 ₽/м²












