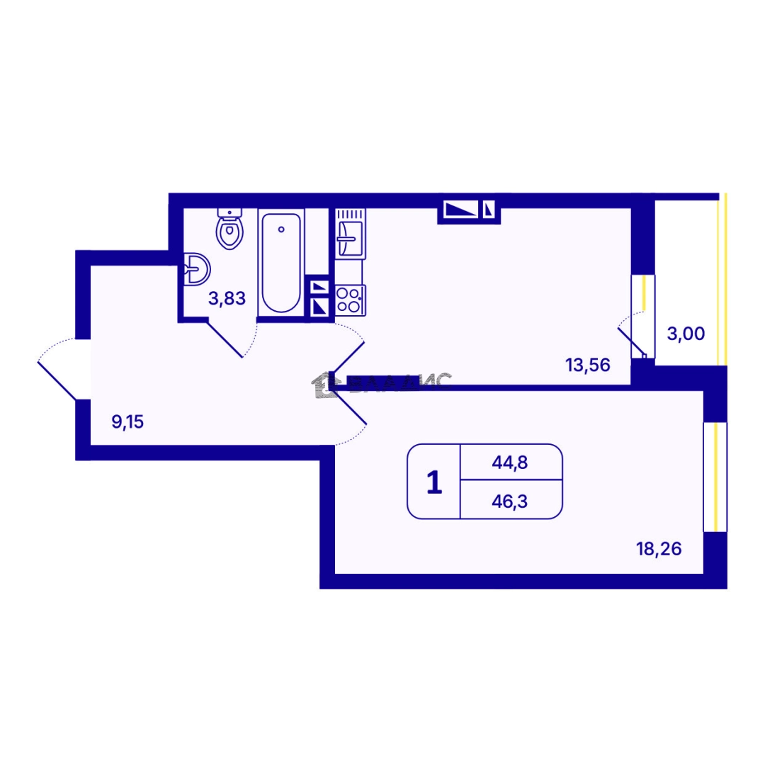
Продается 1-комн. квартира, 46.3 м²
Россия, Новосибирск, жилой комплекс Астон. Шесть Звёзд
46.3 м²
Общая площадь
15 из 26
Этаж
Описание
О квартире
Общая площадь
46.3 м²
Подъезд
1
Этаж
15
Окна выходят
На улицу
О доме
Год постройки
2026
Этажность
26
Количество подъездов
1
Материал постройки
Кирпично-монолитный
Материал перекрытий
Монолитные
Отопление
Центральное
Парковка
Подземная
Расположение
Россия, Новосибирск, жилой комплекс Астон. Шесть Звёзд
Ипотечный калькулятор
Заполните 1 анкету — получите предложения от десятков банков на специальных условиях
Программа ипотеки
Стоимость жилья, ₽
Первый взнос, ₽
Срок кредита
от 5.75%
Ставка
от 44 038 ₽
Платеж в месяц
Расчёт носит информационный характер и не является публичной офертой
Похожие объекты






1-комн. квартира, 46,6 м², 5/26 эт.
Студенческая
5 мин.
Консультант по новостройкам
7 000 000 ₽
151 188 ₽/м²















