Продается 2-комн. квартира, 52.4 м²
Россия, Новосибирск, Советский район, микрорайон Нижняя Ельцовка, Экваторная улица, 11
Студенческая
26 мин.
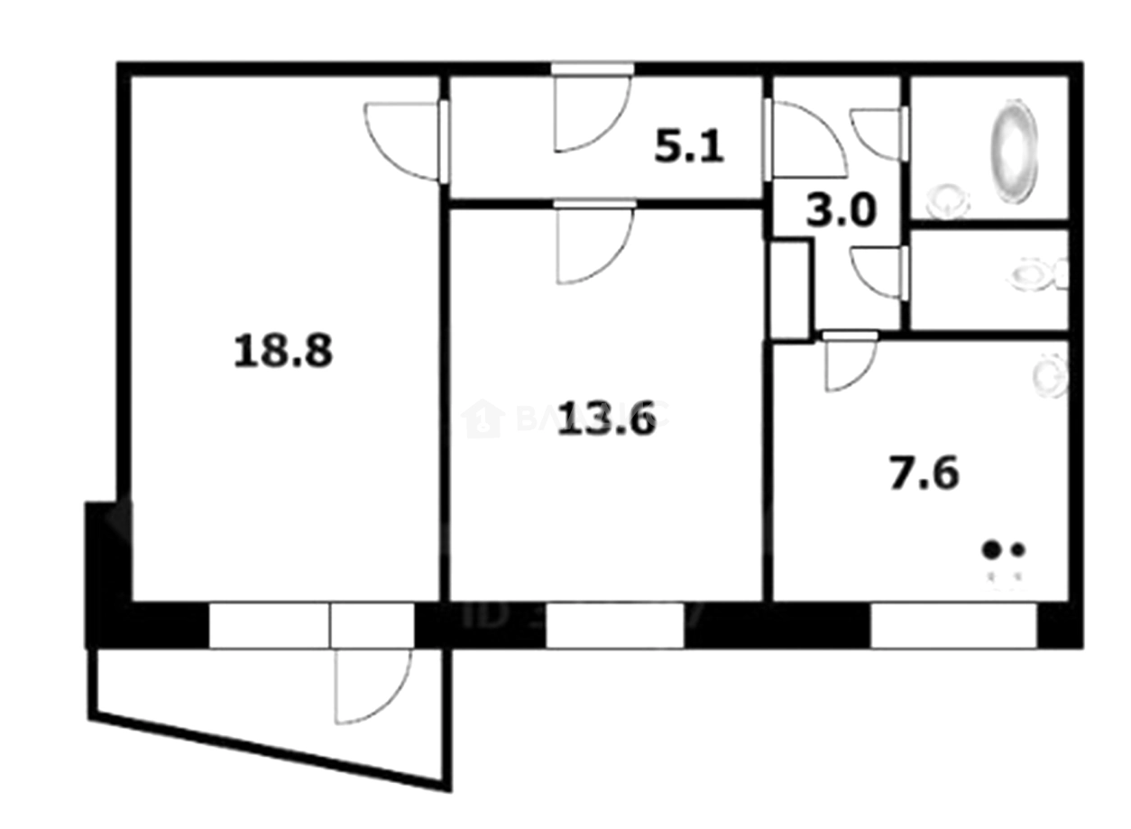
52.4 м²
Общая площадь
32.4 м²
Жилая площадь
7.6 м²
Площадь кухни
5 из 9
Этаж
Описание
- Все комнаты изолированы, раздельный санузел
- Квартира расположена на 5-м этаже 9-ти этажного дома.
- Новый косметический ремонт: в комнатах постелен ламинат, на кухне и в ванной кафель, новые межкомнатные двери (небольшие недоделки в процессе завершения).
- Квартира светлая и чистая, заезжай и живи.
- Развитая инфраструктура: школа, садик, остановка общественного транспорта, продовольственные магазины, пункты выдачи.
- Окна выходят на сосновый бор, красивый вид, чистый воздух.
- Квартира без обременений, готова к продаже, возможна покупка в ипотеку.
О квартире
Общая площадь
52.4 м²
Жилая площадь
32.4 м²
Площадь кухни
7.6 м²
Площадь комнат
18,8+13,6 м²
Высота потолков
2.65 м
Этаж
5
Расположение квартиры
не угловая
Окна выходят
На улицу
Раздельных санузлов
1
Ремонт
Косметический
О доме
Год постройки
1988
Этажность
9
Количество подъездов
2
Материал постройки
Панельный
Материал перекрытий
Ж/б плиты
Отопление
Центральное
Парковка
Наземная
Расположение
Россия, Новосибирск, Советский район, микрорайон Нижняя Ельцовка, Экваторная улица, 11
Студенческая
26 мин.
Речной вокзал
27 мин.
Площадь Маркса
27 мин.
Октябрьская
28 мин.
Золотая нива
29 мин.
Ипотечный калькулятор
Заполните 1 анкету — получите предложения от десятков банков на специальных условиях
Программа ипотеки
Стоимость жилья, ₽
Первый взнос, ₽
Срок кредита
от 5.75%
Ставка
от 31 456 ₽
Платеж в месяц
Расчёт носит информационный характер и не является публичной офертой
Полтавец Юлия
Специалист по недвижимости
Предложите свою цену
5 000 000 ₽
95 420 ₽/м²
























































