Продается 1-комн. квартира, 47 м²
Россия, Новосибирск, Сухарная улица, 96
Заельцовская
25 мин.
47 м²
Общая площадь
19 м²
Жилая площадь
14 м²
Площадь кухни
2 из 18
Этаж
Описание
В окружении соснового бора в близи с рекой Обь.
О квартире:
Квартира полностью укомплектована для новых жильцов.
Окна смотрят в сторону двора и детской площадки. По сторонам света окна смотрят на Восток.
Балкон застеклен.
Новому покупателю остается вся мебель и техника!
Размер коммунальных услуг (исходя из проживания одного человека):
Лето 6 000 рублей
Зима 7 5000 рублей
Установлены счетчики на воду, электроэнергию.
На отопление счетчика нет.
Один взрослый собственник с 2013г. Обременений нет.
Инфраструктура:
Дом расположен в зеленой части города в близи Соснового бора. Территория дома благоустроена детские и спортивные площадки.
В пешей доступности "Заельцовский парк", спортивная база "Локомотив"
Рядом с домом расположены: магазины, остановка общественного транспорта, секции для детей, детский сад, школа, техникум.
Территория дома огорожена.
Позвоните нам прямо сейчас, чтобы узнать больше и записаться на просмотр. Мы гарантируем безопасную сделку и юридическую
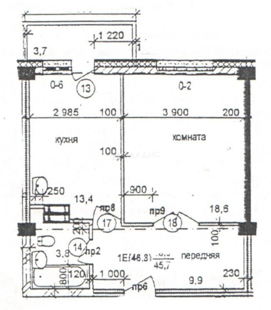
О квартире
Общая площадь
47 м²
Жилая площадь
19 м²
Площадь кухни
14 м²
Высота потолков
2.7 м
Подъезд
1
Этаж
2
Расположение квартиры
не угловая
Окна выходят
На улицу
Совмещенных санузлов
1
Мебель
Да
О доме
Год постройки
2014
Этажность
18
Количество подъездов
3
Материал постройки
Кирпично-монолитный
Материал перекрытий
Ж/б плиты
Отопление
Центральное
Пассажирских лифтов
1
Грузовых лифтов
2
Парковка
Наземная
Расположение
Россия, Новосибирск, Сухарная улица, 96
Площадь Гарина-Михайловского
4 мин.
Гагаринская
5 мин.
Заельцовская
25 мин.
Красный проспект
5 мин.
Сибирская
5 мин.
Площадь Ленина
6 мин.
Маршала Покрышкина
7 мин.
Березовая роща
9 мин.
Ипотечный калькулятор
Заполните 1 анкету — получите предложения от десятков банков на специальных условиях
Программа ипотеки
Стоимость жилья, ₽
Первый взнос, ₽
Срок кредита
от 5.75%
Ставка
от 42 465 ₽
Платеж в месяц
Расчёт носит информационный характер и не является публичной офертой
Похожие объекты








2-комн. квартира, 45 м², 2/5 эт.
Площадь Гарина-Михайловского
6 мин.













2-комн. квартира, 45,4 м², 2/5 эт.
Заельцовская
14 мин.








2-комн. квартира, 41,7 м², 5/5 эт.
Площадь Гарина-Михайловского
4 мин.
























2-комн. квартира, 46 м², 8/23 эт.
Гагаринская
11 мин.
Кузьмина Анжелика
Специалист по недвижимости
Предложите свою цену
6 750 000 ₽
143 617 ₽/м²











































