Продается 4-комн. квартира, 119.5 м²
Россия, Новосибирск, Рыбацкая улица, 23
119.5 м²
Общая площадь
60 м²
Жилая площадь
35 м²
Площадь кухни
3 из 4
Этаж
Описание
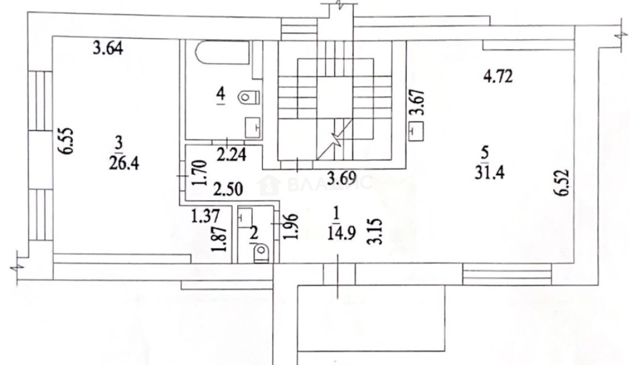
Общая площадь квартиры составляет 119,5 кв. м (без учета 2-ух балконов по 8 м2), жилая — 60 кв. м., кухня-гостинная 35 м2. Два совмещённых санузла, два балкона (балконы остеклены). Окна выходят во двор и на прекрасные закаты. Квартира расположена на третьем этаже четырёхэтажного дома, есть возможность увеличить площадь квартиры на 40 м2 за счет освоения чердачного пространства.
Квартира имеет хорошую отделку с использования качественных отдельных материалов, что позволит новым хозяевам сразу заселиться или без особых усилий подстроить пространство под свои предпочтения.
Кирпичные стены дома гарантируют хорошую шумо- и теплоизоляцию. Центральное отопление обеспечивает комфорт в холодное время года.
Около дома есть личная парковка, что особенно актуально для жителей города.
Не упустите возможность стать обладателем этой просторной и светлой квартиры! Звоните нам прямо сейчас, чтобы узнать больше и записаться на просмотр.
Мы гарантируем безопасную сделку и юридическую поддержку нашим Клиентам.
Поможем одобрить ипотеку с сниженной ставкой.
О квартире
Общая площадь
119.5 м²
Жилая площадь
60 м²
Площадь кухни
35 м²
Высота потолков
4.5 м
Этаж
3
Расположение квартиры
угловая
Окна выходят
На улицу
Совмещенных санузлов
2
Ремонт
Косметический
Балкон
Есть
О доме
Год постройки
2015
Этажность
4
Материал постройки
Кирпичный
Материал перекрытий
Ж/б плиты
Отопление
Центральное
Расположение
Россия, Новосибирск, Рыбацкая улица, 23
Ипотечный калькулятор
Заполните 1 анкету — получите предложения от десятков банков на специальных условиях
Программа ипотеки
Стоимость жилья, ₽
Первый взнос, ₽
Срок кредита
от 5.75%
Ставка
от 88 075 ₽
Платеж в месяц
Расчёт носит информационный характер и не является публичной офертой
Предложите свою цену
14 000 000 ₽
117 155 ₽/м²










































