Продается 3-комн. квартира, 58.9 м²
Россия, Новосибирск, Кировский район, Затулинский жилмассив, улица Зорге, 251
Площадь Маркса
9 мин.
58.9 м²
Общая площадь
37.9 м²
Жилая площадь
8 м²
Площадь кухни
1 из 5
Этаж
Описание
Просторная и уютная общей площадью 58,9 кв. м с изолированными комнатами — идеальный выбор для вашей семьи 🏡.
Окна выходят на улицу и во двор, что обеспечивает достаточное количество естественного света.
Развитая инфраструктура района, наземная парковка и удобное расположение квартиры сделают вашу жизнь комфортной и беззаботной. Не упустите шанс стать обладателем этой замечательной квартиры!
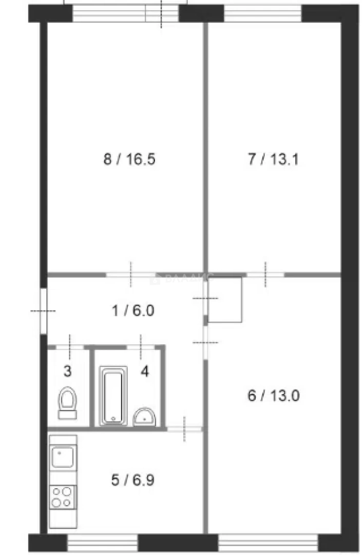
✅Комнаты раздельные.
✅Есть место для гардеробной.
✅Свое парковочное место во дворе.
✅Кладовое помещение.
✅Пластиковые окна.
✅Новый линолеум.
✅Квартира очень теплая.
✅Окна на две стороны.
✅Оставляем кухонный гарнитур.
.
Подходит для покупки с материнским капиталом.
Помощь в получении Ипотечного решения.
Просмотры по договоренности.
О квартире
Общая площадь
58.9 м²
Жилая площадь
37.9 м²
Площадь кухни
8 м²
Площадь комнат
10+15+12,9 м²
Подъезд
1
Этаж
1
Расположение квартиры
не угловая
Окна выходят
На улицу, Во двор
Совмещенных санузлов
1
Ремонт
Косметический
О доме
Год постройки
1971
Этажность
5
Материал постройки
Панельный
Материал перекрытий
Ж/б плиты
Отопление
Центральное
Парковка
Наземная
Расположение
Россия, Новосибирск, Кировский район, Затулинский жилмассив, улица Зорге, 251
Площадь Маркса
9 мин.
Студенческая
10 мин.
Речной вокзал
13 мин.
Октябрьская
15 мин.
Площадь Ленина
17 мин.
Площадь Гарина-Михайловского
18 мин.
Красный проспект
19 мин.
Ипотечный калькулятор
Заполните 1 анкету — получите предложения от десятков банков на специальных условиях
Программа ипотеки
Стоимость жилья, ₽
Первый взнос, ₽
Срок кредита
от 5.75%
Ставка
от 27 618 ₽
Платеж в месяц
Расчёт носит информационный характер и не является публичной офертой
Похожие объекты











3-комн. квартира, 61,1 м², 1/5 эт.
Площадь Маркса
9 мин.







3-комн. квартира, 62 м², 4/5 эт.
Площадь Маркса
8 мин.

















3-комн. квартира, 58 м², 1/5 эт.
Площадь Маркса
9 мин.
Сизых Ольга
Агент по недвижимости
Предложите свою цену
4 390 000 ₽
74 533 ₽/м²









































