Продается 4-комн. квартира, 230 м²
Россия, Новосибирск, улица Бестужева, 73
Заельцовская
4 мин.
230 м²
Общая площадь
101 м²
Жилая площадь
42 м²
Площадь кухни
2 из 2
Этаж
Описание
Материал стен – пенобетон с отделочным кирпичом, перекрытия цоколя и 1 этажа – ж/б плиты, 2 этажа – дерево; кровля скатная, чердак холодный, неэксплуатируемый. Газовое отопление с 2-контурным автоматическим котлом, водопровод центральный, канализация местная, охранная сигнализация, видеонаблюдение по всему периметру. Дом очень тёплый. Отделка свежая.
В цокольном этаже – тёплый гараж с автоматическими воротами на 2 машины + большая складская зона - мастерская с металлическими стеллажами. Есть обособленное помещение для размещения овощехранилища или оружейной комнаты.
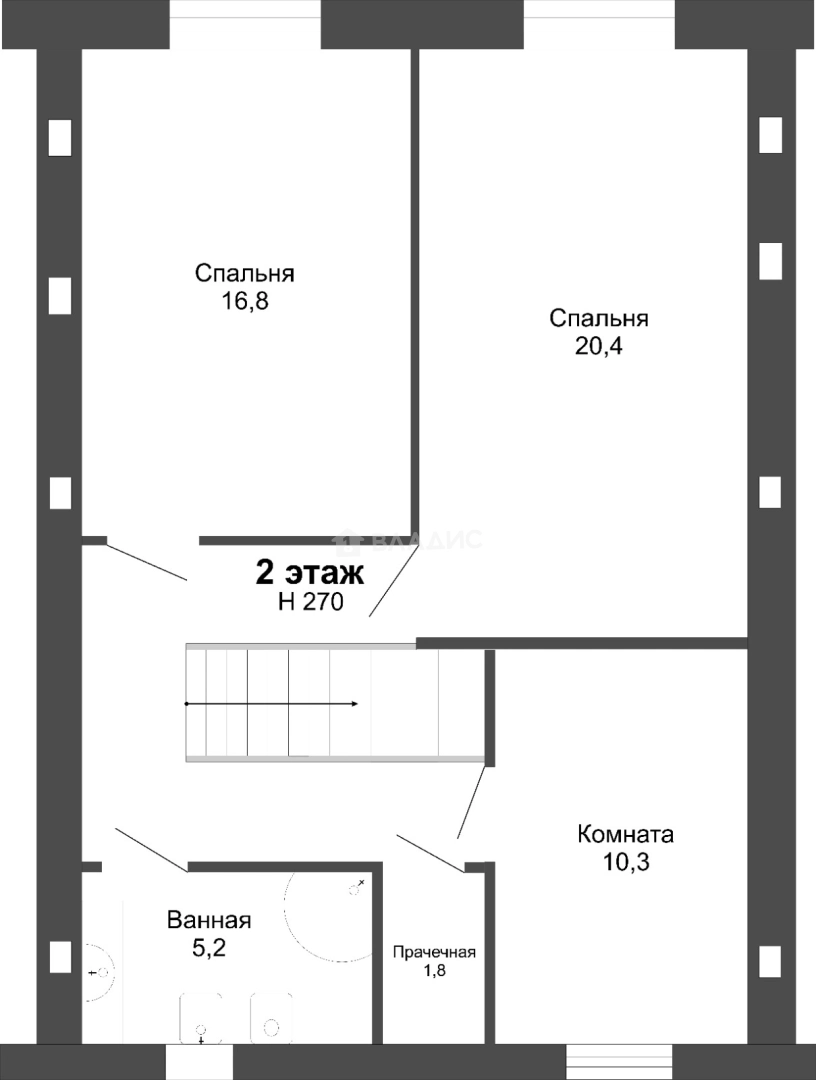
На первом этаже – кирпичное крыльцо, входная зона, прихожая 9,5 кв.м., гостевой туалет, гостиная-кухня 42 кв.м., комната 10,5 кв.м. с небольшой кладовой (гардеробная с прачечной), веранда 20,5 кв.м. с витражным остеклением и выходом во двор; на втором этаже - лестничная площадка, ванная 5,2 кв. м. с душевой кабиной, 3 жилых комнаты (24,4 + 16,8 + 10,5 кв.м.), кладовая. Есть возможность утепления чердака и обустройства жилого или подсобного помещения площадью до 50 кв.м. (высота по коньку 5 м., выведены трубы отопления).
В стоимость входят: мебель в прихожей; кухня со всей эл.техникой (встроенные холодильник, эл.плита, духовой шкаф, микроволновая печь, все – «Elektrolux»; широкая посудомоечная машина «Bosch», вытяжка, остров). Всё в отличном состоянии. За дополнительную плату можем оставить абсолютно всю мебель и бытовую технику (вся мягкая и корпусная мебель, 2 стиральные машины-автомата, 3 больших телевизора, электрокамин и прочее).
Во дворе дома - ухоженный участок 2 сотки «чистыми» (беседка, зона барбекю, большая огороженная газонная площадка для детей или животных, клумбы, альпийская горка, прудик, немного ягодных посадок).
Право собственности на отдельное жилое помещение, без долей (1 взрослый собственник, детей нет, приобретено вне брака по договору купли-продажи в 2013 году); на земельный участок - доля в праве общей долевой собственности.
Минимальные коммунальные платежи (электричество, газ, вода, ассенизация, вывоз мусора), в среднем летом выходит ~ 4000 руб./мес., зимой 7000-8000 руб./мес.
В доме 3 таунхауса (наш в середине)
Продаётся в связи с переездом в другой город.
О квартире
Общая площадь
230 м²
Жилая площадь
101 м²
Площадь кухни
42 м²
Площадь комнат
70 м²
Этаж
2
Расположение квартиры
не угловая
Окна выходят
На улицу
Совмещенных санузлов
2
Ремонт
Дизайнерский
Многоуровневая квартира
Да
О доме
Год постройки
2019
Этажность
2
Материал постройки
Блочный
Материал перекрытий
Монолитные
Отопление
Своя котельная
Расположение
Россия, Новосибирск, улица Бестужева, 73
Заельцовская
4 мин.
Гагаринская
6 мин.
Сибирская
7 мин.
Красный проспект
7 мин.
Площадь Гарина-Михайловского
7 мин.
Маршала Покрышкина
8 мин.
Березовая роща
9 мин.
Площадь Ленина
9 мин.
Ипотечный калькулятор
Заполните 1 анкету — получите предложения от десятков банков на специальных условиях
Программа ипотеки
Стоимость жилья, ₽
Первый взнос, ₽
Срок кредита
от 5.75%
Ставка
от 110 094 ₽
Платеж в месяц
Расчёт носит информационный характер и не является публичной офертой
Предложите свою цену
17 500 000 ₽
76 087 ₽/м²






























