Продается 4-комн. квартира, 80.4 м²
Россия, Новосибирск, улица Писарева, 82
Маршала Покрышкина
9 мин.
80.4 м²
Общая площадь
49 м²
Жилая площадь
9 м²
Площадь кухни
4 из 10
Этаж
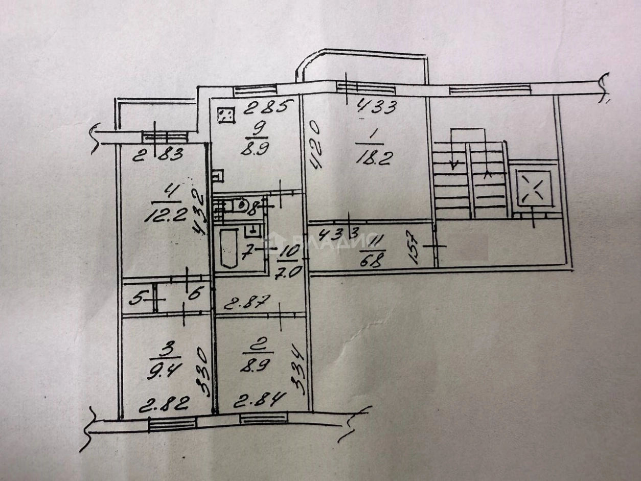
Описание
Квартира предлагает отличную планировку с изолированными комнатами, что обеспечивает комфорт и уединение. Жилая площадь составляет 49 кв. м, а кухня — 9 кв. м. В квартире выполнен косметический ремонт, поэтому можно сразу заселиться или по своему вкусу обновить интерьер.
Окна выходят на улицу, а наличие балкона и лоджии позволит вам наслаждаться видами и свежим воздухом.
Не упустите шанс стать владельцем этой уютной квартиры. Позвоните нам прямо сейчас, чтобы узнать больше и записаться на просмотр.
Мы гарантируем безопасную сделку и юридическую поддержку нашим Клиентам. Поможем одобрить ипотеку с сниженной ставкой.
О квартире
Общая площадь
80.4 м²
Жилая площадь
49 м²
Площадь кухни
9 м²
Подъезд
2
Этаж
4
Расположение квартиры
не угловая
Окна выходят
На улицу
Раздельных санузлов
1
Ремонт
Косметический
Балкон
Есть
О доме
Год постройки
1999
Этажность
10
Материал постройки
Кирпично-монолитный
Материал перекрытий
Ж/б плиты
Отопление
Центральное
Расположение
Россия, Новосибирск, улица Писарева, 82
Маршала Покрышкина
9 мин.
Березовая роща
16 мин.
Гагаринская
17 мин.
Сибирская
17 мин.
Красный проспект
19 мин.
Заельцовская
22 мин.
Площадь Ленина
30 мин.
Золотая нива
4 мин.
Ипотечный калькулятор
Заполните 1 анкету — получите предложения от десятков банков на специальных условиях
Программа ипотеки
Стоимость жилья, ₽
Первый взнос, ₽
Срок кредита
от 5.75%
Ставка
от 76 122 ₽
Платеж в месяц
Расчёт носит информационный характер и не является публичной офертой
Похожие объекты














2-комн. квартира, 82,4 м², 17/19 эт.
Гагаринская
14 мин.




































2-комн. квартира, 70 м², 12/19 эт.
Березовая роща
5 мин.










3-комн. квартира, 90,1 м², 12/25 эт.
Гагаринская
6 мин.
Предложите свою цену
12 100 000 ₽
150 498 ₽/м²






















































































