Продается 1-комн. квартира, 37.1 м²
Россия, Новосибирск, Советский район, микрорайон Академгородок, Вяземская улица, 2
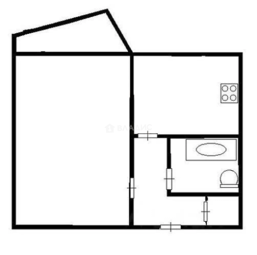
37.1 м²
Общая площадь
19.2 м²
Жилая площадь
9.3 м²
Площадь кухни
9 из 9
Этаж
Описание
Лесная идиллия в городской среде - лучше место для комфортной жизни!
Квартира расположена на 9 этаже девятиэтажного дома. А из окна открывается прекрасный вид.
В квартире сделан косметический ремонт, есть уютная жилая комната площадью 19,2 кв. м и просторная кухня — 9,3 кв. м. Также есть лоджия, где можно обустроить место для отдыха.
Расположение квартиры очень удобно: развитая инфраструктура района позволяет наслаждаться спокойной жизнью и в то же время быть в центре событий. Во дворе престижная гимназия 6 "Горностай" и детский сад 477 "Сибирячок"!
Не упустите шанс стать обладателем этой уютной квартиры! Позвоните нам прямо сейчас, чтобы узнать больше и записаться на просмотр квартиры своей мечты!
Мы гарантируем безопасную сделку и юридическую поддержку нашим клиентам. Поможем одобрить ипотеку с сниженной ставкой.
О квартире
Общая площадь
37.1 м²
Жилая площадь
19.2 м²
Площадь кухни
9.3 м²
Этаж
9
Расположение квартиры
не угловая
Окна выходят
На улицу
Совмещенных санузлов
1
Мебель
Да
Ремонт
Косметический
Лоджия
Есть
О доме
Год постройки
1981
Этажность
9
Материал постройки
Панельный
Материал перекрытий
Ж/б плиты
Отопление
Центральное
Пассажирских лифтов
1
Парковка
Наземная
Расположение
Россия, Новосибирск, Советский район, микрорайон Академгородок, Вяземская улица, 2
Ипотечный калькулятор
Заполните 1 анкету — получите предложения от десятков банков на специальных условиях
Программа ипотеки
Стоимость жилья, ₽
Первый взнос, ₽
Срок кредита
от 5.75%
Ставка
от 39 320 ₽
Платеж в месяц
Расчёт носит информационный характер и не является публичной офертой
Предложите свою цену
6 250 000 ₽
168 464 ₽/м²
















