Продается 1-комн. квартира, 30.1 м²
Россия, Новосибирск, Планировочная улица, 27
Студенческая
18 мин.
30.1 м²
Общая площадь
20.8 м²
Жилая площадь
4.4 м²
Площадь кухни
1 из 2
Этаж
Описание
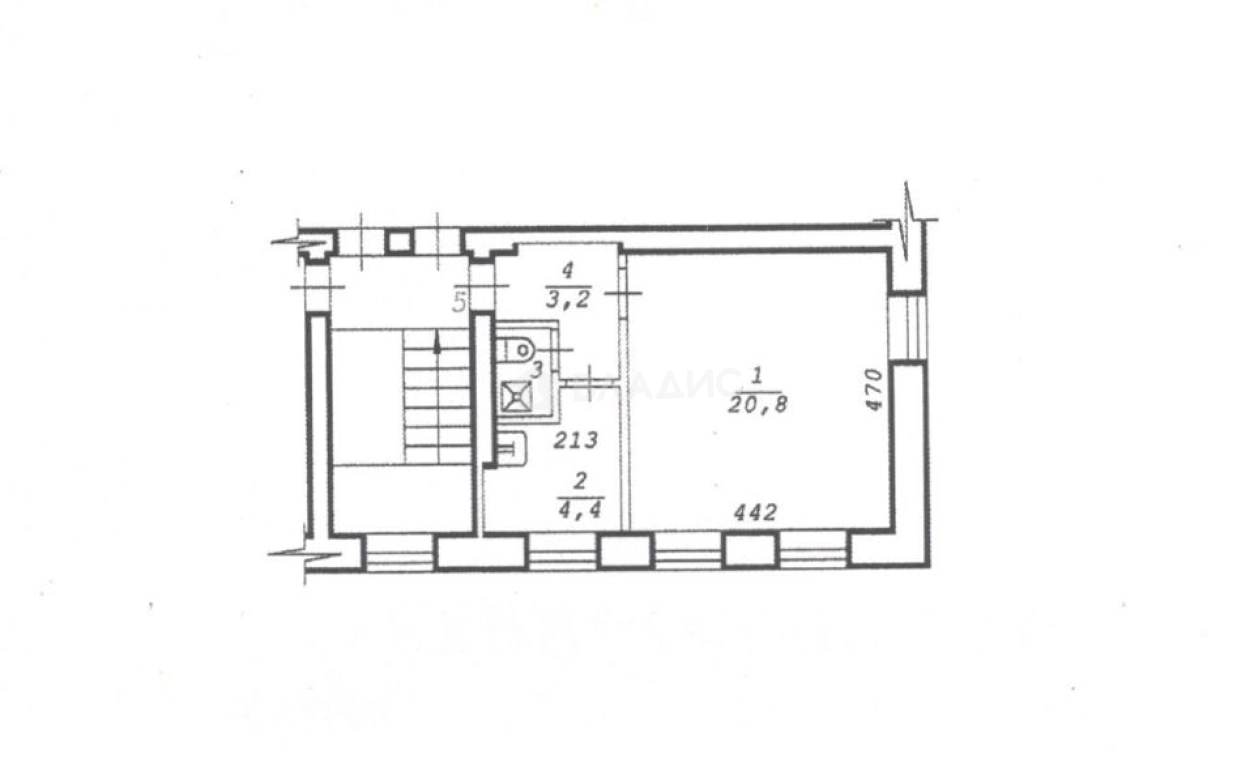
Квартира расположена на первом этаже двухэтажного дома. Общая площадь составляет 30,1 кв. м, жилая — 20,8 кв. м. Окна выходят на улицу. В квартире сделан старый ремонт, что даёт возможность новым владельцам воплотить свои дизайнерские идеи. Так же можно сделать фотостудию из этой квартиры)
Совмещённый санузел обеспечивает компактность планировки.
Этот вариант подойдёт тем, кто ценит удобство и практичность. Не упустите шанс стать владельцем этой квартиры!
Позвоните нам прямо сейчас, чтобы узнать больше и записаться на просмотр.
Мы гарантируем безопасную сделку и юридическую поддержку нашим Клиентам. Поможем одобрить ипотеку с сниженной ставкой.
О квартире
Общая площадь
30.1 м²
Жилая площадь
20.8 м²
Площадь кухни
4.4 м²
Площадь комнат
20,8 м²
Этаж
1
Расположение квартиры
не угловая
Окна выходят
На улицу
Совмещенных санузлов
1
Ремонт
Старый ремонт
Комнаты изолированныe
Да
О доме
Год постройки
1958
Этажность
2
Материал постройки
Блочный
Материал перекрытий
Ж/б плиты
Отопление
Центральное
Расположение
Россия, Новосибирск, Планировочная улица, 27
Студенческая
18 мин.
Площадь Маркса
19 мин.
Речной вокзал
5 мин.
Октябрьская
6 мин.
Площадь Ленина
6 мин.
Площадь Гарина-Михайловского
6 мин.
Красный проспект
8 мин.
Ипотечный калькулятор
Заполните 1 анкету — получите предложения от десятков банков на специальных условиях
Программа ипотеки
Стоимость жилья, ₽
Первый взнос, ₽
Срок кредита
от 5.75%
Ставка
от 18 874 ₽
Платеж в месяц
Расчёт носит информационный характер и не является публичной офертой
Похожие объекты












1-комн. квартира, 28,7 м², 2/5 эт.
Площадь Маркса
25 мин.









1-комн. квартира, 29 м², 1/5 эт.
Площадь Маркса
25 мин.









1-комн. квартира, 30,6 м², 1/2 эт.
Студенческая
18 мин.


















1-комн. квартира, 28,7 м², 2/5 эт.
Площадь Маркса
25 мин.
Предложите свою цену
3 000 000 ₽
99 668 ₽/м²

















































