Продается 2-комн. квартира, 43.1 м²
Россия, Новосибирск, улица Ползунова, 4
Золотая нива
4 мин.
43.1 м²
Общая площадь
32 м²
Жилая площадь
8.1 м²
Площадь кухни
4 из 5
Этаж
Описание
КВАРТИРА РЕАЛЬНАЯ, ВСЕ ФОТО СДЕЛАНЫ ЛИЧНО! В квартире НИКТО не жил!
Продается просторная двухкомнатная квартира с дизайнерским ремонтом, расположенная в Дзержинском районе.
Удобное расположение обеспечивает быстрый доступ к основным транспортным магистралям — до метро всего 10 минут. Остановка общественного транспорта в 3 минутах ходьбы предлагает широкий выбор маршрутов.
Квартира находится на улице Ползунова 4, в хорошо развитом районе с насыщенной инфраструктурой.
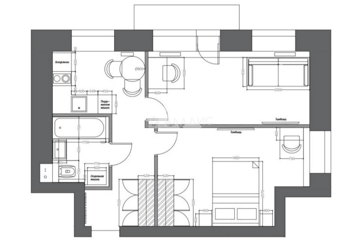
Объект отличается продуманной планировкой: две изолированные комнаты, просторная кухня и совмещенный санузел. Интерьер продуман до мелочей и готов к проживанию. Просторная кухня позволит воплотить любые кулинарные идеи. Совмещенный санузел оснащен современной сантехникой. Свежий ремонт выполнен в светлых тонах с качественными материалами, стены подготовлены под покраску, что позволяет легко адаптировать интерьер под свои предпочтения.
В квартире -2 полноценные изолированные комнаты.
Все коммуникации заменены, поэтому новому владельцу не потребуется дополнительных вложений. Квартира полностью готова к проживанию.
Район отличается развитой инфраструктурой: в пешей доступности находятся супермаркеты, аптеки, кафе и рестораны. Выезд на основные магистрали занимает не более 2 минут, что обеспечивает удобное передвижение по городу. В 5 минутах езды расположен Авиастроительный лицей, а в 10 минутах — частная школа "Ель", детский сад, что делает район привлекательным для семей с детьми. Рядом находится парк имени Ф.Э. Дзержинского. В непосредственной близости находится биатлонный комплекс, что привлечет любителей активного отдыха.
Квартира продается без обременений, все документы готовы к сделке. Возможна покупка в ипотеку. Отличный вариант для тех, кто ценит комфорт и стиль в сочетании с удобным расположением.
Записывайтесь на просмотр, чтобы лично оценить все преимущества этой квартиры. Не упустите возможность стать обладателем прекрасного жилья!
О квартире
Общая площадь
43.1 м²
Жилая площадь
32 м²
Площадь кухни
8.1 м²
Площадь комнат
15+17 м²
Этаж
4
Расположение квартиры
не угловая
Окна выходят
На улицу
Совмещенных санузлов
1
Мебель
Да
Ремонт
Дизайнерский
О доме
Год постройки
1961
Этажность
5
Количество подъездов
2
Материал постройки
Кирпичный
Материал перекрытий
Ж/б плиты
Отопление
Центральное
Парковка
Наземная
Расположение
Россия, Новосибирск, улица Ползунова, 4
Золотая нива
4 мин.
Березовая роща
4 мин.
Маршала Покрышкина
5 мин.
Гагаринская
7 мин.
Заельцовская
7 мин.
Сибирская
7 мин.
Красный проспект
7 мин.
Площадь Ленина
8 мин.
Ипотечный калькулятор
Заполните 1 анкету — получите предложения от десятков банков на специальных условиях
Программа ипотеки
Стоимость жилья, ₽
Первый взнос, ₽
Срок кредита
от 5.75%
Ставка
от 34 538 ₽
Платеж в месяц
Расчёт носит информационный характер и не является публичной офертой
Похожие объекты























3-комн. квартира, 49 м², 4/5 эт.
Березовая роща
6 мин.







2-комн. квартира, 47 м², 4/5 эт.
Золотая нива
6 мин.








1-комн. квартира, 41 м², 21/21 эт.
Золотая нива
13 мин.
Зейб Карина
Агент по недвижимости
Предложите свою цену
5 490 000 ₽
127 378 ₽/м²



































































