Продается 2-комн. квартира, 51 м²
Россия, Новосибирск, Калининский район, микрорайон Пашино, Магистральная улица, 51А
Заельцовская
20 мин.
51 м²
Общая площадь
30 м²
Жилая площадь
8.4 м²
Площадь кухни
3 из 5
Этаж
Описание
В шаговой доступности вся необходимая инфраструктура два детских сада, школа, взрослая и детская поликлиники, аптека, магазины, спортивные секции, а также Пашинский сквер и лыжная база для прогулок на свежем воздухе.
Остановки общественного транспорта в двух минутах ходьбы. На машине до центра Новосибирска можно добраться за 30 минут.
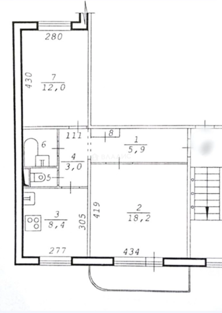
Квартира на комфортном третьем этаже. Удобная планировка, на две стороны. Хорошая площадь.Две комнаты 18 и 12 кв м., кухня 8,4кв м.. Раздельный санузел,балкон.
Старый ремонт, но в целом состояние нормальное.
Сделав ремонт по своему вкусу и желания Вы получите идеальную квартиры для проживания.
Документы полностью готовы к сделке, при необходимости окажем помощь в получении ипотечного решения.
О квартире
Общая площадь
51 м²
Жилая площадь
30 м²
Площадь кухни
8.4 м²
Площадь комнат
18+12 м²
Этаж
3
Расположение квартиры
не угловая
Окна выходят
На улицу
Раздельных санузлов
1
Мебель
Да
Ремонт
Старый ремонт
О доме
Год постройки
1984
Этажность
5
Материал постройки
Панельный
Материал перекрытий
Ж/б плиты
Отопление
Центральное
Расположение
Россия, Новосибирск, Калининский район, микрорайон Пашино, Магистральная улица, 51А
Заельцовская
20 мин.
Гагаринская
21 мин.
Березовая роща
22 мин.
Маршала Покрышкина
22 мин.
Сибирская
23 мин.
Золотая нива
23 мин.
Красный проспект
23 мин.
Площадь Гарина-Михайловского
25 мин.
Ипотечный калькулятор
Заполните 1 анкету — получите предложения от десятков банков на специальных условиях
Программа ипотеки
Стоимость жилья, ₽
Первый взнос, ₽
Срок кредита
от 5.75%
Ставка
от 22 019 ₽
Платеж в месяц
Расчёт носит информационный характер и не является публичной офертой
Сердюк Юлия
Агент по недвижимости
Предложите свою цену
3 500 000 ₽
68 627 ₽/м²


















































