Сдается Торговое Помещение, 102 м²
Россия, Новосибирск, Вокзальная магистраль, 2
Площадь Гарина-Михайловского
2 мин.
102 м²
Общая площадь
Отдельный
Вход в помещение
Свободный
Доступ в помещение
1 из 6
Этаж
Описание
Предлагаем в аренду помещение с отдельным входом:
Расположение: всего в 50 метрах от выхода из станции метро Площадь Гарина-Михайловского! Удобное расположение рядом со станцией метро делает это помещение особенно привлекательным для жителей и гостей города.
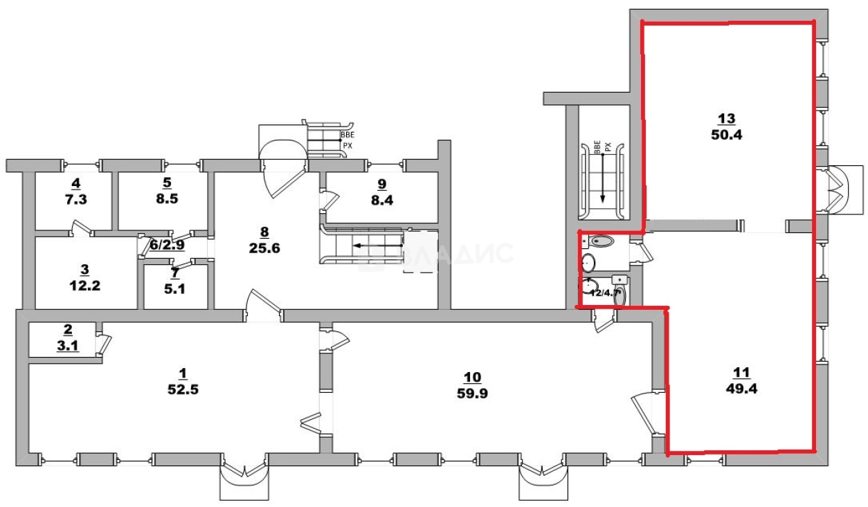
Планировка:
- Два зала (50 кв. м и 49.9 кв. м)
- Санузел
- Небольшое подсобное помещение
Высота потолков: 5 м
Системы: приточно-вытяжная вентиляция и система кондиционирования.
Выделенная электрическая мощность: 15 кВт.
Ремонт: условия обсуждаются индивидуально.
Стоимость аренды: указана на льготный период.
Для получения дополнительной информации или для организации просмотра, пожалуйста, свяжитесь с нами!
Об объекте
Общая площадь
102 м²
Этаж
1
Электрическая мощность
15 кВт
Ремонт
Старый ремонт
Вход в помещение
Отдельный
Доступ в помещение
Свободный
Удобства
Кондиционер
Вентиляция
Охрана
Пожарная сигнализация
Условия аренды
Коммунальные платежи
Включены
Минимальный срок аренды
Не указан
Счётчики
Отдельно
О здании
Тип коммерции
Многоквартирный дом
Материал постройки
Кирпично-монолитный
Отопление
Центральное
Этажей в доме
6
Расположение
Россия, Новосибирск, Вокзальная магистраль, 2
Площадь Гарина-Михайловского
2 мин.
Красный проспект
17 мин.
Площадь Ленина
18 мин.
Сибирская
19 мин.
Гагаринская
26 мин.
Маршала Покрышкина
4 мин.
Заельцовская
4 мин.
Октябрьская
4 мин.
12 000 ₽/м² в год
Комиссия
Без комиссии
Налог
УСН
102 000 ₽/мес.











